查看完整案例

收藏

下载
© Oscar Hernández
奥斯卡·埃尔南德斯
架构师提供的文本描述。技术中心于2015年10月启用,是一个独一无二的创新和创业社区,在美墨边境的任何两国大都市地区都没有类似的地方。位于距美洲国际桥五分钟车程的德克萨斯州埃尔帕索对面,是一座1.8英亩的建筑群,坐落在美国驻墨西哥华雷斯城的总领馆内。科技中心有超过600英尺的正面道路面对阿文尼达洛佩兹马特斯,其中最繁忙的走廊在华雷斯城。
Text description provided by the architects. Opened on October 2015, Technology HUB is a one-of-a-kind innovation and entrepreneurship community without parallel in any of the binational metropolitan regions along the U.S.-Mexico Border. Located within a five-minute drive from the International Bridge of the Americas, across from El Paso, TX, it is a 1.8 acre complex housed within the buildings of what used to be the Consulate General of the United States in Ciudad Juárez, Mexico. Technology Hub has over 600 ft of frontage road facing Avenida Lopez Mateos, one of the busiest corridors in Ciudad Juarez.
© Oscar Hernández
奥斯卡·埃尔南德斯
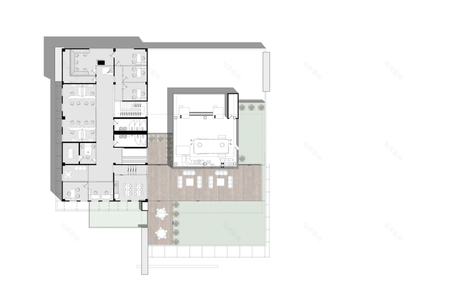
面积超过55,000平方米。英国“金融时报”。在硅谷和波士顿等全球创新中心普遍存在的建筑空间和设计元素中,科技中心是华雷斯城(Ciudad Juárez)新兴创新经济的灯塔,也是其增长的催化剂。它的三座主要建筑包括空间和功能的混合,旨在激发协作和创造力。这些设施包括各种大小的办公室、会议室、厨房、屋顶花园、虚拟现实演示设施、礼堂、绿色房间和Fab实验室。此外,超过4500平方英尺的合作空间有助于连接社区、自由职业者和企业家。该建筑群还包括两个额外的灵活空间,包括一辆自行车。
With over 55,000 sq. ft. of built space and incorporating design elements commonly found in the global innovation hubs like Silicon Valley and Boston, Technology HUB is a beacon of the emerging innovation economy in Ciudad Juárez and a catalyst for its growth. Its three main buildings encompass a mix of spaces and functions designed to inspire collaboration and creativity. These include offices of varied sizes, meeting rooms, kitchens, a roof garden, a virtual reality demonstration facility, an auditorium, a green room, and a Fab Lab. In addition, more than 4,500 sqft of coworking space help connect the community, freelancers and entrepreneurs. The complex also includes two additional flexible spaces, including a bike & coffee shop, and a restaurant.
灵活性贯穿整个空间。内部容纳各种规模的活动,从小型企业会议到大型创业峰会。办公室是用玻璃墙建造的,以创造一种开放的感觉。每座建筑物内的多个休憩空间和游憩区,旨在培养创造力和提高生产力,包括好玩的元素,如滑梯和消防队员的杆子。
Flexibility is embedded throughout the space. The interiors accommodate events of all sizes, from small corporate meetings to large entrepreneurship summits. Offices are made with glass walls to create a sense of openness. The multiple leisure spaces and recreational zones in each building intend to foster creativity and boost productivity, including playful elements such as a slide and a fireman’s pole.
© Oscar Hernández
奥斯卡·埃尔南德斯
一个寒冷,封闭和有点吓人的空间变成了一个开放的,环保的,创造性的和现代化的设施。无论在内部还是外部,建筑物的重新用途都是为了保护它的遗产,同时再利用旧建筑的材料和现有元素。在室内,旧的混凝土墙,装甲门窗,被以创造性的方式被保存或重新利用,以创造一个更加开放和欢迎的空间。有机材料,如木材,混凝土,和铁器,可以在整个过程中找到。它的外墙是用锤打的混凝土、灰色的石头和混凝土墙建造的,几乎是完整的,加上了新的现代特征,用穿孔的金属板包裹着结构。70%以上的前金属围栏是用旧栅栏重新使用的,用来保护前领事馆的一段。
A cold, closed and somewhat intimidating space was turned into an open, eco-friendly, creative and modern facility. Both in its interior and exterior, the repurposing of the building sought to preserve its legacy while reusing materials and existing elements of the old construction. In the interior, old concrete walls, and armored windows and doors, were preserved or repurposed in creative ways to create a more open and welcoming space. Organic materials such as wood, concrete, and ironwork can be found throughout. Its exterior façades, built with hammered concrete, gray stone and concrete walls were kept almost in their entirety, with a new, contemporary character added by enveloping structures of perforated sheet metal. More than 70% of the front metallic fence was repurposed from old fencing that was used to secure a section of the former Consulate.
Elevations
凭借其非凡的物理转换和编程技术,技术中心已经成为任何寻求将想法变为现实的人的理想之地。它容纳了60多家企业,活动范围广泛,如摊位竞赛、艺术展和黑客比赛,并已成为企业活力的聚集地,正在改变当地经济,为被遗弃的社区注入新的活力。
With its remarkable physical transformation and programming Technology HUB has become the go-to place for anyone seeking to turn ideas into reality. It houses over 60 businesses, events as wide-ranging as pitch competitions, art shows and hackathons, and has become a gathering space for the entrepreneurial energy that is transforming the local economy and breathing new life to an abandoned neighborhood.
© Oscar Hernández
奥斯卡·埃尔南德斯
Architects HADVD Arquitectos
Location Ciudad Juarez, Chihuahua, Mexico
Arquitectos a Cargo Carlos Villegas Duarte, Hugo Amparan de Leon
Area 10662.6 m2
Project Year 2015
Photographs Oscar Hernández
Category Workshop
Manufacturers Loading...
客服
消息
收藏
下载
最近

































