查看完整案例

收藏

下载
© Samantha Mink
萨曼莎·明克
架构师提供的文本描述。房子面积适中,配置不寻常,加上财政预算,限制了项目的范围。这栋房子坐落在一条独特的街道上,有着“一个盒子”的巨大潜力,为我和我的狗温斯顿做好了改造的准备。
Text description provided by the architects. The modest lot size and unusual configuration, along with financial budgets, set the constraints for the scope of the project. Located on a unique street, the house came with all the great potential of ‘a box,’ mundane and ready for transformation into a home for me and my dog, Winston.
© Samantha Mink
萨曼莎·明克
尽管由于规划上的限制,脚印和面积不得不保持不变,但所有的门都进行了重新配置,包括将主要入口门移离街道,通过一个新的花园引入一种更间接的方法。窗户被重新组合,通过标准化和收缩所有光圈来控制和聚焦光线,同时为新的天窗打开屋顶。这些简单的动作创造了一个清晰的对比,更清晰的时刻的光和宽,扫光从上面倾泻而来。
While the footprint and square footage had to remain the same due to planning restrictions, all doors were reconfigured, including moving the main entry door off the street, introducing a more indirect approach through a new garden. The windows were recomposed to control and focus the admittance of light, by standardizing and shrinking all apertures, while slicing open the roof for new skylights. These simple moves create a clear contrast between the more articulated moments of light and the broad, sweeping light pouring in from above.
© Chad Slattery
(乍得)斯拉特里
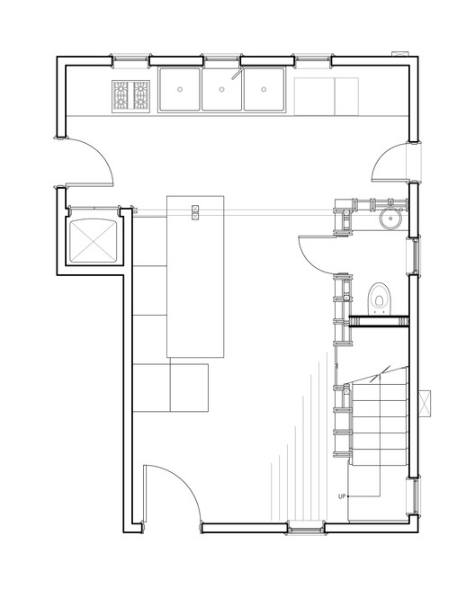
1st Floor Plan
一楼图则
© Samantha Mink
萨曼莎·明克
所有内墙都被拆除,以打开空间,允许新暴露的木梁和柱子,以及功能木柜的“加厚隔墙”。磨坊的装配,使它可以由我自己和现场用标准木材和锯子。
All interior walls were removed to open the space, allowing for new exposed wood beams and columns and ‘thickened partitions’ of functional wood cabinetry. The assemblage of the millwork was made such that it could be constructed by myself and on site with standard lumber and a chop saw.
© Samantha Mink
萨曼莎·明克
外面铺着黑色的木板,其黑色和棕色的纹理深度在白天和不同的光照条件下都会发生变化。外面的格子带着新种的花束,重新找回了房子最初的一些精神,在购买时完全被藤蔓覆盖。其结果是外表有时严厉但微妙,内部几乎出乎意料的温暖、明亮和舒适。这座房子又小又简单,没有风格或傲慢姿态的空间,只是有足够的居住空间。
The exterior was clad with dark, wood boards whose black and brown textural depth transmute throughout the day and in different light conditions. The exterior lattice, with newly planted bougainvillea, recaptures some of the initial spirit of the house, which was completely covered in vines upon purchase. The result is a sometimes stern, but nuanced exterior, with an almost unexpectedly warm, bright, and comfortable interior. The house is small and simple, without room for stylistic or haughty gestures, but with just enough room for living.
© Samantha Mink
萨曼莎·明克
Architects Samantha Mink
Location Culver City, United States
Area 850.0 ft2
Project Year 2016
Photographs Chad Slattery, Samantha Mink
Category Houses
Manufacturers Loading...
客服
消息
收藏
下载
最近




































