查看完整案例

收藏

下载
© Casey Dunn
凯西·邓恩
架构师提供的文本描述。在班布尔搬到德克萨斯州奥斯汀的罗斯代尔社区的商业建筑之前,马克奥多姆工作室的合作团队已经在工作,把空间恢复到60年代早期的美学水平。作为一个适应性的再利用项目,马克·奥多姆和他的团队从曾经是地板工艺品地毯原形的照片中获得了灵感,并创造性地模仿了那个时代的纺织品和细节。
Text description provided by the architects. Before Bumble moved in to the commercial building in the Rosedale neighborhood of Austin, Texas, the collaborative team at Mark Odom Studio was already at work restoring the space to its original early-60s aesthetic. As an adaptive reuse project, Mark Odom and his team drew inspiration from photographs of what used to be a Floorcraft Carpets in its original form and worked to creatively mimic the textiles and details of that era.
© Casey Dunn
凯西·邓恩
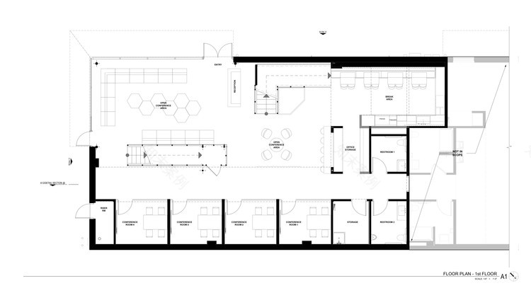
1st Floor Plan
一楼图则
当惠特尼·沃尔夫·赫德(Whitney Wolfe Herd)和她在班布尔的团队正在寻找一位建筑师,让他们的愿景在太空中生机勃勃的时候,马克是一个天生的合适人选,他已经了解了这个空间,并证明他可以创造性地思考,想象出一个与马克奥多姆工作室(MarkOdom Studio)的建筑师们从邦布尔和JEI Degin,Inc.的室内设计团队提供的照片中汲取灵感,将六边形墙面覆盖物和注重生活方式的环境变成了现实。(鼓掌)
When Whitney Wolfe Herd and her team at Bumble were looking for an architect to make their vision come to life in the space, Mark was a natural fit, already knowing the space and proving he could think creatively to imagine a space like none other. Drawing inspiration from photos provided by Bumble and the interior design team at JEI Desgin, Inc., the architects at Mark Odom Studio made visions of hexagon wall coverings and a lifestyle-focused environment a reality.
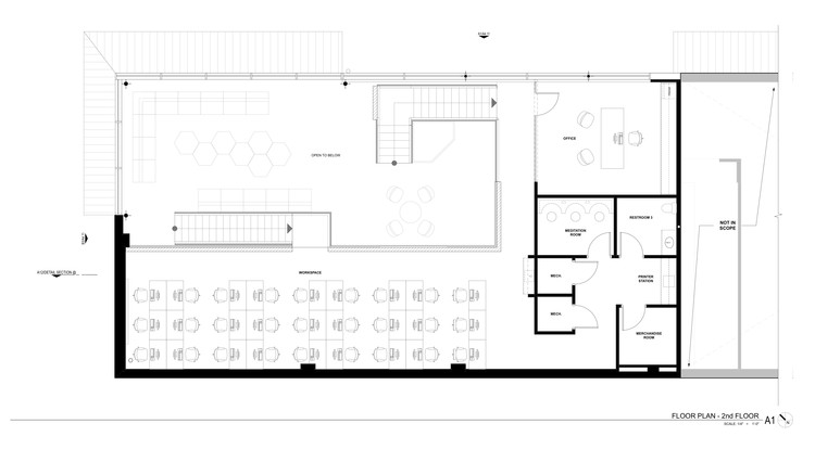
2nd Floor Plan
二楼图则
© Casey Dunn
凯西·邓恩
项目重点:
Project highlights:
创造一个让人感觉是住宅的商业空间。重要的是,它的新总部让人感觉像家,而不是传统的办公室。马克奥多姆工作室带领团队确保建筑元素和空间设计赞扬了他们的愿望,同时也保留了城市协议的代码。通过设计的发展,使照片生机勃勃。对蜂巢的图形和整体风格的视觉效果受到各种灵感照片的影响。马克·奥多姆·工作室(Mark Odom Studio)的角色是让这些照片栩栩如生,同时开发出一种空间内功能的设计。建造一座大楼梯。当马克·奥多姆(Mark Odom)和他的团队开始想象如何让本布尔总部的大楼梯变成现实时,他们不得不解决问题,以确定如何将新的钢板连接到现有的楼梯结构上。研究小组还必须仔细地绘制出环绕楼梯的六边形图案。(鼓掌)
Creating a commercial space that feels residential. It was important to Bumble that its new headquarters feel like home vs. a traditional office. Mark Odom Studio led the team to ensure that the architectural elements and spatial design complimented their wishes while also remaining in code with the city's protocol. Making photos come to life through design development. The vision for the graphics and overall style of The Hive was influenced by a variety of inspiration photos. It was Mark Odom Studio's role to make those photos come to life while also developing a design that functions within the space. Building a grand staircase. When Mark Odom and his team started to imagine how to make the vision for Bumble HQ's grand staircase come to life, they had to problem solve to determine how to attach a new steel panel to the existing staircase structure. The team also had to carefully map out the hexagon pattern that wraps around the staircase.
© Casey Dunn
凯西·邓恩
Architects Mark Odom Studio
Location Austin, TX, United States
Architect in Charge Mark Odom, Andrew Horne
Area 4800.0 ft2
Project Year 2017
Photographs Casey Dunn
Category Offices
Manufacturers Loading...
客服
消息
收藏
下载
最近


















