查看完整案例

收藏

下载
上海宝业集团有限公司合作设计团队。通化科学施工准备与施工办公室
Cooperative Design Team Shanghai Baoye Group Corp., Ltd. Construction Preparation and Construction Office of Tonghua Science & Cultural Center More Specs Less Specs
Courtesy of CCTN Architectural Design
CCTN建筑设计
架构师提供的文本描述。设计首先要创造人与自然的互动。建筑外形简陋,笔架状结构,中间凹,两端飞扬,与通化山山脊相似。“把空白当作墨水”的做法使自然成为主角,山脉成为轴心的末端,从而使建筑与自然和历史相协调。
Text description provided by the architects. The design shall first create the interaction between man and nature. The building is humble in the shape, and a penholder-like structure with the concaved in the middle and flying in both ends resembles the ridge of Tonghua mountain. The approach of "reckon blank as inked" has made the nature become the protagonist, the mountains become the terminal of the axis, thus allowing the building to harmonize with the nature and history.
Courtesy of CCTN Architectural Design
CCTN建筑设计
“人与空间”的互动也是设计的重点,呈现出视觉上的热情互动。多字形建筑完整,充满力量,而实体和虚拟水晶形状就像被开发的玉石。通化当地满族的剪纸所特有的金属正面影响着每一位通感和暗影的游客。
The interaction between "man and space" is also the emphasis of the design, presenting a visually enthusiastic interaction. Multi-zigzag building is complete and full of force, while the solid and virtual crystal shapes are just like the exploited jade. The metal facade featured by the cutting paper of the local Manchu in Tonghua affects every visitor with the synaesthesia and el amor shadows.
Courtesy of CCTN Architectural Design
CCTN建筑设计
Courtesy of CCTN Architectural Design
CCTN建筑设计
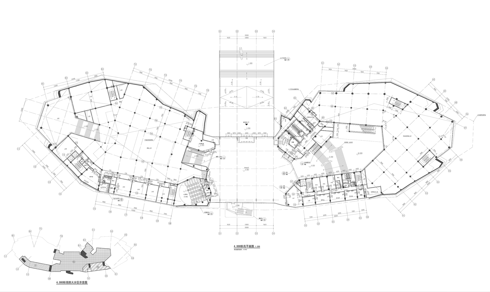
通过空间解读,设计最终聚焦于“人与文化”的互动。在流动的室内空间中,螺旋坡被定义为时间隧道,是通向不同房间和文化体验的通道,连接着自然、历史和科学的展厅。“自然、激情和发现”是该建筑向公众展示的关于文化体验的文章。
By the space interpretation, the design eventually focuses on the interaction between "man and culture". In the flowing interior space, the spiral slopes are defined as the time tunnel, as the leads to the varied rooms and cultural experience, connecting the standing exhibition halls of nature, history and science. "Nature, passion and discovery" are the essay the building presents to the public concerning the cultural experience.
Courtesy of CCTN Architectural Design
CCTN建筑设计
Architects CCTN Architectural Design
Location Jiang Nan Da Jie, Dongchang Qu, Tonghua Shi, Jilin Sheng, China
Lead Architects Chen Yu
Area 32612.0 m2
Project Year 2016
Category Science Center
Manufacturers Loading...
客服
消息
收藏
下载
最近
























