查看完整案例

收藏

下载
Courtesy of NAS architecture
NAS架构
架构师提供的文本描述。维克多·雨果学校集团是蒙彼利埃市最古老的学校。学校团体需要进行修复,以更新其无障碍环境,开设新的班级,并重新组织被许多未使用的物品占据的操场。其目的是围绕一个新的概念制定一个项目,在一个已经密集的小岛带来新的空间的同时,能够在运动中引入一种流动性。这个连接形式是由一个悬挂的庭院形成的,这个庭院位于岛的中心,可以进入整个建筑。这个元素也是两个学校之间的一个游乐场,一个分隔的地方和一个共同的地方。
Text description provided by the architects. Victor Hugo school group is the oldest school in the city of Montpellier. The school group needed a rehabilitation in order to update its accessibility, create new classes and reorganize the playgrounds encumbered by a multitude of unused items. The aim was to formulate a project around a new articulation, able to introduce a fluidity in movements while bringing new spaces in an already dense islet. This articulation takes form from a suspended courtyard arranged in the center of the island which gives access to the whole building. This element also functions as a playground, a separative and a common place between the two schools
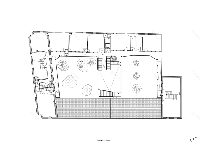
Ground Floor Plan
作为一座桥梁,悬空庭院的支撑点数量非常有限,它解放了两个游乐场之间的景观,并使用结构点作为存储和卫生场所。建筑的同一性是简单而健壮的,其中结构元素构成了原始混凝土的基础,大的杆子支撑着通道。为了孩子们的安全而设计的护栏,形成了一条欧氏色带,让人回想起立面的阴影,它跟随着项目的每一种变化。基于支持微穿孔板的V形结构,这些护栏尽可能地保护它们所能看到的东西。透明度随一天中的时间、太阳的方向、视角和与网格的接近程度而变化。
Built as a bridge, the number of support points of the suspended courtyard is very limited, freeing the view between the two playgrounds and using the structural points as storage and sanitary premises. The architectural identity is simple and robust where the structural elements form a base of raw concrete and large poles support the passageways. The guardrails, designed for the safety of children, form an ocher-colored ribbon, recalling the shades of the façade, which follow each variation of the project. Based on a V-shaped structure supporting micro-perforated plates, these guardrails protect as much as they allow to see. The transparency varies with the hours of the day, the orientation of the sun, the angle of view and the proximity to the mesh.
Courtesy of NAS architecture
NAS架构
这种固定的过滤器可以在不受限制的情况下创建一次性的亲密关系,因为尽管高度对幼儿来说非常重要,但它可以让你看穿,你可以从院子里看到现存的外墙,从走廊上看到整个学校。这些走廊的设计主要是为了提供学生和教师可以使用的生活场所,而不仅仅是简单的流通。蒙彼利埃的地中海气候已经成为限制因素,通过在炎热的天气下在阴影上玩耍,帽子保护人们在恶劣天气和教室中的活动。走廊也使人们有可能消除大量的内部循环,从而将单一导向的班级转变为交叉空间,以利于自然通风。
This constant filter makes it possible to create one-off intimacies without ever being restrictive because, despite a height that is quite important for young children, it allows you to see through, you can read the existing façade from the courtyard and see the whole from the school from the corridors. These corridors have been largely designed to provide places of life usable by students and teachers beyond the simple circulation. The Mediterranean climate of Montpellier has been a constraint factor solved by the architecture with caps protecting people’s movements during bad weather as well as classrooms, by playing on the shadow on hot days. The corridors also made it possible to eliminate a large number of interior circulations, thus transforming single-oriented classes into crossing spaces to favor natural ventilation.
重建公共建筑是当代社会面临的真正挑战,也是对城市蔓延的必要反应。在我们看来,成功地改变城市中心区的现有遗产,在不冻结其功能的情况下创造出高质量的空间,从而促进地方的不断和永久的演变似乎很重要。
The rehabilitation of public buildings is a real challenge for our contemporary society and a necessary response to urban sprawl. It seems important to us to succeed in changing the existing heritage of downtowns by producing quality spaces without freezing their functionality, thus promoting a constant and perpetual evolution of places.
Courtesy of NAS architecture
NAS架构
Architects NAS architecture
Location 4 Rue Farges, 34000 Montpellier, France
Architects in Charge Hadrien BALALUD DE SAINT JEAN, Guillaume GIRAUD, Johan LAURE
Area 1000.0 m2
Project Year 2017
Category Schools
Manufacturers Loading...
客服
消息
收藏
下载
最近


























