查看完整案例

收藏

下载
© Anice Hoachlander | Hoachlander Davis Photography
(C)Anice Hoachlander连Hoachlander Davis摄影
架构师提供的文本描述。这座世纪中叶的现代住宅面积不足两千平方英尺,但却坐落在一座密林的小山上。该房产为距离哥伦比亚特区不到4英里的房子提供了大量的隐私和隐居。尽管一个四口之家的空间非常有限,但客户立即购买了该房产。五年后,随着他们的两个孩子迅速接近十几岁的年龄,现在是时候考虑房子的扩建了。客户希望在翻新以增加居住空间时,尽可能多地保留现有房屋和财产的特点。世纪中叶的现代苦行僧,简单的书和细节都很重要.毕竟,这些都是设计特色,首先吸引了他们的房子和财产,他们不想失去这些设计特点,在装修过程中。
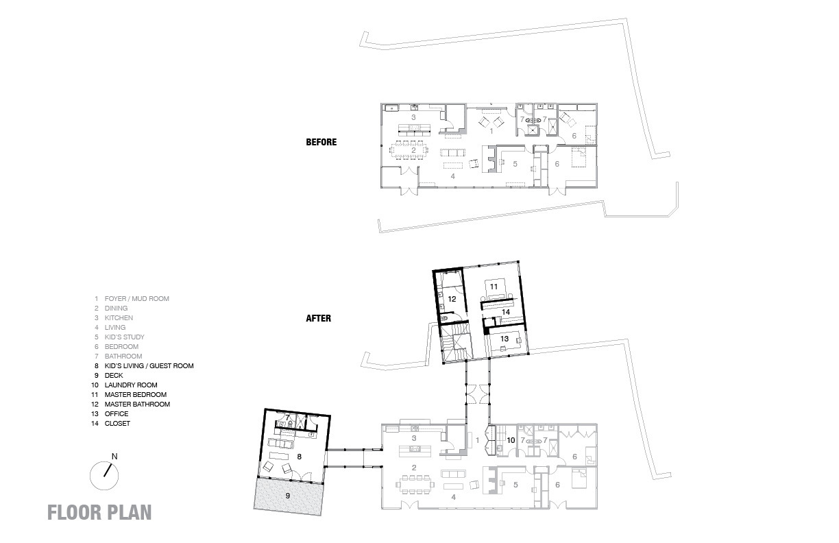
Text description provided by the architects. The mid-century modern home was less than two thousand square feet, yet beautifully sited on a densely wooded hill. The property provided an extraordinary amount of privacy and seclusion for a house less than four miles from the District of Columbia. Despite the very limited amount of space for a family of four, the clients purchased the property immediately. Five years later, with their two children rapidly approaching teenage years, the time had come to look at a house expansion. The clients wanted to maintain as many of the characteristics of the existing house and property as possible when they renovated to add living space. The mid-century modern ascetic, the simple volumes and details were all important. After all, these were the design features that first drew them to the house and property and they did not want to lose these design features in the renovation process.
© Anice Hoachlander | Hoachlander Davis Photography
(C)Anice Hoachlander连Hoachlander Davis摄影
同样重要的是保持从现有的居住空间到外部的景观。这些观点已经成为为什么房产感觉像家的决定性特征。维护这些特性是设计解决方案的语法。此外,还增加了两个明显不同的展馆卷。一个展馆提供一个新的主卧室和一个家庭办公室。它也为人们提供了新的视野,从北边的小山到南边的老房子。第二个展馆提供了另一个生活空间。这座展馆配备了一张定制的墨菲床,可以通过滑动门将其与房子的其他部分关闭,并用作游客的客房。
Equally important was preserving views from the existing living spaces to the exterior. These views had become defining characteristics of why the property felt like home. Maintaining these characteristics was the syntax of the design solution. For the addition, two distinctly separate pavilion volumes were added. One pavilion provides a new master bedroom and a home office. It also affords new view sheds up the hill to the north and over the existing house to the south. The second pavilion provides another living space. Equipped with a custom built Murphy bed this pavilion can be closed off from the rest of the house with a sliding door and used as a guest room for visitors.
© Anice Hoachlander | Hoachlander Davis Photography
(C)Anice Hoachlander连Hoachlander Davis摄影
© Anice Hoachlander | Hoachlander Davis Photography
(C)Anice Hoachlander连Hoachlander Davis摄影
新的展馆是在寿司板(传统的日本烧焦的雪松)壁板,将优雅地在周围的树木之间。现有房屋的壁板被拆除,那卷也重新包覆在同样的寿司板壁板上。展馆的布置是由视线和视盘管理的。连接展馆的新玻璃人行道尽可能细腻地触摸现有的房子。新展馆的布置也定义了室外房间的外部空间。这座房子的面积增加了一倍,但遗址的氛围得到了保护。
The new pavilions are clad in Shou Sugi Ban (Traditional Japanese Charred Cedar) siding that will gracefully patina amongst the surrounding trees. The siding on the existing house was removed and that volume also re-clad in the same Shou Sugi Ban siding. The placement of the pavilions was governed by sightlines and viewsheds. The new glass walkways connecting the pavilions touch the existing house as delicately as possible. The placement of the new pavilions also defines exterior spaces into outdoor rooms. The home has doubled in size but the ambience of the site is preserved.
© Anice Hoachlander | Hoachlander Davis Photography
(C)Anice Hoachlander连Hoachlander Davis摄影
Architects Studio Twenty Seven Architecture
Location Montgomery County, United States
Lead Architects John K. Burke-Principal in Charge, Niki Livingston-Project Designer, Claire Barrows-Project Architect
Area 847.0 ft2
Project Year 2016
Photographs Anice Hoachlander | Hoachlander Davis Photography
Category Refurbishment
Manufacturers Loading...
客服
消息
收藏
下载
最近





















