查看完整案例

收藏

下载
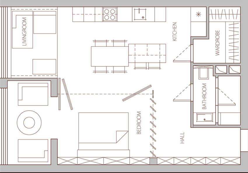
身为建筑师与室内设计师的 Konstantin Entalcev,致力于创造和谐美好的空间,针对细节总是仔细着墨,期望用设计达成屋主的需求。此案屋主是一位年轻女孩,以「单人居住、多人共聚」为需求,并打造大型餐厨空间,创造悠闲聚会场所,同时拥有风格独特的住宅,设计师运用黑框玻璃灵活转换公、私领域,上一秒是沙发区、下一秒就是主卧室。
设计巧思:黑框玻璃拉门能随需求开阖,搭配可动性家具能轻松塑造领域用途。 住宅以开放式厨房、餐厅为生活轴心,其余空间如客厅多以单间处理,公领域运用黑框玻璃区隔场域,能因应来访人数扩增为沙发区,当访客离去后即回归为主卧,创造区域的高功能性。此外,虽说风格倾向 LOFT 风格,但家具色彩依旧守着低彩度为条件,在看似利落的公寓内,注入女孩的轻柔感。
单身公寓 loft 现代 公寓
客服
消息
收藏
下载
最近











