查看完整案例

收藏

下载
/ 松 间 清 泉 /
如 松 林 之 于 明 月
如 灵 石 之 于 清 泉
为 原 本 孤 寂 的 生 活
带 来 光 与 愉 悦
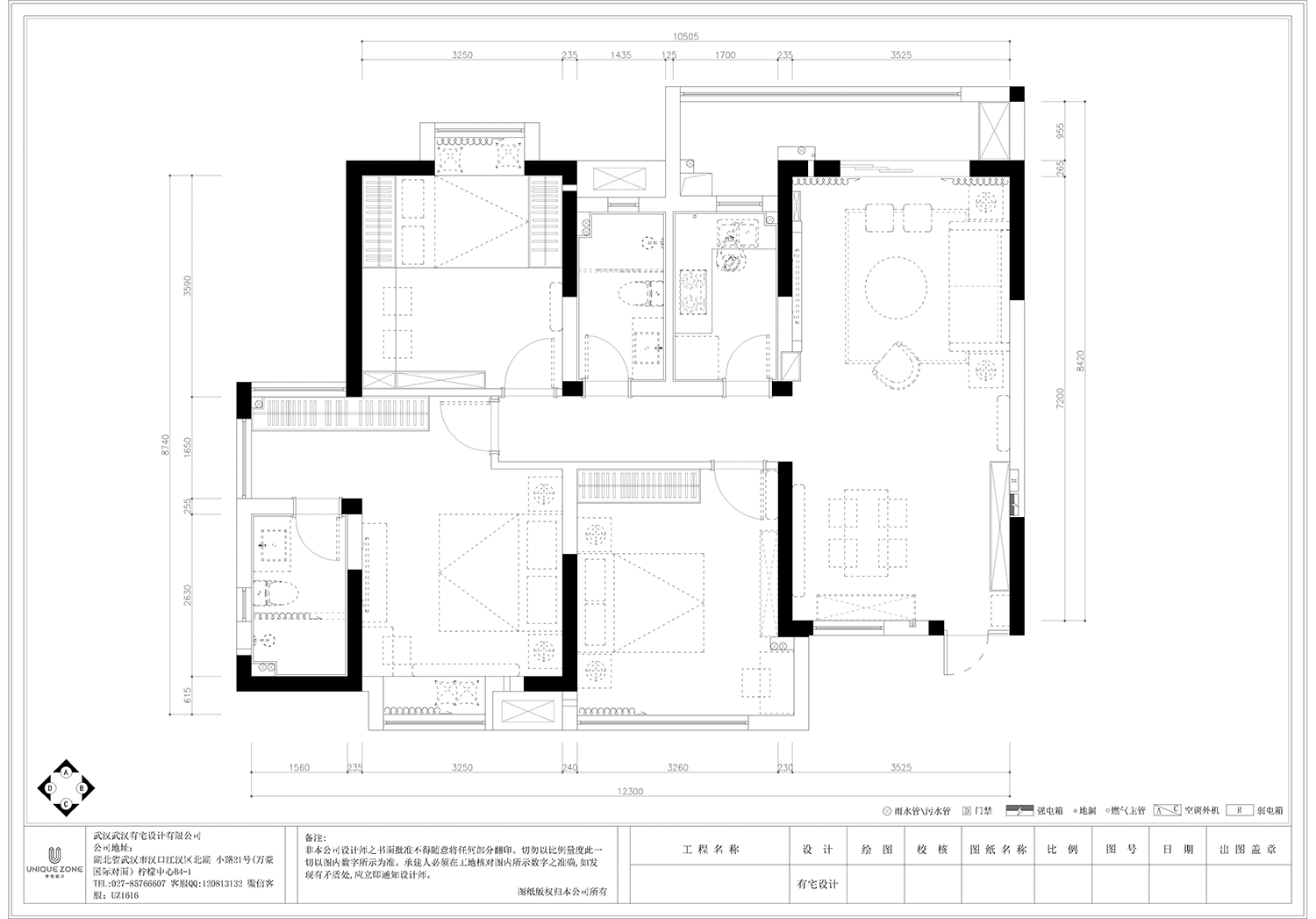
建筑投影面积:113㎡
空间格局:3室2厅1厨2卫1阳台
每个人对家的模样都充满了期待,家是松林或是水中石,而家里的人和爱,则是明月和清泉,为原本孤独冷清的环境,带来光和愉悦。
女屋主是平面设计师,对家的美感和实用性更是有着高要求。男屋主有着很强的动手能力,是热爱生活和家庭的人。活泼可爱的女儿是家庭的开心果,同时也个性十足。
由于格局限制,入户即是餐厅,设计师在餐厅边走道处沿墙做了一个长鞋柜,鞋柜底部和地面之间的空间可放置拖鞋。鞋柜让入户和客厅之间略有间隔,起到一个缓冲的作用。客餐厅使用淡淡的绿色,铺陈出宁静干净的空间主色调,金属的注入让客厅增加了精致感。客厅电视墙面略微垫出,壁炉两边是两个浅窄储物柜,可以放置一些小件物品。
儿童房使用深浅不一的粉色,营造出一个柔软的女孩空间。主卧使用淡雅的绿色调,搭配做旧家具和深色地板,一深一浅的配色拉出了丰富的视觉感。
屋主会时常在家办公,所以需要书房区域,书桌旁的榻榻米有着很强的收纳功能,同时也能供一家人在此聊天玩耍。
客 厅 Living Room
餐 厅 Dining Room
卧 室 Bed Room
多 功 能 房 Multi-function room
客服
消息
收藏
下载
最近
























