查看完整案例

收藏

下载
© Fernando Alda
(费尔南多·阿尔达)
架构师提供的文本描述。当像维多利亚这样令人惊叹的品牌决定回到自己的城市时,地点成为第一件需要仔细分析的事情,以便实现将传统啤酒还给马拉加市民的梦想。因此,这家工厂位于城市的两条主要道路之间,作为其新的入口里程碑,同时确保了适当的工业功能,并允许卡车以一种非常容易的方式流动。为了建设位于那里的前工厂的其余结构,需要一种可持续的工作方式,将它们的需要与城市规划和建筑安全成为根本的现有要素结合起来。然而,这家工厂对马拉加的意义远远超过了对工业振兴的描述。
Text description provided by the architects. When an amazing brand like Victoria decides to come back to its city, location becomes the first thing to carefully analyze in order to achieve the dream of giving back to Malaga citizen their traditional beer. Thus, this factory is located between two of the main roads of the city, as its new entrance milestone, while ensuring a proper industrial functionality and allowing trucks flow in a very easy way. In order to build over the remaining structure of the former factory located there, a sustainable way of working was required, by combining their needs with the existing elements where urban planning and construction security become fundamental. However, this factory means to Malaga much more than the industrial revitalization described.
© Fernando Alda
(费尔南多·阿尔达)
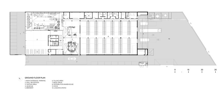
Ground Floor Plan
© Fernando Alda
(费尔南多·阿尔达)
这座建筑是这个地方品牌邀请它的邻居,让他们成为它的历史,它的生产活动和物流的一部分,同时为这个城市提供一个新的文化景点。这就是为什么它的外壳设计如此重要和特别,创造了一座坚固的建筑,它的白色正面增强了它的工业灵魂和结构,以及一个完全由玻璃制成的主正面,它不仅可以利用这一区域的标志性光,叫做“Costa del Sol”,同时也介绍了一种创新的方法对传统的和密封的工厂建筑。这创造了一个有趣的对话,玻璃制造的北面和由‘原位’夹层板,保护建筑物免受更硬的太阳方向的开放元素。
This building has been an invitation from this local brand to its neighbors, in order to let them be part of its history, its productive activity, and logistics while offering this city a new cultural spot. That's the reason why the design of its enclosure has been so important and special, creating a solid building whose white facades enhance its industrial soul and structure, and a main front facade completely made of glass that allows the building not just to take advantage of the signature light of this area, called 'Costa del Sol', but also introduce an innovative approach to the traditional and hermetic architecture of factories. This creates an interesting dialogue between glass-made north facades and opaques elements made of 'in situ' sandwich panels that protect the building from harder solar orientations.
© Fernando Alda
(费尔南多·阿尔达)
一个非常尊重和可持续的设计实践,促进功能和最大限度地舒适感的用户。这是一个相当复杂的功能,与其体积简单性形成对比,协调不同的领域和服务,如品牌通过其多功能入口大厅引导的旅游;品尝区;马拉加“Cerveza Victoria”新总部的商业办公室;啤酒厂;灌装、啤酒驱动和包装区;还有仓储和物流区,与本仓库所需的整个办公室和职能相关。作为结论,这座建筑拥有精确的视觉连接空间关系,其中光线和客人成为该项目的主要特征。
A very respectful and sustainable exercise of design that fosters functionality and maximizes comfort among its users. A quite complex functionality that contrasts with its volumes simplicity, coordinating different areas and services like the tours guided by the brand through its multifunctional entrance hall; a tasting area; the commercial offices of this new headquarters of 'Cerveza Victoria' in Malaga; the brewery; the filling, beer drive and packaging area; and also the storage and logistics area, with the whole offices and functions related and required by this warehouse. As a conclusion, this building homes an accurate relation of visually connected spaces, where light and guests become the main characters of the project.
© Fernando Alda
(费尔南多·阿尔达)
Architects GANA Arquitectura
Location Av. de Velázquez, 215, 29004 Málaga, Spain
Author Architects Antonio José Galisteo Espartero, Álvaro Fernández Navarro, Francisco Jesús Camacho Gómez
Design Team David Melero Herrera, María García Ostos, Sandra Peralto Galán, Marta Sevillano Díez del Corral
Area 0.0 m2
Project Year 2017
Photographs Fernando Alda
Category Brewery
客服
消息
收藏
下载
最近































