查看完整案例

收藏

下载
© Lee Choong-Gun
李宗光
架构师提供的文本描述。与青年团体在私立学校或放学后辅导的时间相比,人们通常认为他们没有适当的机会去探索自己的兴趣和爱好。包括公立学校在内,许多青年团体可能参观和停留的空间远没有吸引力。由于“青年群体”包括从幼儿园到大学生的如此广泛的年龄,社区的青年中心需要很好地满足不同年龄组的不同需求和需求。奇尔博青年中心的目标是提供一个平台,让青年能够欣赏他们最喜欢的地方,在那里他们可以选择不同的地方,每个空间的空间特征正是从他们的眼睛层次上来体验的。
Text description provided by the architects. Compared to the amount of time youth groups are required to spend in private institutes or after school tutoring, it is usually thought that they are not given proper opportunities to explore their interests and hobbies. Including public schools, many of the spaces youth groups may visit and stay are far from alluring. For the "youth group" includes a such large spectrum of ages from kindergarten goers to college students, community’s youth centers need to well support varying needs and wants of different age groups. The Chilbo Youth Center aims to provide a platform where the youth can appreciate their most favored spots, where they may choose different places to be, and where spatial characteristics of each space are precisely experienced from their eye levels.
© Lee Choong-Gun
李宗光
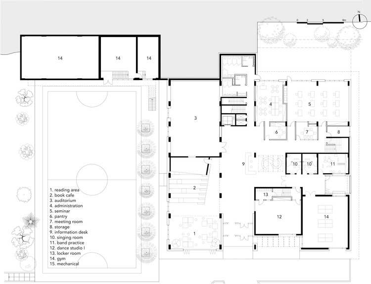
场地分为停车位和足球场两部分,室内场地则分为两部分。在一种组织不同节目的方式中,每个节目都被赋予了一种特殊的形式,这种形式是从典型的“房子”形式,也就是所谓的“谷仓屋”的熟悉形状。每一所“房子”都会根据其高度和楼面面积进行调整,通过这些调整,它们将成长为适合不同项目的家庭。位于Homesil公园的北边,除了朝北,还有一个日托中心最近在街对面落成,这个地点对周围的环境开放得很好。奇尔博青年中心的个人空间不是垂直堆叠成多层,而是水平分布,只有两层楼,上层的平米面积只有下层的一半大。节目安排在适当的位置,在正中有一口光井以自然光滑行在周围的地方。
The site is divided into two parts: one for the parking space and the footsal court, and the other for the indoor spaces. In a way to organize different programs, each one is given a particular form that are driven from the typical form of a “house”, the familiar shape of so-called a barn house. Each “house” is adjusted with its height and floor area, through which they grow to adequate home for diverse programs. Located in the north edge of the Homesil Park, the site generously opens up to its surroundings except towards the North where there is a daycare center recently completed across the street. Instead of being vertically stacked into multiple levels, individual spaces in the Chilbo Youth Center are spreaded out horizontally comprising only two stories; the square meter of the upper level is as half large as the lower one. Programs are seated in their proper place, at the very center of which a light well inspirits the surrounding area with natural light gliding in.
灯光井后面有一个问讯台和一个开放的休息室。乐队练习场、两个歌舞室、健身房和舞蹈室,被归类为“噪音区”,通过折叠玻璃门从问讯台划出,行政办公室,即“工作区”,位于北面。书吧把地面和上层用大楼梯绑起来,礼堂在下面。一楼最核心的自然光的颜色和质感的变化,使最平凡却令人着迷的场景在一天中呈现出来,围绕着它为年轻人展现了多样的宇宙。
The light well houses an information desk and an open lounge behind. The band practice space, two singing rooms, gym, and the dance studio, categorised as the “noise zone”, are set aside from the information desk by folding glass doors. The administrative offices, the “working area”, are located towards the North. The book cafe binds the ground and upper level with grand stairs, and the auditorium is located below. The changing colour and texture of natural light at the very core of the ground floor renders the most ordinary yet enchanting scenes throughout a day, and around it unfolds the diverse universe for the youth.
© Lee Choong-Gun
李宗光
为了让青年体验到的不仅仅是一个盒子,无论是身体上的还是隐喻上的,青年中心的空间不断地被赋予各种不同的空间特征,可以用五种感官来享受。书店和健身房被赋予最高的天花板和建筑内最大的音量。中学生在大楼梯上他们最喜欢的地方读书,母亲和孩子之间轻柔的嗡嗡声,以及沿着看台边缘从一层搬到另一层的过客的轻柔的嗡嗡声,这些都体现了书店的特色。欢呼的声音和弹跳的球,年轻球员的步伐有节奏的回声,午后懒洋洋的阳光飘进太空,作为一个整体竞争体育馆。
In order for the youth to experience more than a box, both physically and metaphorically, spaces in the youth center are persistently provided with varying spatial characteristics that can be enjoyed with five senses. The book cafe and the gym are given the highest ceiling and the largest volume inside the building. Middle schoolers reading books in their favourite spots on the grand stairs, soft buzzing sound of small talks between a mother and a child, and the passers by who stride along the edge of the stand to move from one floor to the other all together deliver the characteristic of the book cafe. The noise of cheering shouts and bouncing balls, rhythmical echo of young players' steps, and the lazy afternoon sun beam drifting into the space compete the gym as a whole.
© Lee Choong-Gun
李宗光
1st Floor Plan
一楼图则
© Lee Choong-Gun
李宗光
2nd Floor Plan
二楼图则
在建筑物内走道的每一端,视野都会进一步向外生长。一扇窗户对着另一扇窗,一条通道的尽头被一扇窗户、它的景色和它的光线所突出。通过这种空间结构,墙只是分割工具,但它们更多地连接和联系着它们两侧的空间。二楼的“共用墙”是由小展览箱、长椅、窗户和架子组成的。除了提供视觉连接或为手工制作的物品提供空间外,这堵墙还邀请人们坐下来呆在空间里。因此,在多用途房间前面的通道成为另一个足够的空间让年轻人在这里停留和休息,而不仅仅是一个门槛。
At the every end of walkways inside the building visual fields grow further outside. One window is faced with another, and the end of a passage is accentuated by a window and its view and its light. Through this structure of spaces, walls are merely dividing tools, but they rather connect and relate the spaces on their both sides. The "sharing walls" on the second floor are built with small show-boxes, benches, windows, and shelves. Besides enabling visual connection or providing spaces for hand-crafted goods, the wall invites people to sit and stay in the space. As a result, the passage in front of the multipurpose rooms becomes another adequate space for the youth to stay and rest, a place more than just a threshold.
© Lee Choong-Gun
李宗光
Architects Studio In Loco, Utopian Architects
Location Suwon-si, Gyeonggi-do, South Korea
Area 1647.0 m2
Project Year 2017
Photographs Lee Choong-Gun
Category Youth Center
Manufacturers Loading...
客服
消息
收藏
下载
最近


































