查看完整案例

收藏

下载
#6是A
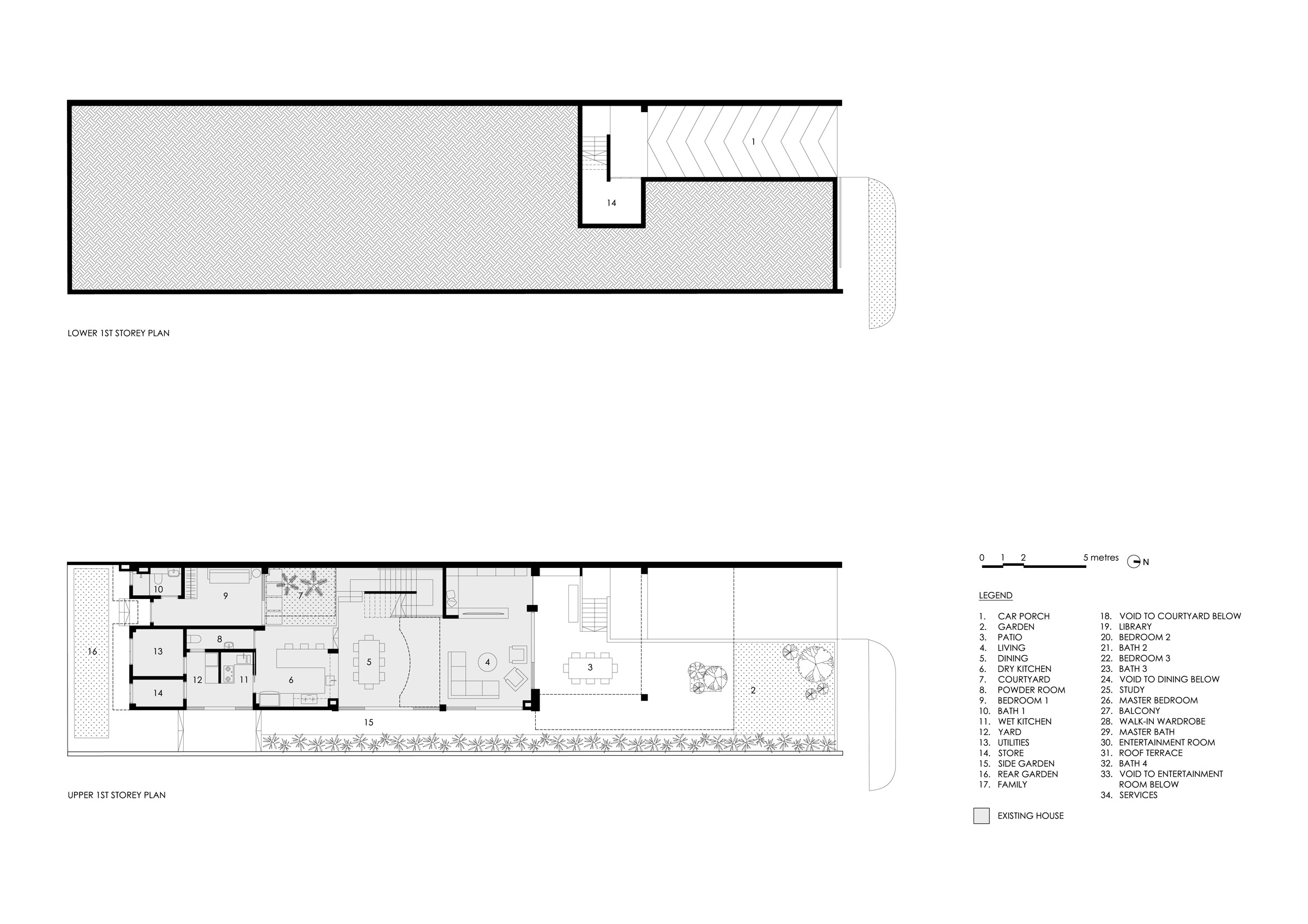
规划指南允许2层的房屋和一个允许的总高度为13.1米(4.5 3.6 5)的阁楼。由于这些准则是强加在所有的房子在附近,每一个房子将是相同的高度,如果他们是建立在什么是允许的。设计的目的是使房子看起来比允许的要高,因此成为6号的起点。
允许的建筑体积被大檐篷切割,在这种建筑材料中,牧师窗户和护墙合并形成的通风块的“带状”后面隐藏着地板线,从而形成了一个多个堆叠体积的房子。从最小的“波段”内的最大模块到最顶上的“波段”中最小模块的通风块的布置,通过错误的视角强调建筑物的高度。
由大檐篷构成的通风块和深悬,是该地区常见的建筑材料和元素,是对气候条件的响应演变而来的。他们独特的部署在6号,导致一个房子,也出现了像一个雕塑上升在“海边的房子”在附近。
Firm Studio Wills + Architects
Type Residential › Private House
STATUS Built
YEAR 2017
SIZE 5000 sqft - 10,000 sqft
BUDGET Undisclosed
keywords:architecture, architecture news, interiors, interior design, portfolio, spec, brands, marketplace, products #6
关键词:建筑,建筑新闻,室内设计,组合,规格,品牌,市场,产品#6
客服
消息
收藏
下载
最近























