查看完整案例

收藏

下载
© Sergio Pirrone
c.塞尔吉奥·皮尔龙
架构师提供的文本描述。在大西洋的中部,在圣维森特岛,在一个风吹雨打的小岛上,八月份只有雨。一位法国徒步旅行向导决定为那些想去最近的山岛圣安陶岛徒步旅行的游客建造自己的酒店。
Text description provided by the architects. In the middle of the Atlantic ocean, in the island of Sao Vicente, in a dry windy island where only rain in August. A France trekking guide decides to build his own hotel for the incoming tourists that want to go trekking in the nearest mountain island of Santo Antao.
© Sergio Pirrone
c.塞尔吉奥·皮尔龙
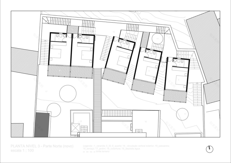
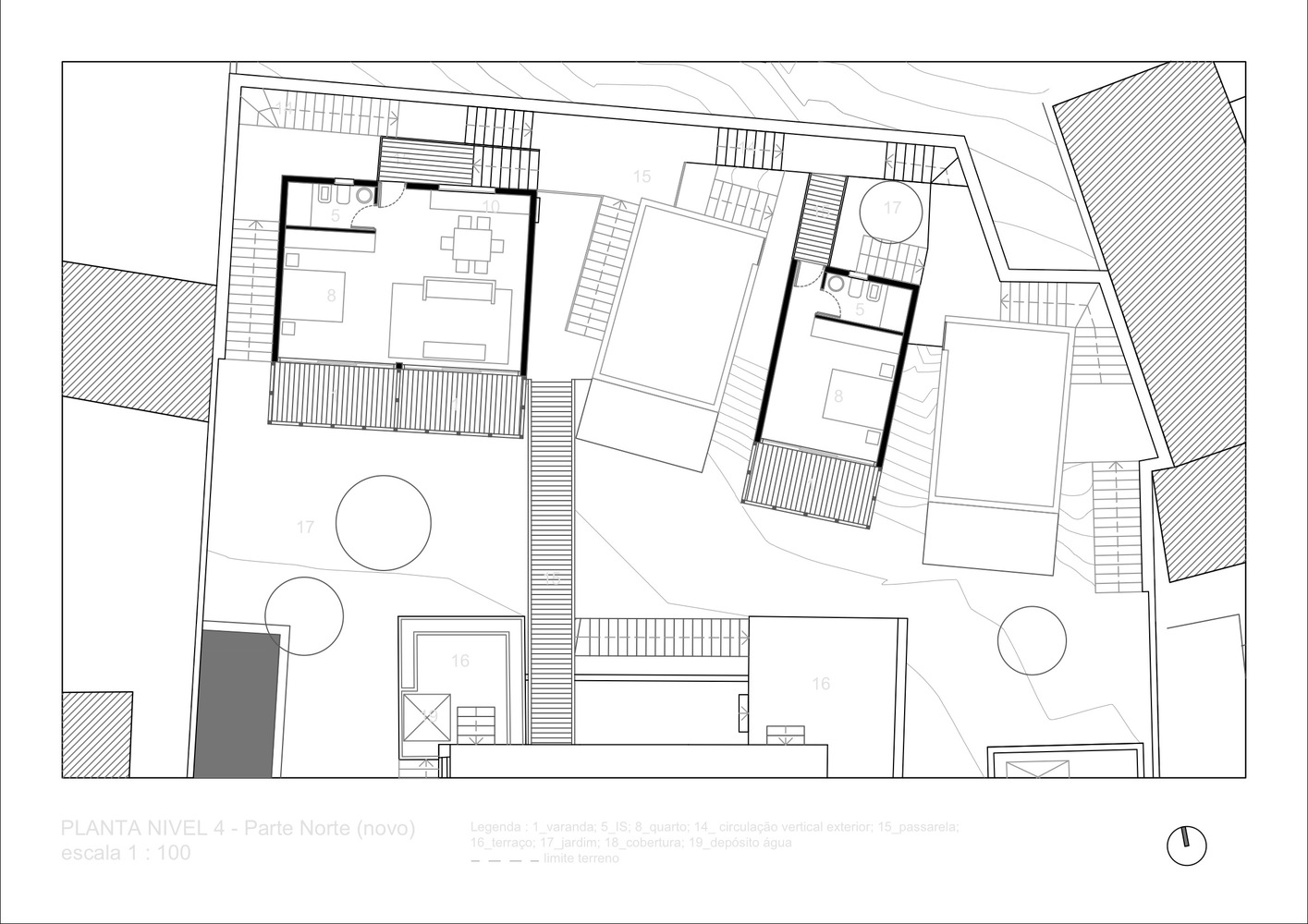
Fourth Level Plan - General
第四阶段计划-一般计划
导游在历史中心的边缘买了一座殖民时代的老房子,并问建筑师们,老房子也要成为新酒店项目的主角和一部分。他们的游客来到该岛2-3天,经过他的酒店,然后乘渡船前往另一个岛屿-安陶岛。通常为他的客户提供的酒店是他们第一个住在非洲的地方。RamosCastellano ArquArchtos采用了与其他周围建筑相同的植入理念,使分离的单元适应地形的形态。
The guide bought an old colonial house on the edge of the historical center, and ask the architects that the old house has also to be the starring and part integrate of the new hotel project. Their tourists came to the island for 2-3 days passing by his hotel before taking the ferry for the other island of Santo Antao. The hotel usually for his client is the first African place where they stay. RamosCastellano Arquitectos used the same implantation philosophy of the other surrounding building, adapting the separated units to the morphology of the terrain.
© Sergio Pirrone
c.塞尔吉奥·皮尔龙
© Sergio Pirrone
c.塞尔吉奥·皮尔龙
将建筑分开,在建筑环境中将它们融为一体,用山上的石头建造通往房间的道路,为下一个目的地-圣安陶岛的客户做好准备。每个街区都面临着从城市到海湾的不同的风景,走廊是用太阳路径来研究的,白天试图阻挡直接的太阳辐射,并给客人一个受保护的角落来欣赏风景。
Separating the buildings melting them in the built environment, creating with the mountain local's stones the path to the rooms, preparing the clients for the next destination, Santo Antao. Each block is facing a different view from the city to the bay, the verandah is studied with the solar path, trying to block the direct solar irradiation during the day, and giving a protected corner to the guest for enjoying the views.
© Sergio Pirrone
c.塞尔吉奥·皮尔龙
通常是从撒哈拉沙漠北纬方向吹来的风被早餐酒吧的建筑所缓解。所有房间的开放都是为了保证交叉通风和被动气候系统。每一种解决方案都是简化的,以适应岛屿缺乏物质和资源,简单和必要的满足基本需求,而不是短暂的时尚。几乎所有的东西都是手工制作的,雇用的人来自社区,从地板装饰到家具,试图在社会环境中分配建筑的经济。
The wind usually coming from the Sahara desert in N-E direction is mitigated by the breakfast-bar building. All the rooms opening are studied for guaranty crossed ventilation and passive climatization systems. Every solution is simplified adapting to the island lack of material and resources, simple and essential for satisfying basic needings, not for ephemeral fashion. Almost everything is handmade, employing people from the neighborhood, from the floor finishing to the furniture, trying to distribute the economy of the building construction in the social environment.
© Sergio Pirrone
c.塞尔吉奥·皮尔龙
© Sergio Pirrone
c.塞尔吉奥·皮尔龙
外面的材料仍然是原材料,木为阳台,石灰泥为白色建筑,对比的侵略性元素,太阳,风,海喷雾。再生材料,光伏板在屋顶,水循环系统为灌溉,强调生态方面的工程,砌块的墙壁是用岩石的地形。这扇门是由石油桶中回收的金属制成的,这些金属在当地被用来制造门和手工制品。
The external materials remain raw, wood for the verandah, lime puddy for the white buildings, for contrast the aggressive elements, sun, wind, sea spray. Recycled material, photovoltaic panels in the roofs, water recycling systems for the irrigation, emphasize the ecological side of the project, the blocks of the walls are made with the rocks of the terrain. The gate is made of recycled metal from the petroleum barrels, that are used locally for made doors and artisanal objects.
© Sergio Pirrone
c.塞尔吉奥·皮尔龙
家具是由建筑师和照明系统设计的,使用的是本地手工制作的,以及从电缆线圈中回收的木材。这座古老的绿色殖民别墅是主人的旅行社的主人,在其他周围的建筑里,有12间酒店客房加一间套房,还有一间挂在皮罗提斯早餐酒吧里。老殖民地的屋顶有一个中心作用,在那里客人享受早餐和日落。穿过房顶和酒店房间的道路是由一座连接它们的桥梁建造的,就像在一部冒险电影中一样。
The furniture is designed by the Architects and the illumination systems too, using locally handcrafted, and recycled wood from electric cable coils. The old green colonial house host the owner's tourist agency, and in the other surrounding buildings 12 hotel rooms plus a suite, and a suspended on pilotis breakfast bar. The roof of the old colonial house has a central role, where guest enjoys the breakfast and the sunset. The path through the roof and the hotel rooms are made by a bridge that links them, like in an adventures movie.
© Sergio Pirrone
c.塞尔吉奥·皮尔龙
© Sergio Pirrone
c.塞尔吉奥·皮尔龙
Architects Ramos Castellano Arquitectos
Location Mindelo, Cape Verde
Lead Architects Eloisa Ramos, Moreno S. Castellano
Area 600.0 m2
Project Year 2017
Photographs Sergio Pirrone
Category Hotels
Manufacturers Loading...
客服
消息
收藏
下载
最近


































































