查看完整案例

收藏

下载
© Edward Duarte
(爱德华·杜阿尔特)
架构师提供的文本描述。这个项目是一个工作场所的洛杉矶办事处的领先咨询公司,专门从事经济,房地产和城市规划。该公司在纽约、达拉斯、洛杉矶和华盛顿特区设有办事处,就即将在洛杉矶市中心的高层大楼内搬迁一事与我们接洽。
Text description provided by the architects. This project is a workplace for the Los Angeles offices of a leading consulting firm specializing in economic, real estate and urban planning. With offices in New York, Dallas, Los Angeles, and Washington D.C., the company approached us regarding their upcoming relocation within a high-rise in downtown Los Angeles.
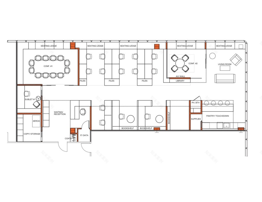
Floor Plan
战略规划是公司工作的核心,特别是“.将城市改造成充满活力的城市中心.”。物理空间是一个相对紧凑的2500平方英尺,在29楼的一个高层建筑群(布洛克),控制着城市的北部和西部的戏剧性景观。开放的工作文化,加州,城市规划,然后合并成一个单一的设计操作。
Strategic planning is central to the firm’s work, in particular, “...the reinvention of cities into vibrant urban centers...”. The physical space was a relatively compact 2,500 sqft on the 29th floor of a high-rise complex (The Bloc) commanding dramatic views north and westward of the city. Open work culture, California, urban planning were then merged into a single design operation.
© Edward Duarte
(爱德华·杜阿尔特)
We proposed a specific combination of positive and negative pairs of spaces, servicing each other based on rules. There are no fully enclosed offices; only open or “semi-private” individual workplaces. All other uses are services by enclosed pods. Collaboration and conferencing needs are met by two conference areas, large and small. Acoustic privacy by a ‘phone booth’. An unprogrammed lounge and open break area are placed in the corner, at the intersection of all views. The firm is, therefore, free to use any spatial combination it sees.
© Edward Duarte
(爱德华·杜阿尔特)
Carpet Axonometric Exploded
地毯轴测爆炸
© Edward Duarte
(爱德华·杜阿尔特)
Architects CHA:COL
Location 700 S Flower St #2670, Los Angeles, California, United States
Area 2500.0 ft2
Project Year 2016
Photographs Edward Duarte
Category Offices Interiors
Manufacturers Loading...
客服
消息
收藏
下载
最近



































