查看完整案例

收藏

下载
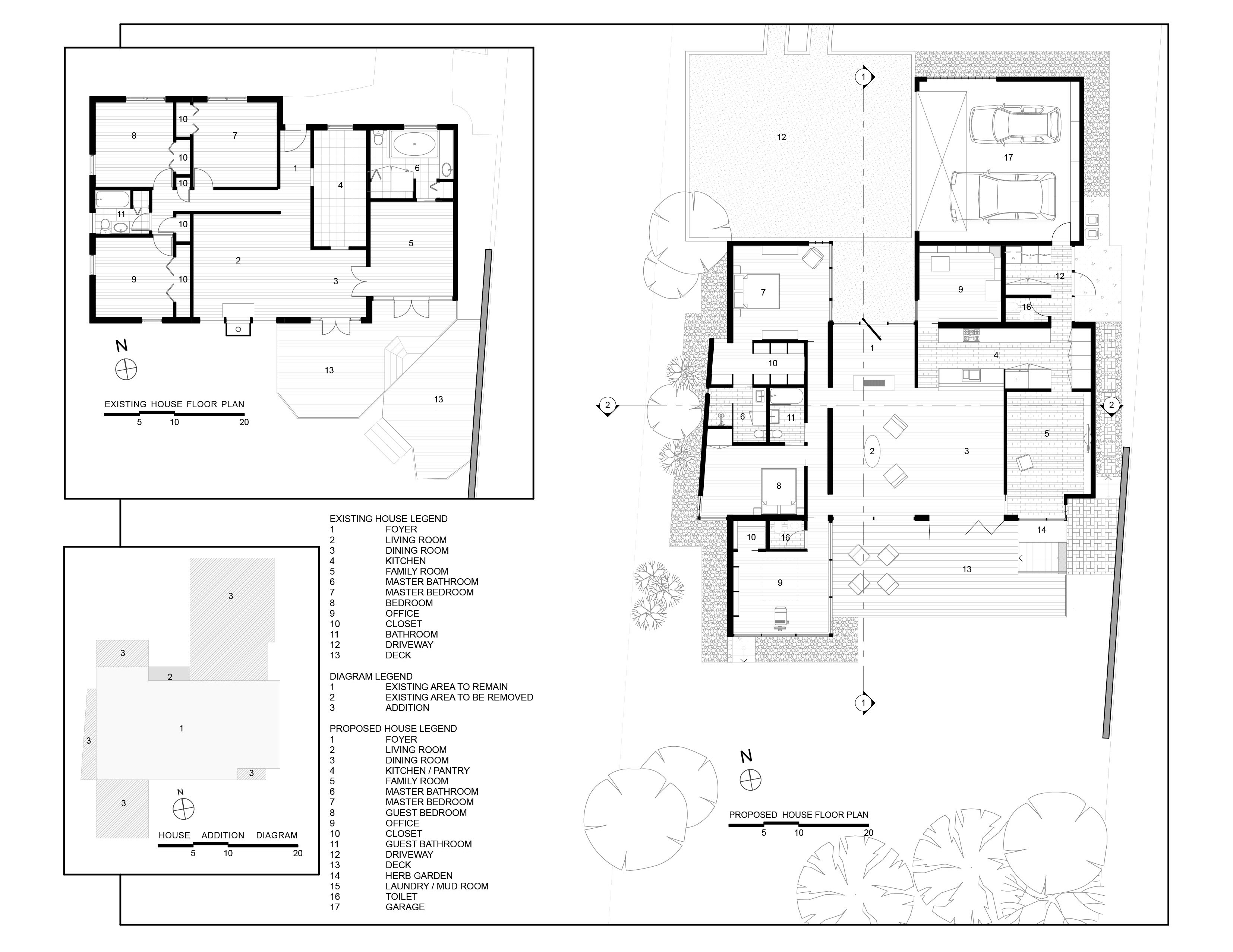
世纪中叶,在全国各地的农场式住宅和风格的受欢迎程度的下降使我们拥有了大量同质的住房,易受撕裂、砍伤、激进篡改和其他不幸的权宜之计。
(1)满足业主的愿望,为混乱的计划带来秩序,并为他们美丽的林地打开大门
(2)尊重房屋的风格,并为现有的类似牧场式住宅的社区提供一个显而易见的例子,即增加和翻新可以适应当前的生活方式,同时又能保持原貌。
该网站最显著的特点是一个深地段倾斜到小溪与许多成熟的树木。他们的主要要求是房子后面的大玻璃,再加上向南的一层甲板,进入这一令人惊叹的地方。我们的解决方案将平面图重新整理成他们想要的生活方式,打开整个房子的观景走廊,以便在视觉上扩大房间的大小(2,200平方英尺的有条件的空间),并成功地将它们扩展到景观中。
园艺是业主们最喜欢的职业,大型甲板上有室外用餐和集装箱种植的空间,必须到后院去,就像放在甲板下面的盆栽棚和储藏室一样。
可持续的特点包括:
·改造现有房屋,反对拆迁和新建房屋。
·绝缘和排气的爬行空间;安装了蒸汽屏障、氡排放系统和绝缘管道。
·地下热泵系统,垂直地热井安装在新的车道下面,用于供暖、冷却和热水。安装能量回收通风系统。
·现有橡木地板和砖单板-回收和再利用
*高反照率的立缝金属屋顶
·地球工艺认证
*低或无V.O.C.材料和成品
垃圾填埋场改道方案
·真灰泥外墙饰面
·铝仓前、门窗热破碎,涂层低,太阳能热系数超过能源法规要求。
•延长现有屋檐,以在夏季提供额外的玻璃区域阴影。
图片来源:Fredrik Brauer
Firm Robert M. Cain, Architect
Type Residential › Private House
STATUS Built
YEAR 2014
SIZE 1000 sqft - 3000 sqft
keywordsarchitecture, architecture news, interiors, interior design, portfolio, spec, brands, marketplace, products Ranch Style Redux
关键词建筑,建筑新闻,内饰,室内设计,组合,规格,品牌,市场,产品牧场风格
客服
消息
收藏
下载
最近












