查看完整案例

收藏

下载
建造者Neoblock模组助推器James Braybrooke更多规格少规格
Builder Neoblock Modular Promoter James Braybrooke More Specs Less Specs
© Mariela Apollonio
玛丽拉·阿波罗尼奥
架构师提供的文本描述。家[从b]拉特。āRIS;德。集中的地方,起火的地方。房屋一群住在一起的人。“房子就是外套。”阿尔瓦罗·西扎“房子是一台住宅机器”。勒柯布西耶
Text description provided by the architects. Home [From b. Lat. Focāris, adj. Der. Of focus, fire] Place where the fire is made. House. Group of people living together. "The house is the coat." Álvaro Siza "The house is a dwelling machine". Le Corbusier
© Mariela Apollonio
玛丽拉·阿波罗尼奥
© Mariela Apollonio
玛丽拉·阿波罗尼奥
英国客户爱上了阿斯图里亚斯,决定他们的第二个家将工业化。在马德里的一家工厂生产了四个月,然后转移到600公里的最后地点,穿过坎塔布里亚山脉,在那里只需5个小时就能组装好。最后,黑色板岩屋顶是由该地区的一名工匠放置的。英国退欧时代的技术和传统。
English clients, in love with Asturias, decide that their second home will be industrialized. Produced during four months in a factory in Madrid and transferred to its final location at 600 km, crossing the Cantabrian mountain range, where it will assemble in only 5 hours. Finally, the black slate roof is placed by a craftsman of the zone. Technology and tradition in the days of Brexit.
© Mariela Apollonio
玛丽拉·阿波罗尼奥
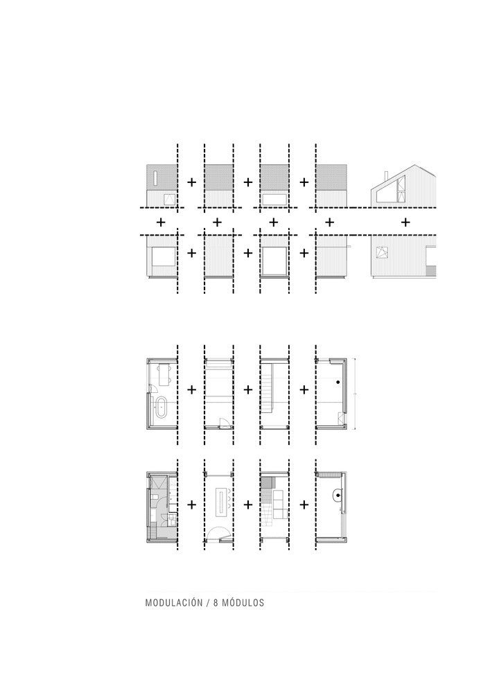
该项目是在两个层次上开发的,有一个简单的程序,将安装分组在2.15x5.30m三个模块中的一个模块中。金属楼梯是住宅的中心部分,围绕着这个程序运行,并与挂在起居室的烟囱对话。上层是两间房间,隔开一层轻质聚碳酸酯墙,隔开光线。
The project is developed on two levels, with a simple program that groups the installations in one of the three modules of 2.15 x 5.30 m that conform it. The metal staircase is the central element of the dwelling, around which the program runs and which dialogues with the chimney suspended from the living room. The upper floor contains the two rooms, separated by a light polycarbonate wall that sifts the light.
© Verónica Carreño
(Verónica Carre o)
一个英国园林设计师和他的家人的家,积极与客户一起开发,从一开始就参与了这个项目,显示出对它所在的农村环境的绝对尊重。一个由“hórreo”和一个传统住所组成的奇妙情结,正在修复过程中是旅游住宿,它仍然保持着该项目的活力。
A home for an English landscaper and his family, actively developed with clients, involved in the project from the very beginning outset, showing absolute respect for the rural environment where it is located. A wonderful complex formed by an "hórreo" and a traditional dwelling, in process of rehabilitation is tourist accommodation, that still keeps alive the project.
© Mariela Apollonio
玛丽拉·阿波罗尼奥
© Mariela Apollonio
玛丽拉·阿波罗尼奥
新的构想房屋的方式,一种高质量的产品,试图接近汽车和航空工业,这使得建筑未来的发展提供了一种更有活力、更多用途和更合理的使用空间的方法。
New ways of conceiving housing, a high-quality product, that tries to approach to the automotive and aeronautics industry, that allows a future growth of the building offers a way of using the space in a much more dynamic, versatile and rational way.
© Verónica Carreño
(Verónica Carre o)
在工厂生产房屋并将其运到现场的系统,除了对工作质量有更多的控制外,还意味着以下所列的几个优点。
System The fact of producing our homes in a factory and transported them to the site completely finished, apart from getting more control over the quality of work, means several advantages which are listed below.
1.成本和提前时间减少,从而带来更快的效益[4个月]。2.更高的工作安全性和减少潜在的工作风险。3.高质量的施工,符合CTE和节能的要求.4.不同的材料选择。适应性强的和可出口的住房[正在成长的房屋]。5.把房子重新安置在另一个地方[流动]的选择。
1. Costs and lead time reduction and therefore faster benefits [4 months]. 2. Higher security at work and reduction of potential working risks. 3. High-quality construction, meeting the requirements of the CTE and Energy Efficiency. 4. Different materials option. Adaptable and exportable housing [Growing Houses]. 5. The option of relocating the house in another place [Mobility].
6.从建筑和使用材料的角度来看,真正的可持续性。优化与回收7.噪音、不适和减少浪费。主要工作是在工厂里完成的。8.房屋的工程、设计、制造和装配。9.结构安全和精度,整体在地震区。10.对未来电梯需求的预测。
6. Real sustainability from the way of building and used materials. Optimization and Recycling. 7. Noise, discomfort and waste reduction. The main work is done at the factory. 8. Project, design, manufacture, and assembly of the house. 9. Structural Safety and precision, overall in earthquake zones. 10. Forecast of need for elevator in the future.
Constructive Section
建设性科
该系统用于住宅建设,是一个模块化的三维组件系统制造的装配。主要结构为镀锌钢板单元,焊接解决了刚性接头,满足了CTE的所有要求。模块化建筑系统制造装配线,不仅是为了优化能源、人力和材料,而且是为了优化建筑的定制和适应性。
The system used for the housing construction is a modular three-dimensional components system manufactured in assembly. The main structure is composed of galvanized steel sheet elements with rigid joints solved by welding, fulfilling all requirements set by the CTE. The modular construction system manufacturing assembly line not only seeks to optimize energy resources, human and material but also to optimize in benefit of customization and adaptation of the building.
Architects [baragaño]
Location Asturias, Spain
Architects in Charge Verónica Carreño, Fabio Trabanco
Area 100.0 m2
Project Year 2016
Photographs Mariela Apollonio, Verónica Carreño
Category Houses
Manufacturers Loading...
客服
消息
收藏
下载
最近


![Montaña House [baragaño]-3](https://image.linggan.znzmo.com/case/img/0f83fea48b5f4c73e6b5785d662598e99f410975.jpg?x-oss-process=image/auto-orient,1/watermark,text_55-l5pyr5qGI5L6L,size_20,rotate_45,fill_1,t_5,x_200,y_200/resize,m_mfit,w_750,h_563,limit_0)
![Montaña House [baragaño]-8](https://image.linggan.znzmo.com/case/img/1a2f33340b66ec0f2551ac83609f5b6fe6bdc01e.jpg?x-oss-process=image/auto-orient,1/watermark,text_55-l5pyr5qGI5L6L,size_20,rotate_45,fill_1,t_5,x_200,y_200/resize,m_mfit,w_750,h_563,limit_0)
![Montaña House [baragaño]-10](https://image.linggan.znzmo.com/case/img/1060e2906e20d7747f1a25df3eb6b5d463bab27b.jpg?x-oss-process=image/auto-orient,1/watermark,text_55-l5pyr5qGI5L6L,size_20,rotate_45,fill_1,t_5,x_200,y_200/resize,m_mfit,w_750,h_530,limit_0)
![Montaña House [baragaño]-12](https://image.linggan.znzmo.com/case/img/62334b2f9bf54ba38a41fad4e65f2505dab784cc.jpg?x-oss-process=image/auto-orient,1/watermark,text_55-l5pyr5qGI5L6L,size_20,rotate_45,fill_1,t_5,x_200,y_200/resize,m_mfit,w_750,h_563,limit_0)
![Montaña House [baragaño]-17](https://image.linggan.znzmo.com/case/img/ce5e301bd51f54d907716ae422fba1cbe2538193.jpg?x-oss-process=image/auto-orient,1/watermark,text_55-l5pyr5qGI5L6L,size_20,rotate_45,fill_1,t_5,x_200,y_200/resize,m_mfit,w_750,h_563,limit_0)
![Montaña House [baragaño]-21](https://image.linggan.znzmo.com/case/img/fb3ebe8c86222cfcfff088c3b2042b8b81b7d2a8.jpg?x-oss-process=image/auto-orient,1/watermark,text_55-l5pyr5qGI5L6L,size_20,rotate_45,fill_1,t_5,x_200,y_200/resize,m_mfit,w_750,h_530,limit_0)
![Montaña House [baragaño]-23](https://image.linggan.znzmo.com/case/img/26e8f67fabf39583770cc1527dc65df9f893bfd8.jpg?x-oss-process=image/auto-orient,1/watermark,text_55-l5pyr5qGI5L6L,size_20,rotate_45,fill_1,t_5,x_200,y_200/resize,m_mfit,w_750,h_526,limit_0)
![Montaña House [baragaño]-28](https://image.linggan.znzmo.com/case/img/5340b07edf9f1bcda1d634f37d8bd83b1ba1a4e3.jpg?x-oss-process=image/auto-orient,1/watermark,text_55-l5pyr5qGI5L6L,size_20,rotate_45,fill_1,t_5,x_200,y_200/resize,m_mfit,w_750,h_563,limit_0)
![Montaña House [baragaño]-30](https://image.linggan.znzmo.com/case/img/67eb3c154f1221258394702dcbb6a31b074f87c2.jpg?x-oss-process=image/auto-orient,1/watermark,text_55-l5pyr5qGI5L6L,size_20,rotate_45,fill_1,t_5,x_200,y_200/resize,m_mfit,w_750,h_530,limit_0)
![Montaña House [baragaño]-32](https://image.linggan.znzmo.com/case/img/33c461e62e096dfd66948544cbaa19c76af0cccc.jpg?x-oss-process=image/auto-orient,1/watermark,text_55-l5pyr5qGI5L6L,size_20,rotate_45,fill_1,t_5,x_200,y_200/resize,m_mfit,w_750,h_563,limit_0)
![Montaña House [baragaño]-37](https://image.linggan.znzmo.com/case/img/6c3bae545f5bb4c0be47446ed34d678bd87d1bb0.jpg?x-oss-process=image/auto-orient,1/watermark,text_55-l5pyr5qGI5L6L,size_20,rotate_45,fill_1,t_5,x_200,y_200/resize,m_mfit,w_750,h_527,limit_0)
![Montaña House [baragaño]-46](https://image.linggan.znzmo.com/case/img/bf2c0f0dff5d1c0027b1117281c62b9528103974.jpg?x-oss-process=image/auto-orient,1/watermark,text_55-l5pyr5qGI5L6L,size_20,rotate_45,fill_1,t_5,x_200,y_200/resize,m_mfit,w_528,h_747,limit_0)
![Montaña House [baragaño]-50](https://image.linggan.znzmo.com/case/img/4c2d36617a4a503ac5198f59196a11b1ab6dcbe3.jpg?x-oss-process=image/auto-orient,1/watermark,text_55-l5pyr5qGI5L6L,size_20,rotate_45,fill_1,t_5,x_200,y_200/resize,m_mfit,w_880,h_660,limit_0)
![Montaña House [baragaño]-55](https://image.linggan.znzmo.com/case/img/bd9c1f315f61376c71b2f7b11c73deb155659050.jpg?x-oss-process=image/auto-orient,1/watermark,text_55-l5pyr5qGI5L6L,size_20,rotate_45,fill_1,t_5,x_200,y_200/resize,m_mfit,w_880,h_660,limit_0)
![Montaña House [baragaño]-56](https://image.linggan.znzmo.com/case/img/1d60f607a111449cf09666a1d6cb7b1195c2c8ba.jpg?x-oss-process=image/auto-orient,1/watermark,text_55-l5pyr5qGI5L6L,size_20,rotate_45,fill_1,t_5,x_200,y_200/resize,m_mfit,w_880,h_617,limit_0)
![Montaña House [baragaño]-57](https://image.linggan.znzmo.com/case/img/bca64035dac44327698db8f3cd015b12f3caee61.jpg?x-oss-process=image/auto-orient,1/watermark,text_55-l5pyr5qGI5L6L,size_20,rotate_45,fill_1,t_5,x_200,y_200/resize,m_mfit,w_880,h_660,limit_0)
![Montaña House [baragaño]-61](https://image.linggan.znzmo.com/case/img/19eeb330defba1680c444b050d9e2896f243623c.jpg?x-oss-process=image/auto-orient,1/watermark,text_55-l5pyr5qGI5L6L,size_20,rotate_45,fill_1,t_5,x_200,y_200/resize,m_mfit,w_880,h_617,limit_0)
![Montaña House [baragaño]-62](https://image.linggan.znzmo.com/case/img/2a5ba108531a28bd249e881b04779df53b9f1291.jpg?x-oss-process=image/auto-orient,1/watermark,text_55-l5pyr5qGI5L6L,size_20,rotate_45,fill_1,t_5,x_200,y_200/resize,m_mfit,w_880,h_685,limit_0)
![Montaña House [baragaño]-64](https://image.linggan.znzmo.com/case/img/f74de97f7c8573a809632caf02d0d28ff5892bc8.jpg?x-oss-process=image/auto-orient,1/watermark,text_55-l5pyr5qGI5L6L,size_20,rotate_45,fill_1,t_5,x_200,y_200/resize,m_mfit,w_880,h_617,limit_0)
![Montaña House [baragaño]-65](https://image.linggan.znzmo.com/case/img/9ab94d4f38201bda9ba3bd1be9fad08f3dfca36e.jpg?x-oss-process=image/auto-orient,1/watermark,text_55-l5pyr5qGI5L6L,size_20,rotate_45,fill_1,t_5,x_200,y_200/resize,m_mfit,w_880,h_619,limit_0)
![Montaña House [baragaño]-66](https://image.linggan.znzmo.com/case/img/3559baa805c8f9bd6d9773a5cd0fbd0b80e1b268.jpg?x-oss-process=image/auto-orient,1/watermark,text_55-l5pyr5qGI5L6L,size_20,rotate_45,fill_1,t_5,x_200,y_200/resize,m_mfit,w_880,h_880,limit_0)
![Montaña House [baragaño]-68](https://image.linggan.znzmo.com/case/img/319d32e22e1dd367ba69d309056ad99b1f6c4585.jpg?x-oss-process=image/auto-orient,1/watermark,text_55-l5pyr5qGI5L6L,size_20,rotate_45,fill_1,t_5,x_200,y_200/resize,m_mfit,w_880,h_880,limit_0)
![Montaña House [baragaño]-69](https://image.linggan.znzmo.com/case/img/a7e175024e9af5d76184cfada198a5a5bc905921.jpg?x-oss-process=image/auto-orient,1/watermark,text_55-l5pyr5qGI5L6L,size_20,rotate_45,fill_1,t_5,x_200,y_200/resize,m_mfit,w_880,h_621,limit_0)
![Montaña House [baragaño]-70](https://image.linggan.znzmo.com/case/img/254ef45844d19407a5954cfa0c902408d0df34ac.jpg?x-oss-process=image/auto-orient,1/watermark,text_55-l5pyr5qGI5L6L,size_20,rotate_45,fill_1,t_5,x_200,y_200/resize,m_mfit,w_880,h_621,limit_0)
![Montaña House [baragaño]-71](https://image.linggan.znzmo.com/case/img/3e1c5a166925b14280f49b1a234e8f3f54ead32c.jpg?x-oss-process=image/auto-orient,1/watermark,text_55-l5pyr5qGI5L6L,size_20,rotate_45,fill_1,t_5,x_200,y_200/resize,m_mfit,w_880,h_621,limit_0)
![Montaña House [baragaño]-72](https://image.linggan.znzmo.com/case/img/0e3bedf6652836351918b51807e3e5956db8c315.jpg?x-oss-process=image/auto-orient,1/watermark,text_55-l5pyr5qGI5L6L,size_20,rotate_45,fill_1,t_5,x_200,y_200/resize,m_mfit,w_880,h_621,limit_0)
![Montaña House [baragaño]-73](https://image.linggan.znzmo.com/case/img/fb42402f2c76315ce7baa67d46a806a5c5636dbb.jpg?x-oss-process=image/auto-orient,1/watermark,text_55-l5pyr5qGI5L6L,size_20,rotate_45,fill_1,t_5,x_200,y_200/resize,m_mfit,w_880,h_621,limit_0)
![Montaña House [baragaño]-74](https://image.linggan.znzmo.com/case/img/325fa39166d8a7d3dfebfed71d830b1d0eb35f3d.jpg?x-oss-process=image/auto-orient,1/watermark,text_55-l5pyr5qGI5L6L,size_20,rotate_45,fill_1,t_5,x_200,y_200/resize,m_mfit,w_880,h_621,limit_0)
![Montaña House [baragaño]-76](https://image.linggan.znzmo.com/case/img/f2c9a1514c7ea77ba099829e6a8a714addddb974.jpg?x-oss-process=image/auto-orient,1/watermark,text_55-l5pyr5qGI5L6L,size_20,rotate_45,fill_1,t_5,x_200,y_200/resize,m_mfit,w_880,h_621,limit_0)
![Montaña House [baragaño]-78](https://image.linggan.znzmo.com/case/img/f84f0f743a6e4d133e1c7ca55ac30a6352f04aa0.jpg?x-oss-process=image/auto-orient,1/watermark,text_55-l5pyr5qGI5L6L,size_20,rotate_45,fill_1,t_5,x_200,y_200/resize,m_mfit,w_707,h_1000,limit_0)
![Montaña House [baragaño]-79](https://image.linggan.znzmo.com/case/img/7fb40d307839197d99624e2f9f77b8be7136c860.jpg?x-oss-process=image/auto-orient,1/watermark,text_55-l5pyr5qGI5L6L,size_20,rotate_45,fill_1,t_5,x_200,y_200/resize,m_mfit,w_707,h_1000,limit_0)
![Montaña House [baragaño]-81](https://image.linggan.znzmo.com/case/img/ff0a338363efc30cb4dced39bd3834e77f70262c.jpg?x-oss-process=image/auto-orient,1/watermark,text_55-l5pyr5qGI5L6L,size_20,rotate_45,fill_1,t_5,x_200,y_200/resize,m_mfit,w_707,h_1000,limit_0)
![Montaña House [baragaño]-82](https://image.linggan.znzmo.com/case/img/3a3f7f55a0cea41cede5f4ac85d76b0ab5120961.jpg?x-oss-process=image/auto-orient,1/watermark,text_55-l5pyr5qGI5L6L,size_20,rotate_45,fill_1,t_5,x_200,y_200/resize,m_mfit,w_880,h_621,limit_0)
![Montaña House [baragaño]-83](https://image.linggan.znzmo.com/case/img/f4ec6963ed783dfe35db39259e362f8d2d877992.jpg?x-oss-process=image/auto-orient,1/watermark,text_55-l5pyr5qGI5L6L,size_20,rotate_45,fill_1,t_5,x_200,y_200/resize,m_mfit,w_707,h_1000,limit_0)
![Montaña House [baragaño]-84](https://image.linggan.znzmo.com/case/img/f00cb8d4e984f01d4a5cd9a5aa946ffc506138eb.jpg?x-oss-process=image/auto-orient,1/watermark,text_55-l5pyr5qGI5L6L,size_20,rotate_45,fill_1,t_5,x_200,y_200/resize,m_mfit,w_707,h_1000,limit_0)
