查看完整案例

收藏

下载
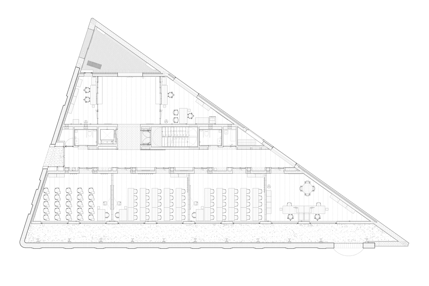
架构师提供的文本描述。这一公共设施包括一个成人教育中心、一个语言标准协会和一个位于议会区三角地块上的旅馆。1913年,位于卡尔-安格莱索拉(Calle Anglesola)的前普莱尔玻璃厂(Planell玻璃厂)的立面有三面。这座建筑利用了整个地块,作为城市景观的内在组成部分,尽管三角形形状和分类的faç阻止它占据整个地块。
Text description provided by the architects. This public facility houses an adult education centre, a language standarization consortium and a hotel on a triangular plot in the Parliament district. Two of the three sides of the site area defined by the heritage-listed frontage of the former Planell glass factory, built on Calle Anglesola in 1913. The building makes use of the entire plot, acting as an intrinsic part of the urban landscape, although the triangular shape and the classified façades prevent it from occupying the entire site.
该方案分为四个层次,从南向的遗产外观开始倒退。由此产生的中庭协调了建筑和遗产,改善了教室的自然照明,提供了热和音障。这个狭长的庭院被再现在北端,它耗尽了建筑的几何图形,但作为建筑和外部管理用途之间的关系系统。
The programme is distributed across four levels which are set back from the south-facing heritage facade. The resulting atrium reconciles construction and heritage, improves the natural lighting for the classrooms and provides a heat and sound barrier. This long, narrow courtyard is reproduced at the northern vertex, which exhausts the geometry but acts as a relational system between the administrative uses of the building and the exterior.
© Adrià Goula
̀Goula
© Adrià Goula
̀Goula
建筑部分展示了如何在自然条件下控制和管理空气。冬季需要控制因空气更新造成的热损失,补偿由于墙体结构惯性而产生的沉重的内部负荷,并从中庭吸入新鲜空气,从而起到自然空气循环的作用。在夏天,热量必须通过移动尽可能大的空气和新鲜空气来消散,而新鲜空气必须是完全自然的,这是基于应用文丘里效应的太阳烟囱和盖子。
The building section shows how it controls and manages the air under natural conditions. In winter, it is necessary to control heat loss due to air renewal, redeem the heavy internal load built up due to the inertia of the wall structure, and draw fresh air in from the atrium, which thus acts as a natural air recycle. In summer, the heat has to be dissipated by moving the largest possible volume of air and fresh air must be strictly natural, based on solar chimneys and caps that apply the Venturi effect.
Climate Diagram
方案排除了庭院间的交叉通风,并且需要避免相互冲突的噪音。因此,这座建筑给每一条使用空间都提供了一个长长的结构间隙,空气在那里垂直流通,在烟囱里被太阳的力量“向上拉”,这也给建筑提供了一个轮廓和独特的、透明的物质。
Cross-ventilation between the courtyards is ruled out by the programme and the need to avoid conflicting noises. The building therefore gives each strip of usage space a long structural break where the air circulates vertically, ‘pulled upwards’ in the chimneys by the power of the sun, which also give the building a silhouette and a distinctive, transparent materiality.
© Adrià Goula
̀Goula
Architects H Arquitectes
Location Les Corts, Barcelona, Spain
Author Architects David Lorente, Josep Ricart, Xavier Ros, Roger Tudó
Collaborators Blai Cabrero Bosch, Montse Fornés Guàrdia, Toni Jiménez Anglès, Berta Romeo, Carla Piñol, Xavier Mallorquí, Andrei Mihalache
Area 1694.0 m2
Project Year 2016
Photographs Adrià Goula
Category Cultural Center
客服
消息
收藏
下载
最近
























