查看完整案例

收藏

下载
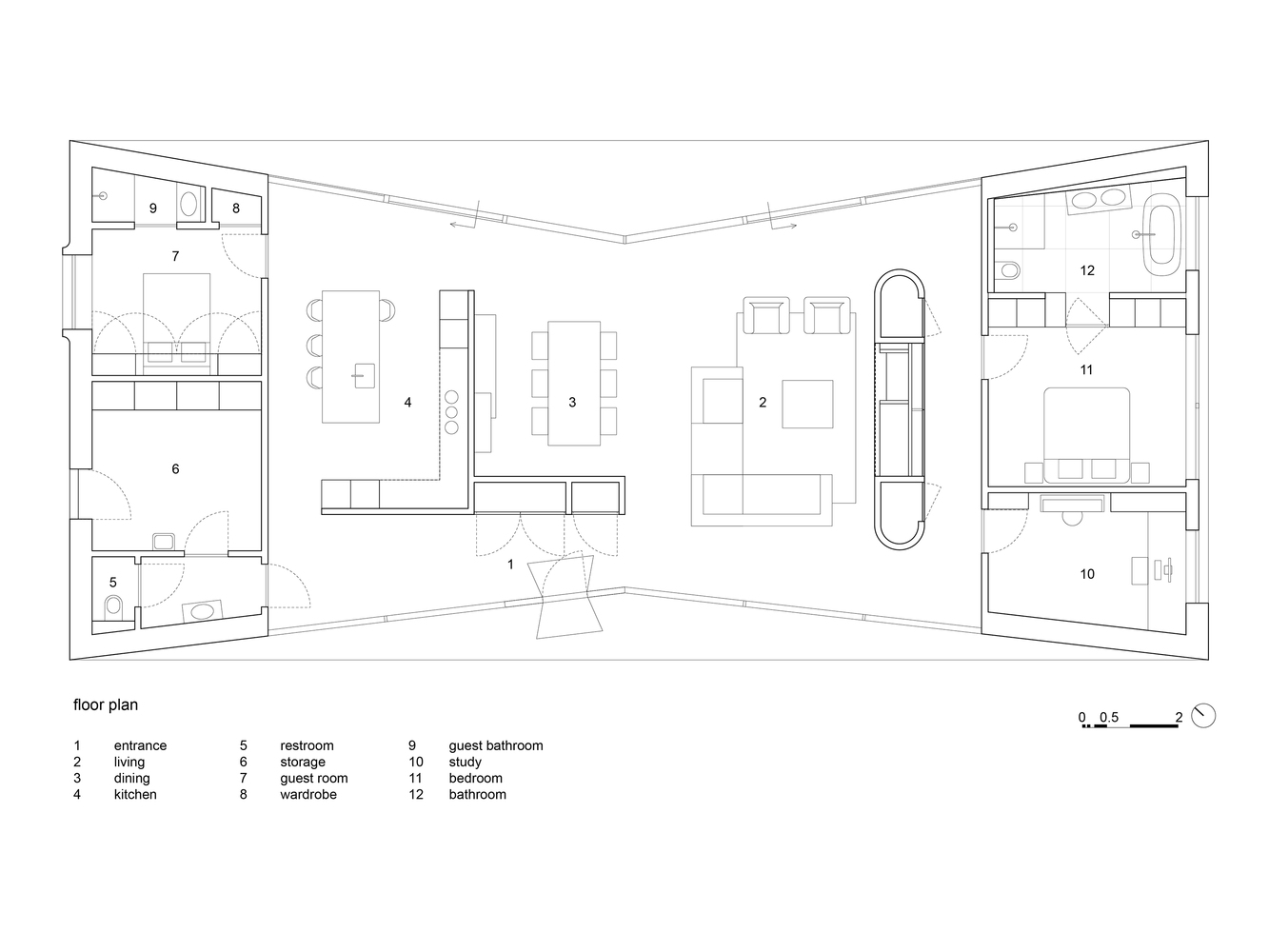
由德克·彼得斯(Dirk Peters)、卡洛·范德文内(Caro Van De Venne)、蒂姆·布兰斯(Tim Brans)和Wim Sjerps组成的建筑团队领导的条形码建筑师于2017年在荷兰设计了这座220平方米的这支由专业人士组成的团队设计了一个与花园完美结合的居住空间,以及封闭的房间,让这对夫妇“关上门”。这是一种极简的几何组合,结合了坚实和空洞,并基于客户在开放和隐私方面的意愿,设计了一个生活空间。简约,材料质量和现代外观是设计的关键。
简约主义建筑的廊外观
画廊中的视图
画廊中的视图
画廊中的视图
从外部看,可以清晰地读懂固体-空心的构图.一个长而透明的外墙覆盖着空地-“空隙”-而两端封闭的两块混凝土砌块则标志着“坚实”的私人空间,其中包含私人住宅空间。为了达到最佳的阳光曝晒和最大限度的花园大小,别墅被设想为一个单一的拉长盒子。完整的玻璃外墙打开客厅朝向花园,并允许日光呼吸生命的空间。
我们推荐这些项目-一座现代住宅,它以独特的方式将外部与内部连接起来,这座雄伟的建筑向我们展示了它的内部-一个从外部看不见的方面
画廊中的视图
画廊中的视图
在画廊看到光滑和抛光的细节
画廊中的视图
现代简约厨房
外墙有一个光滑和反光-与多层手抛光-这使它的微妙和豪华的效果。在里面,私人区域有一种私密的气氛,房间里有自己的身份。
在画廊的超现实主义浴室的视图
画廊夜景
画廊中的视图
画廊中的视图
画廊中的视图
画廊中的视图
画廊中的视图
keywords:Art Bathroom Contemporary Interior Design Decorative Accessory Fireplace Floor Plans Glass Walls Hall and Entrance Kitchen Landscaping Lighting Living Room Terrace Wall Decor
关键词:艺术浴室、现代室内设计、装饰附件、壁炉、平面图、玻璃墙、大厅和入口厨房、景观美化、照明、起居室、露台、墙面装饰
客服
消息
收藏
下载
最近


















