查看完整案例

收藏

下载
© Balázs Szelecsényi
(B)Balázs Szelecsényi
架构师提供的文本描述。该项目是由位于印度喜马拉雅山拉达克偏远Zanskar河谷的Tanpo村社区提出的。主要的建筑挑战是为教育目的在喜马拉雅冬季提供一个不燃烧化石燃料的可行环境。可能是由于拉达基人在印度境内所占的比例很小,没有为该地区制定专门针对拉达克的学校标准计划,同样的建筑正在查谟的低海拔地区建造。
Text description provided by the architects. The project was requested by Tanpo village community, in the remote valley of Zanskar river in Ladakh, the Indian Himalayas. The main architectural challenge was to provide a viable environment without burning fossil fuel in the Himalayan winter, for education purposes. Probably due to the small percentage of the ladakhi population inside India, no Ladakh-specific school standard plan has been developed for the region, the same buildings are being built like on lower altitude areas of Jammu&Kashmir. These buildings, lacking heating and insulation, are not suitable for winter use at 3800 meters altitude above sea level. Thus the Himalayan region suffers from a forced winter break lasting 3 months.
© Balázs Szelecsényi
(B)Balázs Szelecsényi
自2011年以来,坦波村的当地社区有一个定期资助者为他们的老师提供冬季教育经费,但他们不得不在改变不同起居室的地点上课。Csoma的会议室基金会是在匈牙利注册的一个非政府组织,自2008年以来一直在该区域开展活动。他们一开始是一个以志愿者为基础的纪念碑保护项目,后来发展成为一个以教育和可持续发展为重点的社会企业。来自新加坡的非政府组织“天空之景”是坦波太阳能学校的赞助机构,自2015年以来,一直与志愿者一起组织前往拉达克的医疗任务。
The local community of Tanpo village had a regular sponsor to finance their teacher for the winter education since 2011, but they had to hold classes at altering locations in different living rooms. Csoma's Room Foundation, an NGO registered in Hungary, has been active in the region since 2008. They started out as a monument conservation project based on volunteers, later developing into a social enterprise focusing on education and sustainable development. A sight to Sky, an NGO from Singapore, the Title Sponsor of the Tanpo Solar School, has been organizing medical missions to Ladakh since 2015 with volunteers.
© Balázs Szelecsényi
(B)Balázs Szelecsényi
坦波太阳能学校是基金会设计和建造的第二所学校。该项目要求在冬季白天为25-30名儿童提供一个太阳能房。设计简单的几何和健壮的体积是为了与高功能的本地建筑环境进行对话,并为社区提供对其传统价值的确认。在Zanskar河上游的堤坝上,考虑到房屋的最佳通道和防洪安全,选择了与村庄一起的地点。
The Tanpo Solar School is the second of the schools designed and constructed by the Foundation. The program was requesting a solar room providing shelter for 25-30 kids during winter daylight hours. The simple geometry and the robust volume was devised to get in dialogue with the highly functional approach to the local architectural context and to provide a confirmation for the community of their traditional values. The location was chosen together with the village, considering the optimal access from the houses and flood safety, on the upper embankment of Zanskar river.
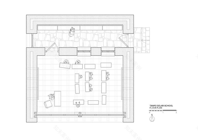
Floor Plan
该设计试图实现低生态影响,使用当地收集的建筑材料,如石头,卵石和泥。梁和木板来自拉达克的较低地区,玻璃是唯一来自工业来源的材料,没有传统的替代品。这个地基只有30厘米深,以西方的标准来说很浅,但遵循的是当地的传统,这已经被证明是足够的几个世纪了。墙的下部是用石头建造的,再到地面30厘米的地方,才能达到内层的水平。上部墙结构由两层30厘米的晒干泥砖组成,与当地来源的稻草绝缘。灰泥是用来做砖头的泥。
The design attempts to achieve a low ecological impact, by the use of locally collected construction materials, like stone, pebble, and mud. The beams and planks came from lower areas of Ladakh, and the glass was the only material that came from an industrial source, having no traditional substitute. The foundation is a mere 30cm deep, shallow by western standards, but following the local tradition that proved to be sufficient for centuries. The lower part of the wall is built of stone to another 30cm above ground, to reach the inner floor level. The upper wall structure is built of two layers of 30cm sun-dried mud bricks, with locally sourced straw insulation between. The mortar was the same mud used for making bricks.
© Balázs Szelecsényi
(B)Balázs Szelecsényi
面对几乎南面的巨大窗户有一个双层玻璃,这是一个简单的,但未使用的(出于经济考虑)的技术,由当地人。在阳光明媚的日子里,两个开着的窗玻璃有助于通风。北边的走廊就像一个额外的隔热层,朝向最寒冷的方向,永远得不到阳光。走廊左边有一扇通往西边的窗户,有合适的灯、架子和洗脸盆,右边有一张长凳。教室里有一些架子和一堵墙,上面有突出的木块,可以钉板和一些海报。屋顶有一个隐蔽的排水系统,有一个隐藏的金字塔斜面,东侧和西边有双喷口。
The huge window facing almost South has a double glazing, a simple, yet unused (for financial considerations) technique by the locals. The two opening window panes help the ventilation necessary on sunny days. The corridor on the North acts like an extra insulation towards the coldest direction that never gets sunshine. The corridor has a window to the West for proper light, shelving and washbasin on the left, and a long bench to the right. The classroom has some shelves and a wall with a pattern of protruding wooden sections to provide nailing possibility for a board and some posters. The roof features a hidden water drainage with a hidden pyramidal slope and double spouts to the Eastern and Western sides.
Cross Section
建筑物在日出后很快就会变暖,这要归功于像温室一样的大窗户,日落后很快就会冷却下来,主要是通过同样的窗户进行热辐射,但教学只能在白天进行。该项目旨在成为一个开放源码设计,可重用,并作为当地居民的灵感。通过社区参与建设,规划原则已经开始在该地区传播。
The building gets warm very soon after sunrise, thanks to the large windows acting like a greenhouse, and cools down soon after sunset, mainly through thermal radiation through the same windows, but the teaching only lasts during daylight. The project aimed to become an open source design, available for reuse, and as an inspiration to the locals. Through the community involved construction, the principles of planning have already begun to spread in the region.
© Balázs Szelecsényi, Brigitta Kovács, Borbála Bagi, Szilvia Odry
(C)Balázs Szelecsényi,Brigitta Kovács,Borbála Bagi,Szilvia Odry
Architects Csoma's Room Foundation
Location Zanskar River, Ladakh, Jammu and Kashmir, India
Architecture Balázs Szelecsényi, Emese Bárdi, Balázs Irimiás, János Kacsó, Anna Fehér
Area 64.0 m2
Project Year 2017
Photographs Balázs Szelecsényi, Balázs Szelecsényi, Brigitta Kovács, Borbála Bagi, Szilvia Odry, Brigitta Kovács
Category Schools
客服
消息
收藏
下载
最近


















