查看完整案例

收藏

下载
© Ángel Gabriel Penagos Gordillo
c.ngel Gabriel Penagos Gordillo
架构师提供的文本描述。Culturalia不是一个营利组织,其目标是在教育和自然资源保护领域交流知识和专门知识。
Text description provided by the architects. Culturalia is a not for profit organisation whose objectives are linked to the exchange of knowledge and expertise in the areas of education and natural resources conservation.
文化也包括一个英语学校,因为语言被理解为文化的重要组成部分,是了解我们日常生活环境的一种手段。
Culturalia also includes an English language school, for language is understood as an important part of culture, a means to make sense of our surroundings for everyday life.
© Ángel Gabriel Penagos Gordillo
c.ngel Gabriel Penagos Gordillo
Ground Floor Plan
© Ángel Gabriel Penagos Gordillo
c.ngel Gabriel Penagos Gordillo
该项目是在墨西哥Comitán de Domínguez Chiapas开发的。这个城市的平均气温为23摄氏度。
The project was developed in Comitán de Domínguez Chiapas, Mexico. The city has an average temperature of 23°C.
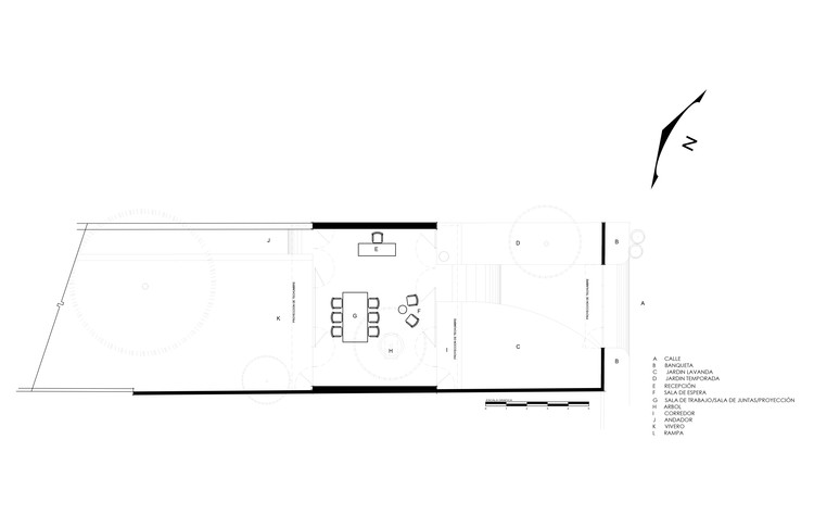
该结构是在8X50 m不规则区域内建立的。坡度下降,树木众多。该地块与家族财产相连,可以与结构共享。
The structure was established in an irregular area of 8X50 m. with a descending slope and numerous trees. The plot was contiguous to a family property that could be shared with the structure.
Diagram 04
Diagram 04
使用的材料是混凝土,红砖,钢,玻璃和木材。该结构的位置和方向允许交叉通风和充分覆盖阳光。
The materials used in the finishes were concrete, red brick, steel, glass and wood. The position and orientation of the structure allow for cross ventilation and adequately covered sunlight.
© Ángel Gabriel Penagos Gordillo
c.ngel Gabriel Penagos Gordillo
主要目标是创造一个多用途的空间,用作前台、候诊室、会议室、放映室或音乐室。它被认为是一个可以让游客从街道或公共场所过渡到教室和办公室的地方,而且应该包括周围的环境。(鼓掌)
The main objective was to create a multi-purpose space to use as front-desk, waiting room, meeting room, screening room or music room. It was thought as an area that would allow visitors to make a transition from the street or public areas, to the classrooms and offices and which should include the surrounding nature.
因此,由于玻璃墙的透明度,自然资产得到了更好的增值。植被得到保护和增强,在结构的每一个角度都创造了视觉效果。这包括蜜蜂花园,薰衣草,薄荷和迷迭香将允许授粉者喂食。
Thus, the natural assets are better appreciated thanks to the transparency of the glass walls. The vegetation was preserved and enhanced to create visual finishes at every angle of the structure. This includes a Bee Garden where lavender, mint and rosemary will allow pollinators to feed.
© Ángel Gabriel Penagos Gordillo
c.ngel Gabriel Penagos Gordillo
晚上,这个结构被点燃,就像一盏灯,作为学习、智慧和教诲之光的激发。
At night the structure is lit to resemble a lamp as an evocation of the light of learning, wisdom and teaching.
Architects ALTOVA
Location Comitán, Chis., Mexico
Architect in Charge Roberto Antonio Álvarez Torres Valle
Area 90.0 m2
Project Year 2017
Photographs Ángel Gabriel Penagos Gordillo
Category Science Center
Manufacturers Loading...
客服
消息
收藏
下载
最近








































