查看完整案例

收藏

下载
© Mohammad Hassan Ettefagh
(Mohammad Hassan Ettefagh)
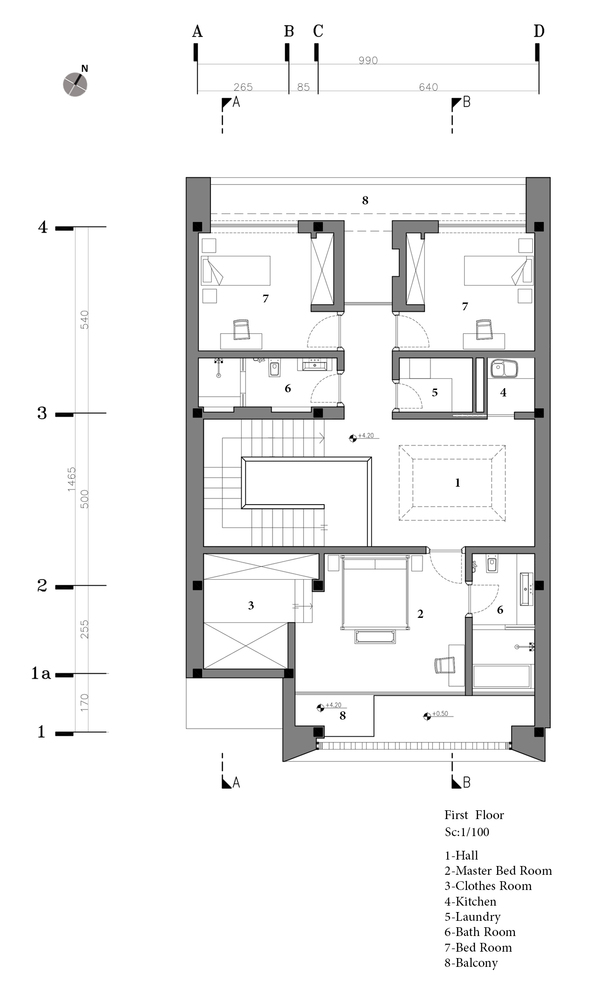
在这座牧场住宅的设计思想中,试图根据业主的生活方式和建筑品味,满足定性和定量的空间需求,同时考虑到他在前一个项目中的经验,他对内部空间的不满,以及他坚持在内部建筑和整个建筑区域遵守隐私标准。
Design Idea In the design of this ranch house, attempts are made to meet the qualitative and quantitative spatial needs in accordance with lifestyle and architectural taste of the employer, while considering his experiences in the previous project, his dissatisfaction with the internal spaces, as well as his insistence on compliance with privacy standards in the internal architecture and across the entire building area.
© Mohammad Hassan Ettefagh
(Mohammad Hassan Ettefagh)
该项目的建筑必须符合占主导地位的区域规则和条例(城市化条例),满足雇主的要求(现代建筑,符合伊朗传统建筑,室内空间的适用性),并与区域气候(炎热天气和强烈的阳光)相适应。最后,上述因素对项目结构的影响导致了主要设计理念的形成,其主要目的是消除项目过程中的挑战。
The architecture in this project must comply with the dominant regional rules and regulations (urbanization regulations), meet the employer requirements (modern building, compliance with traditional Iranian architecture, Applicability of indoor spaces) and be compatible with the regional climate (hot weather and intense sunlight). Finally, the impact of the above factors on project architecture led to the formation of the main design idea that mainly aims to eliminate the challenges during the project.
© Mohammad Hassan Ettefagh
(Mohammad Hassan Ettefagh)
因此,为了符合区域城市化法规的要求,包括建设斜坡屋顶的需要,我们尝试开发面向建筑东侧的倾斜屋顶。为了满足客户的需要(开发适用的室内空间,并符合现代建筑的隐私标准):
Hence, in order to comply with the regional urbanization regulations including the need for construction of sloping roofs, attempts were made to develop a sloping roof facing the western-eastern sides of the building. In order to meet the client needs (development of applicable indoor spaces, and compliance with privacy standards in a modern building):
-在计划设计过程中,考虑到客户(与室内空间有关)的质量和数量需求,并开发公共和私人空间,以满足隐私需求
- Attempts were made during the plan design to consider the qualitative and quantitative needs of the client (associated with indoor spaces) and develop both public and private spaces in order to meet the privacy needs
-在建筑外墙的设计过程中,曾尝试将两卷简单的建筑设计结合起来,以发展现代立面。至于建筑物的室外立面,由于建筑物离街道很近,而且有可能从外面直接看到室内空间,因此试图使用传统上在伊朗南部地区建筑中使用的称为“shenashir”的木制百叶窗,以发展一种砖结构并符合隐私标准。
- During the design of building façade, attempts were made to combine two simple volumes to develop a modern façade. As for the outdoor façade of the building, due to proximity of the building to street and the possibility of having a direct view of the indoor spaces from outside, attempts were made to use wooden louvers known as “Shenashir” that were traditionally used in the architecture of southern regions of Iran, to develop a brick structure and meet the privacy standards.
© Mohammad Hassan Ettefagh
(Mohammad Hassan Ettefagh)
为适应区域气候,采取了以下措施:
The following measurements were taken for compatibility with regional climate:
-使用一种称为木百叶窗或“shenashir”的建筑元素,通常在伊朗南部使用,可以防止快速的热交换(因为位于室内和室外空间之间),防止强烈的阳光照射室内空间,在弹出式窗口和…上投下阴影。通过控制空气流入来降低湿度,引导风流向室内空间,并为双向通风提供必要的条件。
- Use of an architectural element known as wooden louver or “Shenashir” commonly used in south Iran that prevents rapid heat exchange (due to being located between indoor and outdoor spaces) prevents penetration of intense sunlight indoor spaces, casts a shadow on the pop-up windows and …, reduces moisture levels by controlling air inflow, directs wind towards indoor spaces, and provides the necessary conditions for Two-way ventilation
Section Diagram
剖面图
-在建筑物的南侧和北侧开发最大的开口,以便最佳通风-在建筑外墙使用砖材料(由于其热容量高)-在建筑外墙上使用鲜艳的颜色-开发双壁结构,以尽量减少热交换
- Development of maximum openings in the southern and northern sides of the building for optimal ventilation - Use of brick materials in the building façade (due to its high thermal capacity) - Use of bright colors in the building façade - Development of twin wall structures in order to minimize heat exchange
© Mohammad Hassan Ettefagh
(Mohammad Hassan Ettefagh)
Architects CSD Office
Location Kish, Iran
Lead Architects Iman Memar, Ali Rahi
Area 252.0 m2
Project Year 2017
Photographs Mohammad Hassan Ettefagh
Category Houses
Manufacturers Loading...
客服
消息
收藏
下载
最近










































