查看完整案例

收藏

下载
名称: 桐庐莪山畲族乡先锋云夕图书馆
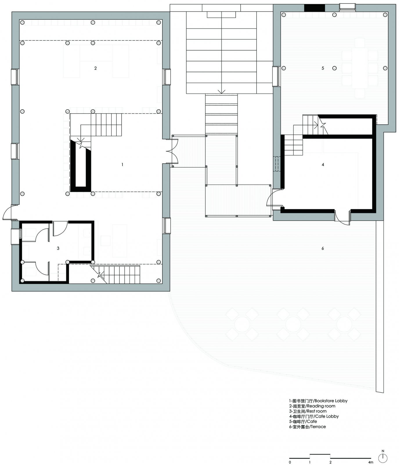
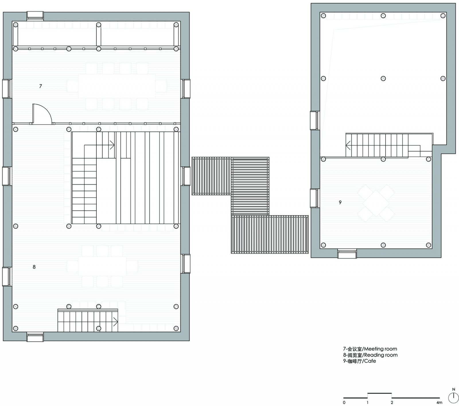
建筑规模(面积):260平方米
设计单位:张雷联合建筑事务所
合作单位:南京大学建筑规划设计研究院有限公司
设计团队:张雷,刘玮,马海依,陈隽隽,张其琳,邵璇
桐庐先锋云夕图书馆位于浙江桐庐县莪山乡戴家山村,是先锋书店开设的第十一家书店。项目凭借“先锋和书店”的文化传播理念,以及独特的“畲族”山村的地域自然人文景观背景,成为当地村民和“异乡读者”的公共生活纽带,成为地方文化创意产业的一个聚焦点。图书馆的主体是村庄主街一侧闲置的一个院落,包括两栋黄泥土坯房屋和一个突出于坡地的平台。建筑设计保持了房屋和院落的建筑结构和空间秩序,将衰败现状修整还原到健康的状态,新与旧的关系强化了“时间性”,土坯墙、瓦屋顶、老屋架这些时间和记忆的载体成为空间的主导,连同功能再生的公共性,共同营造文脉延续的当代乡土美学。
中国几千年来的传统根基在农业文明。真正属于我们自己的建筑文化传统在于“没有建筑师的建筑”为主体的乡土聚落,有机整体的城乡关系,以及持续数千年的延续发展模式,一种处于“文化自觉”的地域性。在最近的一轮城市大发展、也是彻底清除之后,在整体结构性方面中国的城市已经再难看到确凿的物质环境载体,去传承历史和传统的文脉。所幸这个过程还未完全发生于广大的乡村。中国真正的地域性在乡村,城乡关系的思考促发了包含“先锋云夕图书馆”在内的“莪山实践”。对于一系列乡村建设实践,我们的思考集中于“时间”这个基本方面。任何地区打动人心的建成环境特征,都是时间沉积的力量。相对于无法抗拒的时间,建筑师所精心构造的“空间”设计,往往更加个人化,而无法面对生活的考验。回到客观的立场和学习的姿态,向“没有建筑师的建筑”学习,向生活学习,“反设计”的设计。在这个过程中,我们试图逐渐放弃个人化的“空间设计”,去延续地域的时间性,延续有关生活的温暖文脉场所。
在先锋云夕图书馆老建筑更新项目中,建筑设计的空间创造被严格的限制,并努力使之成为一种不易察觉的时间“休止符”。从庭院连廊、到室内设施,新的要素本身被单纯的形式弱化;同样重要的是,这些不易察觉的形式要素,同时也是工业化的、产品化的附加部分,对于图书馆的当代用途又是至关重要的。“新”为“旧”建筑所重新建立的空间边界,将过去的时间重新引向现实。从建造过程开始,到融入乡村生活的文化经营,“新”与“旧”共同构造了生活场景的舞台,而非抽象纯化的空间限定。
适应图书馆新的功能注入,最为关键的设计操作是屋顶抬升策略。支撑屋顶的建筑内部梁柱框架整体加高了约60厘米,利用这个高度形成了高窗的构造,光、气流以及优美的竹林景观被自然的引入室内阅读空间。屋架抬升实现主要依赖地方工匠娴熟的传统技艺,用巧妙的榫卯技术加长局部的柱子。与此同步进行的还有小青瓦屋顶的翻新,在望板之上附设的保温构造,大大提高了老屋的热工舒适性。在建筑外部,原封未动的土坯墙和青瓦屋顶由于侧面高窗的存在,显示出封闭而开放、厚重而轻盈的戏剧化效果,在修整的室外景观和照明设计衬托下,形成村落温和的景观焦点。
连接主屋和偏屋的透空木格栅连廊,除了强化改造后图书馆和咖啡厅的功能联系,同时重新界定了室外空间细腻的体验序列。街道、台阶到连廊之间,是紧凑而友善的前院;穿过曲折的连廊,或者从建筑内部来到室外,则是建筑、连廊和弧形轮廓的平台,共同限定的室外阅读、观景场所。在建筑内部,空间的公共性来自有机组织的楼梯井、局部平台空间,和透空书架隔断的空间划分,而经过翻修的屋顶木结构借助灯光的强化处理,形成明亮而有力的空间氛围。
东侧偏屋内部加建的咖啡厅门厅,以及西侧主屋新建的楼梯、卫生间,采用了最为普通的砖混结构,并且有独立的基础处理,对原先老屋的主体结构具有一定的加强作用。新建的室内墙体、楼板、楼梯,陈设等设施,尽量以弱化的工业产品形式,为传统建筑划定时间的边界,并形成当代新功能的调节机构,从而使空间具有了延续和发展的当代地域生活体验。
▼ 夜景,建筑融入村庄之中
新中式 文化空间 书店 先锋书店 木质 简约
客服
消息
收藏
下载
最近


















