查看完整案例

收藏

下载
© Marcel van der Burg
马塞尔·范德伯格
被动学校为了容纳两所小学的合并,诺克-海斯特市开发了一个雄心勃勃的项目:所谓的被动学校。该建筑物必须符合最高的环境标准,这将导致最高耗电量为每平方米15千瓦时的取暖和冷却。为了达到这一目标,已经采取了一些措施,包括一些技术措施和一些建筑措施。因此,除了三重玻璃、重型隔热材料和“加拿大井”(加拿大井),这座建筑的特色是一座“火山”(Volcano),用于夜间通风;还有一个多功能门廊,用来阻挡阳光直射。
Passive School To accommodate the merger of two primary schools the city of Knokke-Heist has developed an ambitious project: a so-called Passive School. The building has to comply with the highest environmental standards which should lead to a maximal consumption of 15 kWh per square meter for heating and cooling. A number of measures have been taken, some technical and some architectonic, to reach this goal. So besides triple glass, heavy duty insulation and the ‘Canadian Well’ for instance, the building features a ‘Volcano’ for night ventilation and a multifunctional porch to block the direct rays of the sun.
© Marcel van der Burg
马塞尔·范德伯格
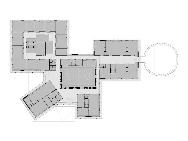
新学校由五个功能集群组成:一所小学和一所托儿所,辅之以一所食堂和课后日托、一个教师和行政管理领域以及一个多功能体育厅。通过将这座体育馆设在建筑中心,它将在整个学校的日常生活中发挥积极的作用。这样的大厅可以像广场一样表演:一个会议场所,一个剧院,一个举行仪式和节日的房间。大厅是一个枢纽:它将形成学校不同功能之间的联系。
Heart The new school consists of five functional clusters: a primary school and a nursery complemented by a refectory combined with after school daycare, a domain for the teachers and the administration and a multifunctional sports hall. By positioning this gymnastics hall in the center of the building it will play an active role in the daily life of the entire school. The hall as such can perform as square: a meeting place, a theatre, a room for ceremonies and festivals. The hall is a hub: it will form the connection between the different functions of the school.
十权教育正在经历一个个性化的过程。在传统的“正面”课堂上,教师在一群听众面前传授自己的知识变得不那么占优势了。教育变得互动。孩子们,越来越多的,自己或小组工作。需要较少的固定工作空间;需要更灵活的安排。从这个意义上说,学校建筑的“规模等级”应该增加。
Powers of Ten Education is going through a process of individualization. The traditional ‘frontal’ use of a classroom with a teacher transmitting his knowledge in front of a group of listeners becomes less dominant. Education becomes interactive. Kids, more and more, work by themselves or in small groups. Fewer fixed working spaces are needed; more flexible arrangements become desirable. In that sense the number of ‘scale levels’ of a school building should be increased.
© Marcel van der Burg
马塞尔·范德伯格
粗=净?网络是客户想要的有效空间,实际要付出的是金钱。在今天的建筑中,毛/净比率是一个决定性因素。我们能收回建筑的Tare吗?我们的愿望是建造一座没有走廊的建筑物。走廊是单一功能的管道。我们能把交通空间变成一个更多用途的生物圈吗?
Gross = Net? The Net is the effective space that the client desires, the Gross what actually has to be paid for. In today’s architecture the Gross / Net ratio is a decisive factor. Can we reclaim the Tare for Architecture? The aspiration is to make a building without corridors. Corridors are mono-functional conduits. Can we turn the traffic space into a more versatile biotope?
© Marcel van der Burg
马塞尔·范德伯格
修道院体育馆被一种把孩子和游客分散在建筑物上的拱廊包围着。厚壁吸收了更衣室和储藏空间。但它也包含用于玩耍或学习的洞,希望能进一步激活走廊,增加自修室的频谱。墙是打开的,可以揭示建筑内部的活动,并在建筑物的不同部分之间建立视觉关系。
Cloister The sports hall is enveloped by a kind of arcade that distributes the kids and visitors over the building. A thick wall absorbs the dressing rooms and storage space. But it also contains cavities for playing or studying that will hopefully further activate the hallway and increase the spectrum of study rooms. The wall opens up to reveal the activity inside and to create visual relationships between the different parts of the building.
© Marcel van der Burg
马塞尔·范德伯格
Model / All
模型/全部
没有死胡同。循环由一系列循环组成;连接的电路产生连续性和无终点的感觉。
Circuit There are no dead ends. The circulation consists of a series of loops; connected circuits that generate a sense of continuity and endlessness.
Outdoor Spaces
室外空间
Ground Floor Plan
多功能大厅需要比其他房间更高的空间:它会从屋顶冒出来。自然光会照亮它的内部:建筑物的心脏会亮起来。
Glow The multifunctional hall requires a bigger height than the other rooms: it pops through the roof. Natural light will illuminate its interior: the heart of the building lights up.
© Marcel van der Burg
马塞尔·范德伯格
小学-小学由一系列教室组成,这些教室被安置在一个长方形的封闭的“庭院”周围。木制架子(用于挂外套和展示或储存学校用品)在教室和这个内部的“广场”之间形成了一个界面。教室成为更大的整体的一部分;孩子们也可以在教室的边界之外工作。一个多形式的街区,包括存储,安装和厕所被放置在内部广场创造利基:走廊有可能成为工作空间。在这个街区和非正式空间的顶部,出现了一个“阁楼”或“帐篷”。楼梯双倍作看台。火山形状有助于提取温暖的空气,为建筑物降温。整个学校的混凝土天花板在夜间积聚了寒冷,保证了新的一天的开始。
Primary The primary school consists of a series of classrooms that are placed around a rectangular enclosed ‘courtyard’. Wooden shelves (for hanging coats and displaying or storing school stuff) form an interface between the classrooms and this interior ‘square’. The classrooms become part of the larger whole; the children can also work outside the boundaries of their classrooms. A multiform block containing storage, installations and toilets is placed on the interior plaza creating niches: the corridor potentially becomes workspace. On top of this block and informal space emerges, an ‘attic’ or a ‘tent’. The stair doubles as a stand. The volcano shape helps to extract warmed up air to cool the building. Concrete ceilings throughout the school accumulate the chill over night and guarantee a refreshing start the day.
© Marcel van der Burg
马塞尔·范德伯格
托儿所-托儿所的房间集中在一个超宽的走廊上。这个大厅直接连接到外面的泡泡状游乐场。该空间宽5,4米,是教室的延伸部分;是学习或玩耍的集体空间。
Nursery The rooms for the nursery are grouped around a super wide corridor. This hall connects directly to the bubble shaped playground outside. The space is 5,4 meters wide and serves an extension of the classrooms; a collective space for learning or playing.
© Marcel van der Burg
马塞尔·范德伯格
平坦,宽敞的场地创造了一个极好的机会:学校可以组织在一个单一的层次。这本身就能提供一种快乐的广泛性和开放性的感觉,但更多的横向特征允许每个教室直接进入周围的花园。
Flat The spacious nature of the site creates a wonderful opportunity: the school can be organized in one single layer. In itself this can provide a blissful sense of extensiveness and openness, but moreover the horizontal character allows for every classroom to have direct access to the surrounding gardens.
平地支付的方法是把建筑物稍微倒在地上,轮廓变得格外友好;建筑物看起来很简朴;屋顶几乎可以到达。由于内外之间的高度差等于课桌的高度,窗台可能成为工作场所;它成为一张长长的额外桌子,可用于学习、玩耍、存储或展示。三步通向通往花园的双门。
Plat Pays By sinking the building slightly into the ground the silhouette becomes extra friendly; the building will appear modest; the roof is almost within reach. Since the height difference between inside and outside equals the height of the school desks the windowsill potentially becomes workplace; it becomes a long additional table that can be used for studying, playing, as storage or as display. Three steps lead to double doors that open towards the garden.
© Marcel van der Burg
马塞尔·范德伯格
门廊屋顶突出,必要时,以防止直接阳光进入。形成了一个门廊,用于户外活动或户外工作或学习;室外,但覆盖着。
Porch The roof protrudes where necessary to prevent direct sunlight to enter. A porch comes into being, to hang out or for open-air working or studying; outdoor but covered.
© Marcel van der Burg
马塞尔·范德伯格
阿米巴小学和托儿所的集群,行政和其他多功能空间都连接到体育馆。因此,一座包含室外空间的多元化建筑应运而生(反之亦然)。这些园林具有独特的功能和特色:厨房花园、农场、公园、游乐场、场地、公共广场。
Amoeba The clusters for the primary school and the nursery school, the administration and other multifunctional spaces are all connected to the gym hall. As such a multiform building comes into being that embraces the outdoor space (and vice versa). These gardens have distinct functions and characters: kitchen garden, farm, park, playground, pitch, public square.
绿色屋顶火山顶部有一层植被,以增强生物多样性和创造一个自然的外观。屋顶很大一部分被鹅卵石覆盖着。这个表面被用来收集雨水。也许与直觉相反,这个灰色屋顶比绿色屋顶更可持续。
Green Roof The volcano is topped with a layer of vegetation to enhance biodiversity and to create a natural appearance. large part of the roof is covered in pebbles. This surface is being used for rainwater collection. Perhaps counter-intuitively this grey roof turned out more sustainable than a green roof.
© Marcel van der Burg
马塞尔·范德伯格
Architects NL Architects, ABT België
Location Knokke-Heist, Belgium
Lead Architects Sarah Möller
Design Team Guus Peters, Gertjan Machiels, Gerbrand van Oostveen, Giulia Pastore, Michael Schoner and Gen Yamamoto with Shuichiro Mitomo, Justine Lemesre, Jasper Selen, Christian Asbø, Mindaugas Glodenis, Else Ferf Jentink, Luca Kaptein Roodnat (cover drawing)
Area 3280.0 m2
Project Year 2017
Photographs Marcel van der Burg
Category Schools
Manufacturers Loading...
客服
消息
收藏
下载
最近























































