查看完整案例

收藏

下载
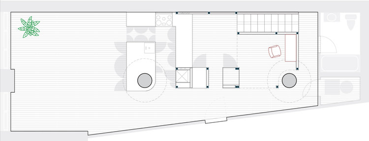
这套为纽约时装设计师翻新的公寓将未完成的粗糙材料(裸露的钢材、生胶合板、膨胀的网幕)与有限的颜色块(绿色漆的厨房岛、明亮的铜管)结合在一起。这些对比材料的邻接工作,以产生一些清洁,轻,不宝贵,同时最大限度地利用空间在阁楼。
Firm New Affiliates
Type Residential › Apartment
STATUS Built
YEAR 2017
SIZE 0 sqft - 1000 sqft
Photos New Affiliates, Michael Vahrenwald
keywords:architecture, architecture news, interiors, interior design, portfolio, spec, brands, marketplace, products Bed-Stuy Loft
关键词:建筑、建筑新闻、室内设计、室内设计、组合、规格、品牌、市场、产品床上用品
客服
消息
收藏
下载
最近












