知末
知末
创作上传
VIP
收藏下载
登录 | 注册有礼

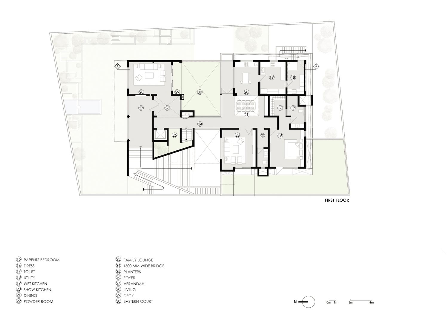
Building conceived as two programmed volumes held together by a bridge corridor, landscaped courts, and shaded terraces Page 2 of 2 CAANdesign Architecture and home design blog

2017/10/09 08:00:00
查看完整案例
微信扫一扫
收藏
下载
Building conceived as two programmed volumes held together by a bridge corridor, landscaped courts, and shaded terraces   Page 2 of 2   CAANdesign  Architecture and home design blog-0
Building conceived as two programmed volumes held together by a bridge corridor, landscaped courts, and shaded terraces   Page 2 of 2   CAANdesign  Architecture and home design blog-1
Building conceived as two programmed volumes held together by a bridge corridor, landscaped courts, and shaded terraces   Page 2 of 2   CAANdesign  Architecture and home design blog-2
Building conceived as two programmed volumes held together by a bridge corridor, landscaped courts, and shaded terraces   Page 2 of 2   CAANdesign  Architecture and home design blog-3
Building conceived as two programmed volumes held together by a bridge corridor, landscaped courts, and shaded terraces   Page 2 of 2   CAANdesign  Architecture and home design blog-4
Building conceived as two programmed volumes held together by a bridge corridor, landscaped courts, and shaded terraces   Page 2 of 2   CAANdesign  Architecture and home design blog-5
Building conceived as two programmed volumes held together by a bridge corridor, landscaped courts, and shaded terraces   Page 2 of 2   CAANdesign  Architecture and home design blog-6
Building conceived as two programmed volumes held together by a bridge corridor, landscaped courts, and shaded terraces   Page 2 of 2   CAANdesign  Architecture and home design blog-7
Building conceived as two programmed volumes held together by a bridge corridor, landscaped courts, and shaded terraces   Page 2 of 2   CAANdesign  Architecture and home design blog-8
谢谢你阅读这篇文章!
keywords:India SDeG Visakhapatnam
关键词:印度SDeG Visakhapatnam
南京喵熊网络科技有限公司 苏ICP备18050492号-4知末 © 2018—2020 . All photos and trademark graphics are copyrighted by their owners.增值电信业务经营许可证(ICP)苏B2-20201444苏公网安备 32011302321234号
客服
消息
收藏
下载
最近