查看完整案例

收藏

下载
© Wissam Chaaya
.Wissam Chaaya
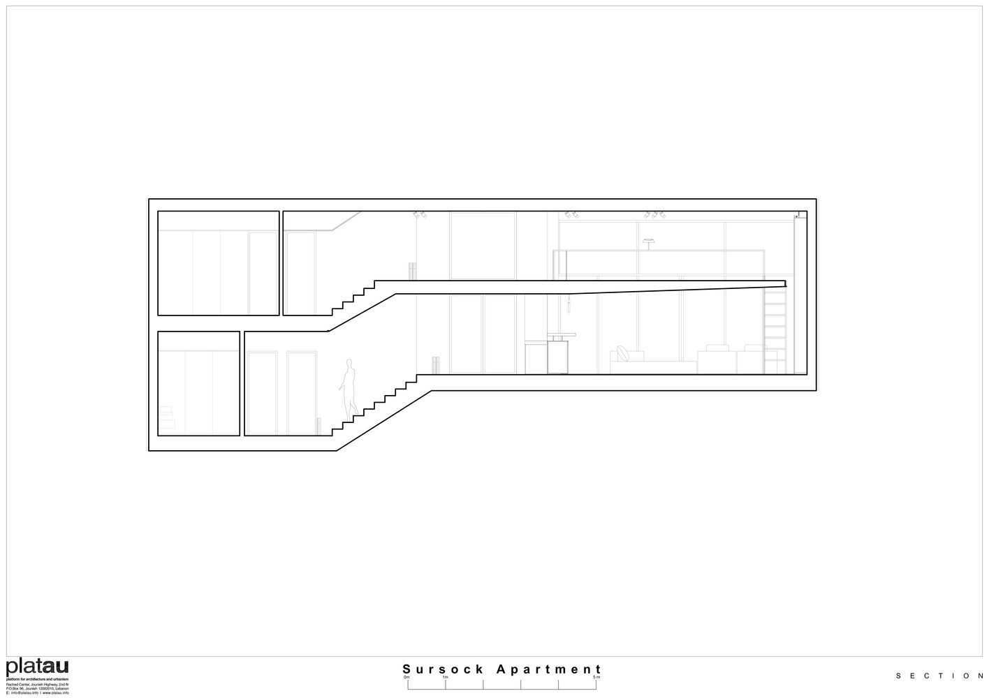
架构师提供的文本描述。Sursok公寓的定义是一种线性分层循环,这是它最有趣的建筑特征,它在双高接待空间和两间单高卧室的水平之间波动,并挤到同一剪刀形状的楼板的阳台上,以确定建筑物的立面。
Text description provided by the architects. The Sursok Apartment is defined by a linear split level circulation that is its most interesting architectural feature,fluctuating between a double height reception space andtwo single heights bedrooms’ levels, and extruding out to the balconies in the same scissor-shaped slab to define the façade of the building.
Axonometric
该方案通过揭示沿着公寓长度运行的结构混凝土墙,增强了这种空间布局,使其线性成为公寓主要特征的背景:多面钢“脊柱”。
The scheme reinforces this spatial arrangement by revealing the structural concrete wall that runs along the length of the apartment, allowing its linearity to become the backdrop for the apartment’s main feature: a multifaceted steel“spine”.
© Wissam Chaaya
.Wissam Chaaya
这个新引入的脊柱塑造了构成公寓主干的循环、表面和空间:它将楼梯的下腹与夹层板合并,让阁楼及其下面的厨房向前台开放。在接待空间,脊柱突出在一个狭窄的T型台,可以俯瞰一边的起居区,另一边是一个双高的书架。脊柱与结构梯子中的接收层重新连接。它的顶部是一个薄钢扶手,成为一个架子在T台上,一个照明装置,供阅读。
This newly introduced spine sculpts the circulation, surfaces and spaces that makes the backbone of the apartment: It merges the underbelly of the staircase withthe mezzanine slab, allowing the mezzanine and the kitchen underneath it to open up to the reception. At the reception space, the spine protrudes out in a narrow catwalk that overlooks the living area on one side and a double height bookshelf on the other side. The spine reconnects with the reception floor in a structural ladder. It is topped by a thinsteel handrail that becomes a shelf at the catwalk with a lighting fixture for reading.
1st Floor Plan
一楼图则
2nd Floor Plan
二楼图则
准时的元素,如瓦乌登-克莱德入口利基,水平木架子,和照明固定-生动活泼的混凝土墙和钢脊梁,打破他们的规模成为亲密的实例,而不影响他们所有的完整性。
Punctual elements like awooden-cladded entrance niche, horizontal wood shelves, and lighting fixturesanimate the concrete wall and steel spine, breaking down their scale into intimate instances without underminingtheiroverall integrity.
© Wissam Chaaya
.Wissam Chaaya
Architects platau
Location Beirut, Lebanon
Architect in Charge platau
Project Year 2017
Photographs Wissam Chaaya
Category Apartment Interiors
Manufacturers Loading...
客服
消息
收藏
下载
最近








































