查看完整案例

收藏

下载
“谭潭”遗址工程的概念,是要把该地段的前工业遗产列为波尔多历史不可分割的一部分,以便在可持续发展的总体目标内保持其诗意精神。高度的使用强调了海湾和水的接近,给公寓提供了壮观的全景景观。
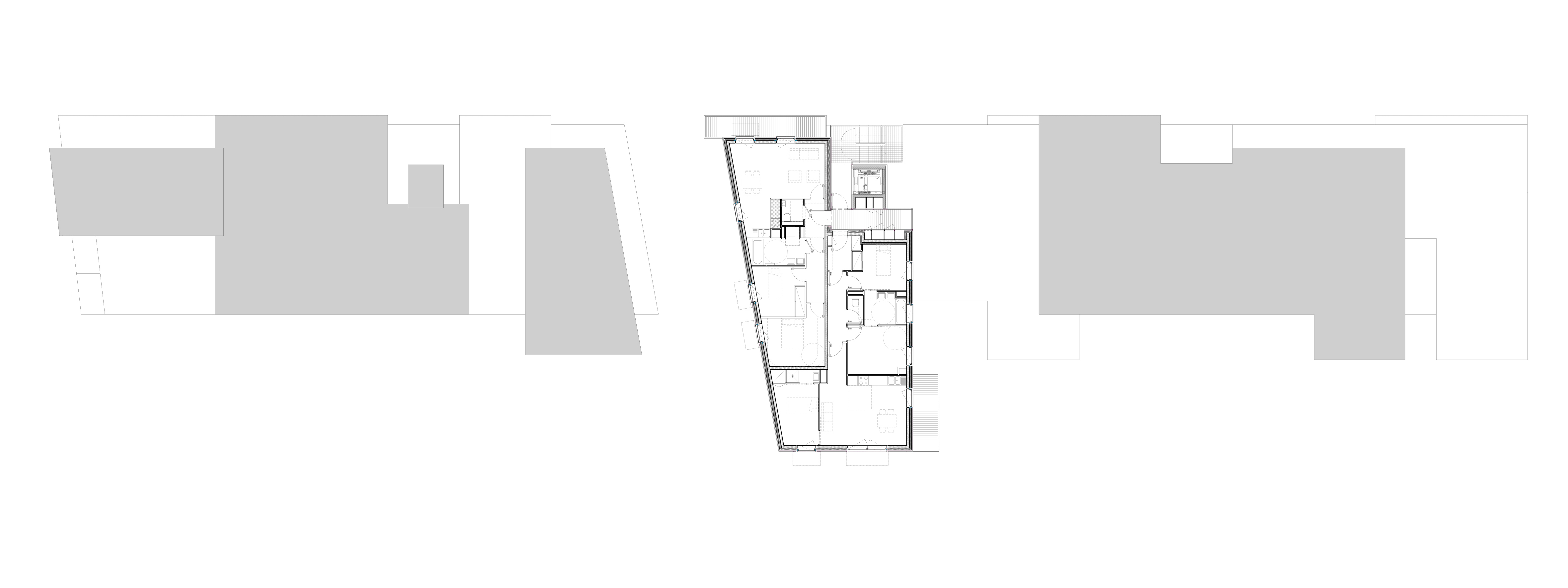
建筑语言利用并重新解释了遗址的动态历史代码。城市形态在注意周围环境和位置的同时,在保持场地中心开放和绿色的同时,也占据了它的位置。空气和光线的流通、分区、方向以及公共和私人空间之间微妙的关系是指导这些新家园建设的主要原则。
该遗址的位置被一条人行道分隔成两个区域,最终形成了一条新的道路:一座在五楼突出的“塔楼”,而该遗址的内部则以更人性化的小型房屋建造,底层有自行车和车辆,还有共用的花园,从人行道上可以看到。花园与每一层的种植露台以及众多的阳台相呼应。
主要材料是金属:坚固而有孔的,有倾斜的屋顶和经过处理的正面,贯穿着建筑物的长度、格栅、栏杆、阳台、楼梯和从外部可见的开放走廊,形成了生动的外观。各种材料和颜色的位置随机(百叶窗),使一个不寻常的和当代的建筑。
建筑设计办公室团队:
项目经理:Hélène Méhat,Sibylle Poehle
建筑师:Marine Tenette
BET(技术设计室)团队:
BET TCE(所有建筑行业技术设计办公室):BETIL/THEAR评价办公室:CP3E
质量和技术建筑控制:
卫生和安全协调员:
J.LALUT
网站经理:
CEBATI
建筑主管和协调员:
SODIGO
[医]影象 :
菲利普·里佐蒂
照片,相片( photo的名词复数 ) :
C.Olivier Amsellem
表面由金属包覆绝缘复合体制成。
Firm BECKMANN N'THÉPÉ
Type Residential › Multi Unit Housing Transport + Infrastructure › Parking
STATUS Built
YEAR 2016
SIZE 25,000 sqft - 100,000 sqft
BUDGET $5M - 10M
Photos © Olivier Amsellem
keywords:architecture, architecture news, interiors, interior design, portfolio, spec, brands, marketplace, products ‘SEAPORT + ALLEON’ HOUSING UNITS – LOT ‘TAM TAM’ - BASSINS A FLOT
关键词:建筑,建筑新闻,室内设计,组合,规格,品牌,市场,产品‘海港ALLEON’住宅单元-地段‘TAM’-组件
客服
消息
收藏
下载
最近






























