查看完整案例

收藏

下载
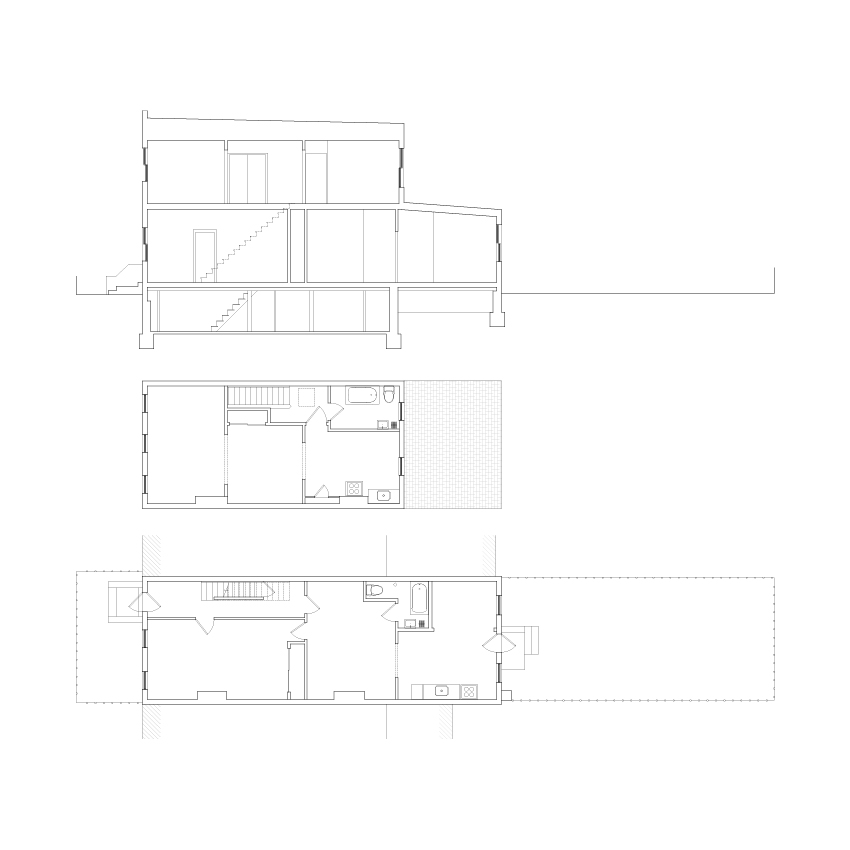
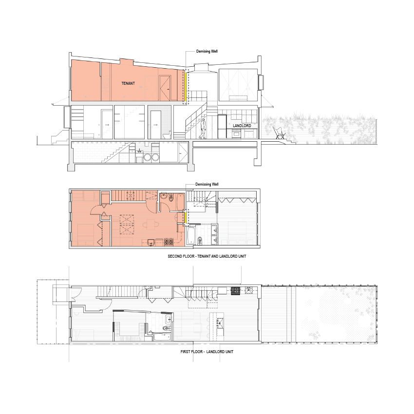
当我们的客户接近我们的时候,我们的目标是创造一个能够适应时间变化的家,这是一座有着110年历史的15英尺宽的排屋。这座建筑的设计很容易在两个家庭和一个家庭的结构之间摇摆,使业主能够在需要的情况下逐渐进入和离开房子。70%的建筑物可用作2卧室/2浴室单元,其余30%可用作1卧室/1浴室单元。根据其在任何特定时间的优先次序,业主可选择使用其中一个单元,而另一个单位作为租金收入。它还使业主能够将两个单元结合起来,为自己创建一个2100 SF的独户住宅,只需拆除二楼的一堵小墙,并拆除出租厨房-这一工作可以在漫长的周末期间完成。优雅的材料选择,微妙的细节和深思熟虑的空间敏感性掩盖了建筑的智能空间规划。仔细布置浴室和厨房,再加上第二层楼梯的整合(对于这么大的排屋来说,这是非常不寻常的),这使得建筑能够容纳主人,因为他们的需求从一对年轻夫妇的需求发展到了四口之家,变成了空荡荡的鸟巢。在这样做的过程中,建筑变得更加积极地参与其居民的生活-随时准备好预测和吸收变化。
Firm Office of Architecture
Type Residential › Multi Unit Housing Private House
STATUS Built
YEAR 2014
keywordsarchitecture, architecture news, interiors, interior design, portfolio, spec, brands, marketplace, products Brooklyn Row House 2
关键词-建筑,建筑新闻,室内设计,组合,规格,品牌,市场,产品布鲁克林街2
客服
消息
收藏
下载
最近






















