查看完整案例

收藏

下载
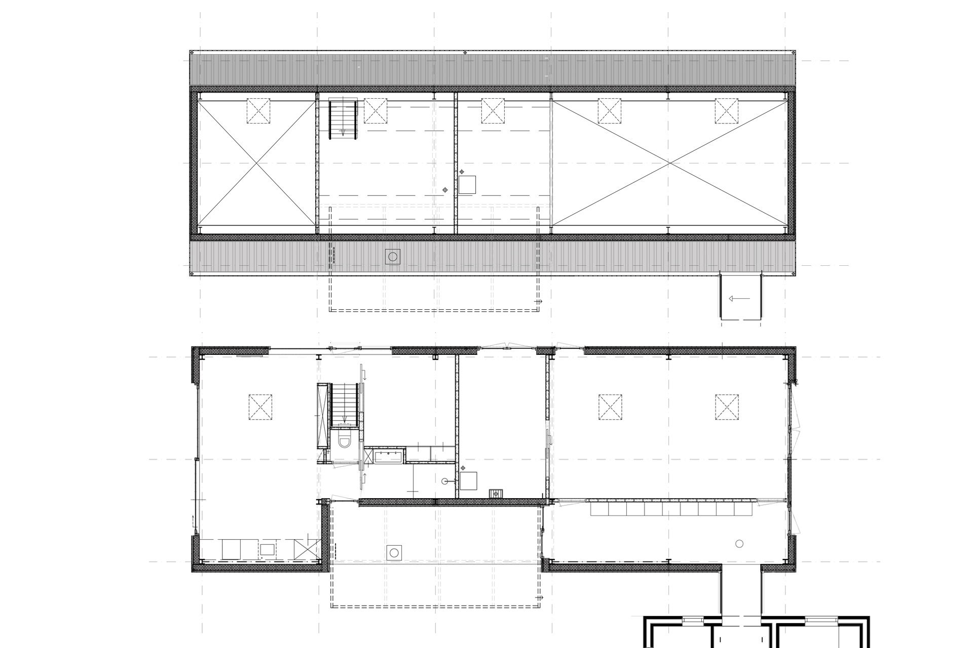
在Hertme乡村的一块地块上,我们被要求在现有的房子旁边设计一个附属建筑。任务是创造新的卷从主房子,需要一个工作室,储藏室,车库和一个门廊在花园边。因此,附件在形状和颜色上显得相当谦逊,具有中等规模谷仓的典型比例。光进入内部的地方正好合适,而不影响真实的封闭。不需要光线的外墙开口,如车库门,都隐藏在垂直板条正面后面。
通过保持建筑物的可理解性,只在正确的位置上开孔,并使用由钢板制成的屋顶,总的成本是预算友好的。
承包商:Droste BV
结构工程师:Bouwstructuu
安装:Vennegoor Installatie
Firm EVA
Type Residential › Private House
STATUS Built
YEAR 2016
SIZE 1000 sqft - 3000 sqft
keywords:architecture, architecture news, interiors, interior design, portfolio, spec, brands, marketplace, products Hertme
关键词:建筑,建筑新闻,室内设计,组合,规格,品牌,市场,产品
客服
消息
收藏
下载
最近












