查看完整案例

收藏

下载
架构师提供的文本描述。概念
Text description provided by the architects. CONCEPT
由于快速城市化,越南许多城市正在失去热带绿地,低密度景观正在向人口密集的大都市转变。洪水风险增加,加上城市地区空气污染严重,造成了这种情况。越南新一代正与大自然脱节。在此背景下,VTN建筑师(Vo Trong Nghia Architect)正在开发一系列的住宅项目“树屋”,以在一个高密度的社区内创造绿色空间。作为本系列中的最新项目,堆叠种植园之家致力于将绿色植物带回城市,并建立人与自然之间的亲密关系。(鼓掌)
Due to the rapid urbanization, many cities in Vietnam are losing their tropical green space and low-density landscapes are transforming into a densely populated metropolis. Increasing risk of flood, together with serious air pollution in urban areas has resulted in the situation. And Vietnamese new generation is being disconnected with nature. Against this backdrop, VTN Architects (Vo Trong Nghia Architects) is developing a series of house project, “House for Trees”, to create green space within a high-density neighborhood. As the most recent project in this series, Stacked Planters House strives to bring greens back to the city and forge an intimate relationship between human and nature.
这所房子位于一个规划整齐的城市地区,居民们在那里建立起了最高允许的高度。这里最大的居住空间是通过减少绿地来实现的。通过将绿色植物带回家,每所房子都是密集社区中的一个小公园。
The house is located in a neatly planned urban area, where the residents built up to the maximum allowable height. Maximum living spaces were achieved here by reducing the green spaces. By bringing greens back to the house, each house serves as a small park in a dense neighborhood.
© Hiroyuki Oki
(C)小平之(Hirouki Oki)
Ground Floor Plan
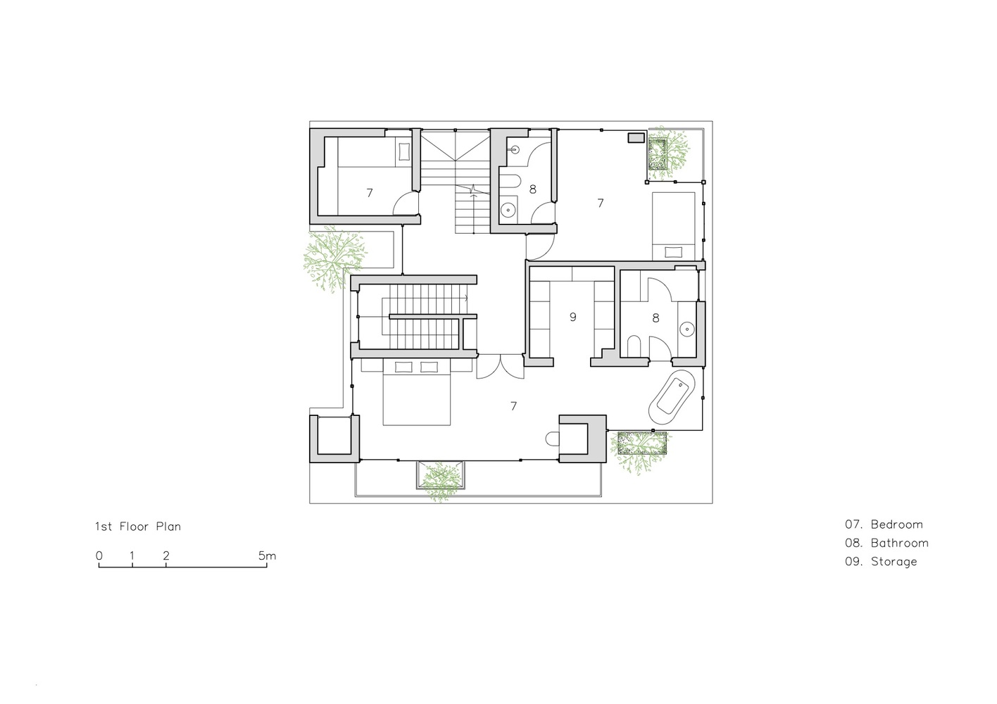
这座房子是为一个典型的三代越南人家庭设计的。每个私人功能都被装进一个似乎是随机堆叠的混凝土盒子里。盒子之间的水平混凝土板是树木生长的梯田。这些半室外空间是人们聚集一堂的客厅和餐厅。
The house is designed for a typical Vietnamese family with three generations. Each private function is packed into a concrete box that is seemingly stacked randomly. The horizontal concrete slabs, between boxes, are the terraces where trees grow. These semi-outdoor spaces serve as living and dining rooms where people gather.
© Hiroyuki Oki
(C)小平之(Hirouki Oki)
“树屋”系列总是特别注重当地和自然的材料。这个项目之所以特别,是因为水磨石墙在80年代是一种流行的材料,但在最近几年却被遗忘了。
The “House for trees” series always pays special attention to local and natural materials. What makes this project special, is the terrazzo wall which was a popular material back in the 80s, yet forgotten in recent years.
© Hiroyuki Oki
(C)小平之(Hirouki Oki)
客服
消息
收藏
下载
最近

















