查看完整案例


收藏

下载

翻译
A special feature of this apartment is a spacious light loggia, separated by glass doors, with enters from both the living room and the bedroom. There are shelves for books along the entire length of the loggia.
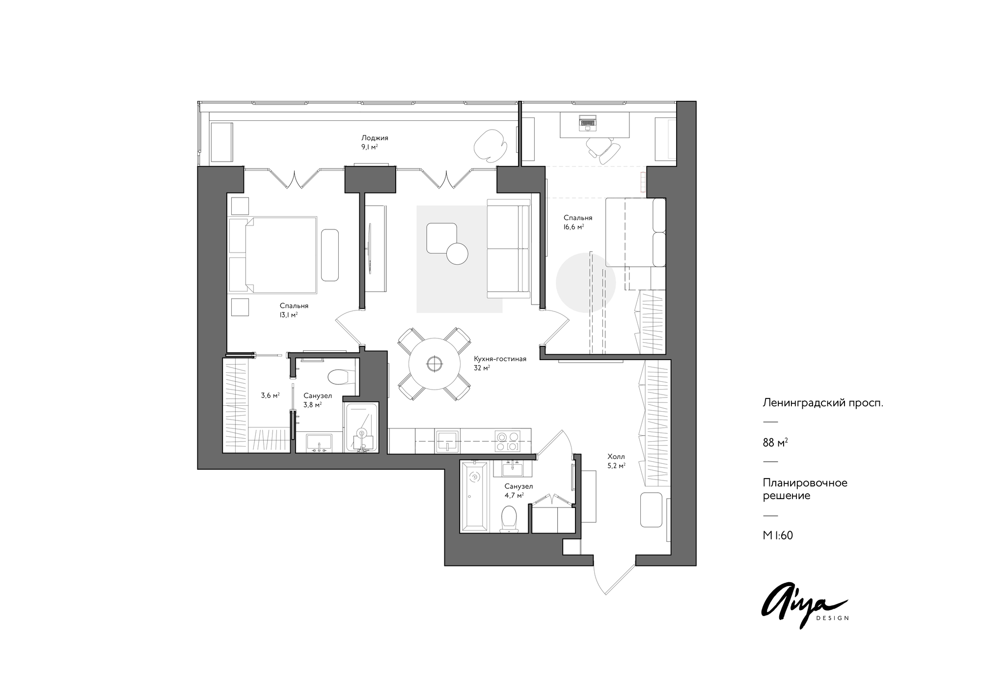
Особенностью этой квартиры является просторная светлая лоджия, отделенная стеклянными дверьми. На нее можно попасть как из гостиной, так и из спальни. По всей длине лоджии вдоль окон располагаются вместительные стеллажи для книг.
The kitchen and living room are combined: there is a kitchen with smooth facades of gray and deep green colors along the wall, a large round table in the dining area, and a soft sofa in the recreation area.
Кухня и гостиная объединены: вдоль стены разместилась кухня с гладкими фасадами серого и глубокого зеленого цветов, в обеденной зоне — большой круглый стол, а в зоне отдыха — мягкий диван.
The apartment has no corridors; from the kitchen-living room, you can get into the bedroom and children's room. The bedroom is calm and cozy, with a dressing room and a bathroom adjacent to it. The children's room, designed in a common neutral color scheme, is equipped with a two-story bed, a workplace, spacious wardrobes, a sports complex and a climbing wall.
В квартире нет коридоров; из кухни-гостиной можно сразу попасть в спальню и детскую. Спальня — спокойная и уютная, к ней прилегают гардеробная и ванная комната. Детская, выдержанная в общей нейтральной цветовой гамме, оборудована двухэтажной кроватью, рабочим местом, вместительными шкафами, спортивным комплексом и скалодромом.
客服
消息
收藏
下载
最近




























