查看完整案例

收藏

下载
原来的格鲁吉亚财产包括三层住房,已改建成每一层独立的单间床-座席。除了主走廊和楼梯外,家里大部分原来的装饰性石膏板和细木制品都没有了,它们还相当完整。
屋顶状况很差,需要彻底更换。由于每一层楼都被改造成了床头柜,结构差的浴室在每一层都中断了平面图。我们的客户是一对年轻的夫妇,他们想把这个市中心的房产变成娱乐的家,欣赏都柏林码头的景色。
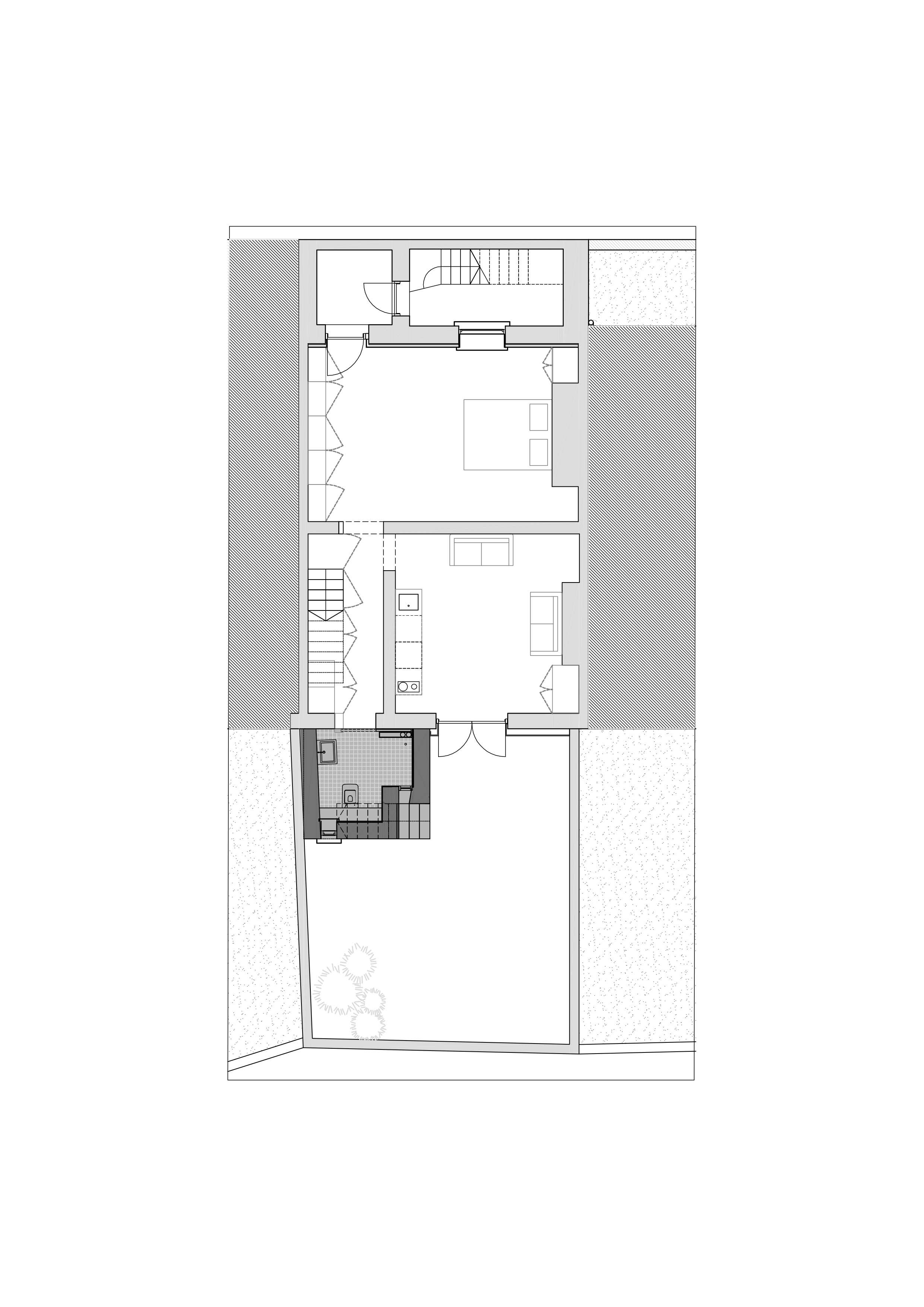
保留了房子、楼梯、入口大厅和地板的周边墙壁,插入了一个全新的屋顶结构。屋顶顶部的屋顶灯提供了天空的无缝视图。塔式延伸被添加到后方提供新的浴室和阳台引线从入门级到较低的小后方花园。
开放式厨房和起居室被重新定位在顶层,在那里,居住者可以享受到最佳的灯光和景观。卧室位于底层上层,下面是花园级的起居室和卧室。节省空间的滑动门可以进入隐藏在墙壁厚度内的储藏室,而不透明的玻璃钢框架滑动门可以从楼梯进入新浴室。所有楼梯间门的玻璃窗使借来的光线延伸到房子的中央深处。
寿司班烧焦的落叶松被选中包覆塔在后面的花园,创造了一个影子样的存在,与黑暗的碳外壳与未经处理的天然铜护栏形成对比。由于靠近邻近的后花园,浴室和楼上的露台通过烧焦的木栅遮住了视线,阻碍了直接的俯瞰。
新的全尺寸窗户被插入到现有的窗口开口,次要框架隐藏在砖块后面。玻璃窗是最大限度的内部和从街道上读为简单的框架开口。
Firm Scullion Architects
Type Residential › Private House
STATUS Built
YEAR 2017
SIZE 1000 sqft - 3000 sqft
BUDGET $100K - 500K
keywordsarchitecture, architecture news, interiors, interior design, portfolio, spec, brands, marketplace, products Grand Canal Street
关键词建筑、建筑新闻、室内设计、组合、规格、品牌、市场、产品大运河街
客服
消息
收藏
下载
最近





















