查看完整案例

收藏

下载
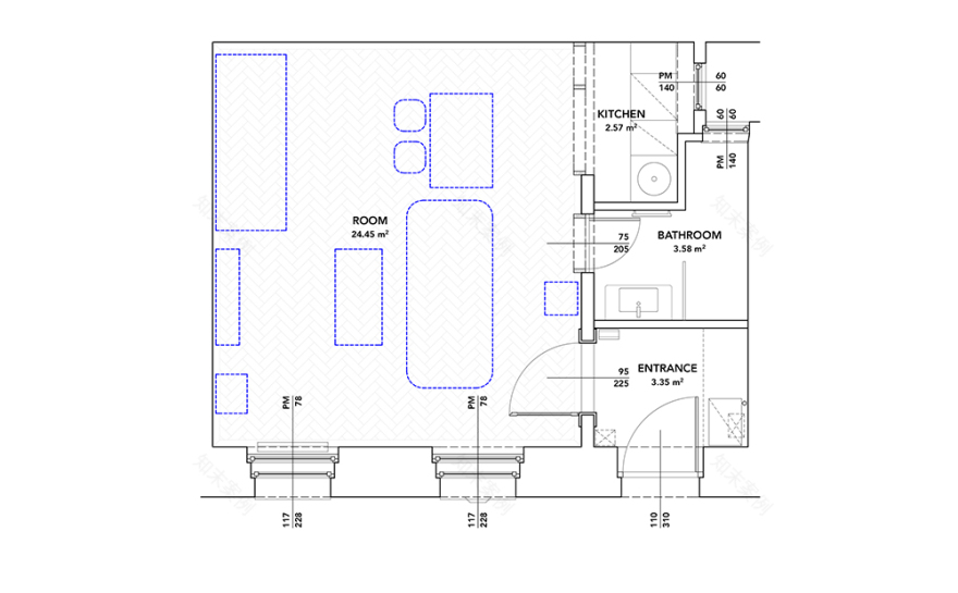
坐落在布达佩斯第九区的一个快速复兴的社区里,这个整洁的工作室被工作室Bunyk改造成一个微型的活的工作空间,与建筑不舒适的车间合作。它的主要特点是一套松木和阿什伍德定制家具元素,框架和锚的主要功能的公寓。一个开放的楼层平面图,高天花板和定制家具允许紧凑的空间,以容纳一个全功能厨房,阁楼卧室,活动推广总部,以及充足的空间后聚会。
布伊克工作室安装的轻型木质材料和建筑不舒服的工作间与当代工业风格相匹配的世纪之交的公寓建筑美学。创新的功能和易用性被设计成空间的各个方面,强调对客人和居民的欢迎的开放性和舒适。公寓入口既是前房又是洗衣房。刚洗过的衣服被挂在一起,然后装在一起。开放的衣柜,而到达的客人受到一堵墙的财产和个人物品。
空间的基石是一个巨大的定制工作台支持和开放式货架冠。修剪包括混凝土和硫酸铜书架和热带衬里口袋的零星和目的。活动推广工作、音乐制作和学习都集中在装备完善的角隅空间。到处都是容易接近的储藏室,包括角落里的一个可转换的搁置单元和一个多用途的衣架,绰号“投掷者”。厨房桌子的身体有效地包围着一个低矮的冰箱,而顶部则是一个巨大的切割板。它的中央放置功能打开紧凑,齐全的厨房嵌套在阁楼卧室。可调节的网状“色调”使卧室从主要空间的可进入性减少,消除了空间内的任何分割结构,并赋予客人即时的个人熟悉感。
Firm Studio Bunyik
Type Residential › Apartment
STATUS Built
YEAR 2015
SIZE 0 sqft - 1000 sqft
BUDGET $0 - 10K
keywords:architecture, architecture news, interiors, interior design, portfolio, spec, brands, marketplace, products Micro live:work studio in downtown Budapest
关键词:建筑、建筑新闻、室内设计、组合、规格、品牌、市场、产品微型直播:布达佩斯市中心的工作室
客服
消息
收藏
下载
最近
























