查看完整案例


收藏

下载

翻译
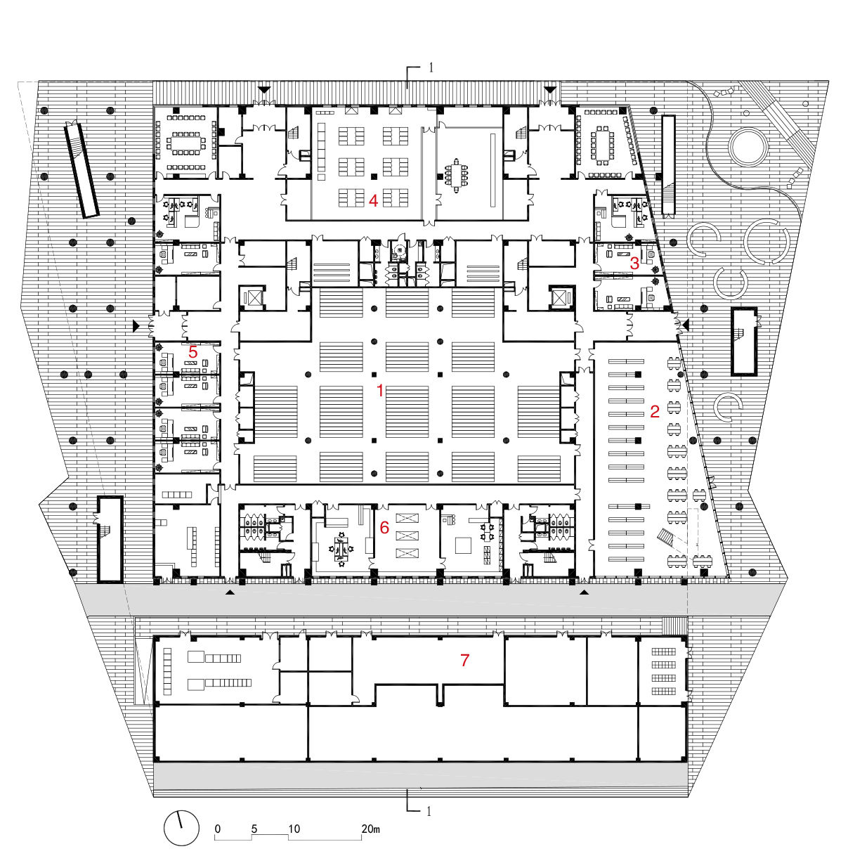
Project Overview Xinjiang University Institute of Science and Technology is located in Wensu County of Aksu Prefecture, Xinjiang Uygur Autonomous Region. It covers a land area of 1,904,000 square meters and has a total floor area of 687,000 square meters. Approximately 15,000 students will study here according to the university’s long-term plan. Academic Buildings, Library, Laboratory, Training Center, Dormitory, GYM, Auditorium, Conference Center, Administration and Management Buildings, etc.
Situated on the axis across the main gate, the 21.9-meter-tall library building is the architectural centerpiece of the campus. The Library is a 4-storey building with a floor height of 5.2 meters. The site area is 27,000 square meters and total floor area is 21,298 square meters. The building not only functions as the library, but also as the archive, reading, research and Information Center of the university.
Highlights
01 The form of the building indicating the concept of “Scroll”
The design adopts the concept of “scroll”, with which the regular stacking of floors is transformed into a convoluted continuous space. Upon completion, the whole building looks like a thick scroll resting on a huge base.
02 Façade design mirroring natural landscape
Inspired by the image sampling technic of the parametric design, an image of Mount Tomur of the Tianshan Mountains is chosen and processed. According to the brightness of individual pixels, the curtain wall on the south façade is designed as a matrix of perforated aluminum plate with different aperture sizes, the manufacturing of which is realized by rationalizing the complexity through CNC technology. During the implementation process, the size of each aluminum plate is set as 1500mm*900mm. The perforations are done with different diameters ranging from 18mm to 250mm and arranged with a spacing of no less than 50mm. As a result, a vivid image of Mount Tomur is presented on the façade to achieve a strong architectural expression of natural landscape. The real Mount Tomur is also visible in distance, creating an interesting contrast with the architecture.
03 Dynamic campus facility
Spaces such as outdoor gallery, cantilever balcony, study room, corridor around the atrium and roof terrace are very popular and well utilized. All kinds of events and performances organized by students are held in these cantilevered spaces, which are exactly the results of the “scroll” concept. In addition, areas for resting and discussions are arranged accordingly to make the library a place full of vitality. Its distinctive architectural presence has gained wide recognition and positive feedback from local communities.
At present, the library has become the landmark building of the university, which is the only Science and Technology university in southern Xinjiang. It is also the largest school library in this area. Since completion, it has been serving over 2,500 teachers and students. In line with the university’s mission to serve the regional economic and social development, the library becomes a part of the effort to cultivate high-level professional talent for the economic and social development of southern Xinjiang.
客服
消息
收藏
下载
最近

















