查看完整案例

收藏

下载
该项目位于南弗里曼郊区海滩边两条安静的郊区街道的拐角处。这一地区的特点是19世纪末单层风雨板工人的小屋。许多已经修复,典型地恢复到原来的2间房间和一条走廊的脚印,倾斜地增加了随后的几十年,为新的延伸让路,这也是我们项目的总结。
在我们的案例中,值得注意的不同点是街角站点,这意味着后面的延伸部分变成了前面的外观和公共界面。
我们客户的简报非常公开。除了规划要求和与周围环境连接的愿望之外,唯一的其他规定是,后面的延伸部分复制了保留下来的小屋的基本形式;基本上是一个带有门窗屋顶的风化板棚屋。
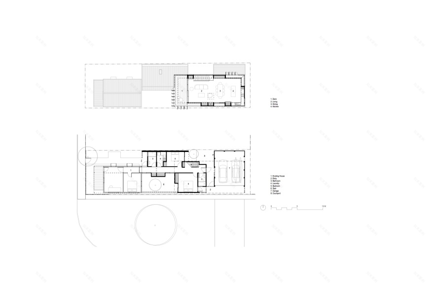
因此,该项目发展成一系列不同的要素,概述如下:
1.出屋。
2.新平房(双层)
3.连接(单层)
4.庭院,院子( courtyard的名词复数 )
现有农舍
这间两室的小屋在结构上得到了修复,同时还接受了新的外部包覆和屋面设计。尽量保留内部饰面(地板和一些墙面衬里)。窗口被部分替换以匹配。倾斜的添加被移除。遮阳/遮阳屏是复古的,安装在侧面的高度上。
新农舍
作为主要的元素,它包含主要的一层居住空间,主卧室和车库下面。
从概念上讲,我们的方法是对山墙屋顶的、风化板的小屋进行当代的重新解释。
原始农舍的一个根本缺陷是它没有遮阳到侧面的高度。而不是附加元素到新的小屋,我们选择加厚周边墙壁,以创建内置的窗户显示,以防晒和空间的综合存储。
这使我们能够保持建筑的原型形式,同时管理纳入声音被动设计原则。
通过在包括向上穿过屋顶窗的各种方向上的弯曲视图来提供到周围环境的连接,框架正好在外部框架上。
窗户开口、“朱丽叶”阳台和西端的大型露台是与环境接触的工具,而垂直板条屏和铰链百叶窗则让业主对这个界面进行微调。
我们的客户要求对他们的环境有很强的联系。
将现有的和新的村舍连接起来的是一个单层连接结构,屋顶平坦,色彩分明.旁边是一条东西走廊,有浴室、洗衣房和额外的卧室。由于其在现场的位置,该结构创建了一系列庭院,以提供交叉通风和日光的底层房间。
这个链接可以从帕米利亚街看到,和现有的小屋一样,是一个新的入口点。在它的另一端,从侧街看,结构从上层楼房的裙边下向外倾斜,以提供通往侧面“风道”入口和车库的通道。
连接结构被涂上黑色的纤维水泥板,与新的和现有的别墅元素的白色风化板形成对比。
这些庭院可以让建筑呼吸,让自然光进入所有空间。
每个庭院最多有两个房间,这意味着它们是相当私人的。
客户端语句
从客户发给我们的电子邮件中摘录,列出了他们对房子的感激之处:
从楼上阳台的北面,星星和月亮,浩瀚的天空.
楼上阳台的地板灯
楼梯灯,即使楼上所有的东西都关了,从楼梯的灯光也有一道亮光。
室外淋浴上的灯
从楼梯脚下的长窗,可以看到庭院里的植物。
从饮料冰箱区看到的视图,当灯亮的时候,透过警棍向下看楼梯
惊人的厨房照明
由于窗户和门,在所有方向上可获得交叉微风
到处都是奇异的灯光,尤其是现在老别墅里。
楼下所有的地板:小屋,新区域的橡树和浴室
石灰洗过的白色胶合板地板看起来很棒
黑暗中进入的外部灯和定时器
橱柜把手很棒,整洁,有趣,而且不显示手指痕迹
那些冬天的海洋颜色的漂亮百叶窗,它们也工作得很好。
当我们在黑暗中走回房子的时候,的样子,里面亮着灯-真是太棒了。
从坐在床上喝咖啡,穿过警棍进入轻巧的楼梯区域,有趣而不是一堵空白的墙。
所有房间都有很好的自然光,但特别是我们的房间和凯蒂的房间,我没想到
滑动门的感觉,很好,很坚固
当太阳升起时,东侧屋顶线的负细节
当太阳升起时,村舍东面墙上的警棍的影子。
从南院南边的指挥棒到我们卧室的隐私
从厨房看到的景色很棒,街角的窗户也是一个亮点。
房子里的木料,感觉好极了
陶瓷台面和周围
的空间,把宝藏和软颜色背后的空间,以及所有不同的形状和深度。
存储空间,我很高兴
楼上巨大的北窗
这个巨大而实用的车库
微风通道,以及它是如何工作的干燥,清洗,以及连接车库到房子和安全
庭院,我管它叫公用庭院,不知道你有没有,但它是一个很好的空间,现在看起来很古怪
洗衣天窗和照明,工作环境良好,储存空间大,可折叠洗涤。
长廊和玻璃窗看有没有人在那里
花园和庭院的室外空间量
从我的办公桌上看到了第二间小屋,朝东,朝南庭院,从彩色百叶窗上,可以看到一片幸福的景色。
整个修复/重建原来的小屋
Firm PHILIP STEJSKAL ARCHITECTURE
Type Residential › Private House
STATUS Built
YEAR 2017
keywordsarchitecture, architecture news, interiors, interior design, portfolio, spec, brands, marketplace, products Parmelia Street House
关键词建筑,建筑新闻,内饰,室内设计,组合,规格,品牌,市场,产品帕梅莉亚街屋
客服
消息
收藏
下载
最近
































