查看完整案例

收藏

下载
© Kevin Scott
凯文·斯科特
架构师提供的文本描述。科尔·塞拉尔位于老8号高速公路上,位于华盛顿州莱尔市外,位于哥伦比亚峡谷的中心地带。在一个指定的国家风景区,该遗址提供惊人的景观,周围雕刻的峡谷特色的山坡和南面的河对面的胡德山。该项目是对现有酒庄的大规模扩建,该酒厂由业主卢克·布拉德福德(LukeBradford)于2004年创建。
Text description provided by the architects. COR Cellars is located on Old Highway 8 just outside of Lyle, WA in the heart of the Columbia River Gorge. Within a designated National Scenic Area, the site offers stunning views to the surrounding carved mountainsides characteristic of the gorge and to the south across the river to Mount Hood. The project is a large expansion to an existing winery founded in 2004 by owner Luke Bradford.
© Kevin Scott
凯文·斯科特
哥伦比亚河峡谷吸引着西风吹过峡谷,这是一年中大部分时间在户外工作时需要解决的一个重要的地点条件。响应景观和卢克想要从风中得到一些休息的愿望,导致使用一个庭院(心脏在中心)作为一个中央组织系统,以保护工人和游客一样,免受有时恶劣的自然环境条件。庭院的内部有着巨大的悬垂,成为游客到达酿酒厂并进入新品酒室的一种令人难忘和诱人的方式。这座建筑沿着北面进入山坡,同时向南延伸到胡德山的景观和壮丽景色。为了完成东端的庭院,设计保留了现有金属农场棚的位置,并将这一空间重新利用到新的COR CURRAR瓶装设施中。
The Columbia River Gorge pulls steady westerly winds up through the gorge which become a significant site condition to address while working outside much of the year. Responding to both the landscape and to Luke’s desire to have some respite from the wind, led to the use of a courtyard (the heart at the center) as a central organizing system that protects workers and visitors alike from the sometimes harsh conditions of the natural environment. With large overhangs on the internal sides, the courtyard becomes a memorable and inviting way for visitors to arrive to the winery and be welcomed into the new tasting room. The building berms into the hillside along the north while opening up to the landscape and grand views of Mount Hood at the south. To complete the courtyard on the east end, the design retains the location of the existing metal farm shed and repurposes this space into the new COR Cellars bottling facility.
© Kevin Scott
凯文·斯科特
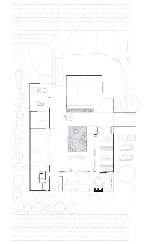
Floor Plan
© Kevin Scott
凯文·斯科特
参观者进入旧棚屋和新建筑之间的庭院,与以前的入口位于同一位置,与过去保持着熟悉的联系。院子两侧的桶形储藏空间的墙壁是坚固的,吸引着游客进入品尝室。大玻璃双折叠门之间的品尝室和庭院创造了一个直接联系的内部和外部空间。主要的景观和交通路线是建立在东/西通过建筑物,让游客瞥见葡萄园以外。天窗位于品尝室的上方,酒吧里的灯光落在主要的活动中心上。大型砌体的替代标志着客厅的中心,为全年聚会提供了一个诱人的空间。屋顶露台提供了哥伦比亚河独特的视野,并可远眺胡德山。
Visitors enter the courtyard between the old shed and the new structure at the same location as the previous entry, maintaining a familiar connection with the past. The walls of the barrel storage spaces that flank the courtyard are kept solid, drawing visitors into the tasting room. Large glass bi-fold doors between the tasting room and courtyard create a direct connection between interior and exterior spaces. Key views and circulation routes are set up east/west through the building giving visitors glimpses of the vineyards beyond. Skylights are located above the tasting room bar dropping light on the main hub of activity. The large masonry replace marks the center of the living room and offers an inviting space for gathering year round. A rooftop terrace offers a unique perspective over the Columbia River and views out to Mount Hood beyond.
© Kevin Scott
凯文·斯科特
由于需要在现有酒庄中增加大量的面积,需要有一个清晰的概念,在庭院周围有一个重复的结构模块。一个简单而精致的外部调色板与直截了当的细节和黑暗的土色调允许建筑物舒适地休息在现场。
The need for significant square footage added to the existing winery called for a clear concept with a repetitive structural module that surround the courtyard. A simple yet refined exterior palette with straightforward detailing and dark earth tones allows the building to rest comfortably in the site.
© Kevin Scott
凯文·斯科特
© Kevin Scott
凯文·斯科特
内部,简单的调色板继续以较轻的色调。洁白的墙壁和清澈的铁杉天花板反射进入空间的自然光,呈现出一种欢迎的气氛。品尝室的西南角设计成客厅,鼓励游客放松,结识新老朋友,欣赏美丽的周边景观。
Inside, the simple palette continues with lighter tones. White-washed walls and the clear coated hemlock ceilings reflect the natural light that enters the space presenting a welcoming atmosphere. The southwest corner of the tasting room is designed to feel like a living room, encouraging visitors to relax, meet new and old friends, and enjoy the beautiful surrounding landscape.
© Kevin Scott
凯文·斯科特
Architects goCstudio
Location 151 Old Hwy 8, Lyle, WA 98635, United States
Design Team Jon Gentry, Aimée O’Carroll
Area 5200.0 ft2
Project Year 2015
Photographs Kevin Scott
Category Winery
Manufacturers Loading...
客服
消息
收藏
下载
最近






























