查看完整案例

收藏

下载
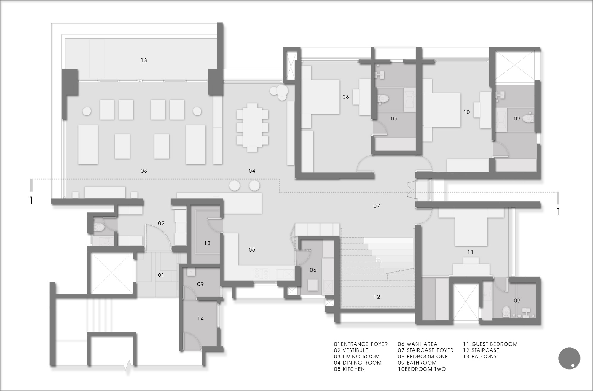
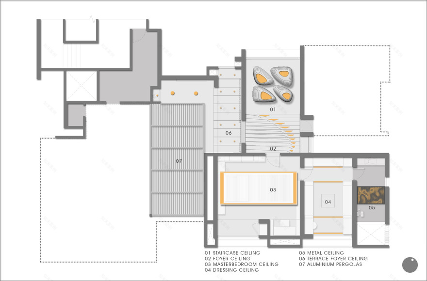
架构师:顶端的改革地点:Paarijat住宅,法官Bunglow路、Sumeru Bodakdev,艾哈迈达巴德,380054年古吉拉特邦,印度面积:5000.0 ft2照片:顶端的改革校长/设计师:Amrish帕特尔总监/架构师:沾光索尼CG艺术家:Manoj Gundaniya 师:妇女们Bhatacharya产品设计:路易莎Januzzi位于高档社区的法官的平房路艾哈迈达巴德、印度、阁楼组成,内部连接,两个西翼的公寓单元的11和12楼Parijat住宅。轻微的设计细节和内部的各个方面的细微差别是企图通过这个项目,在顶端改革定意将标准化公寓家族简朴而奢侈的生活方式。灰色和白色表面离散,小说形式统一,并提供理想的画布的颜色。 精心挑选装饰有趣的照明设计和定制的艺术品将字符添加到空间。爬上巨大的楼梯或餐厅在早餐桌上,试图融合艺术的每一个空间提升其卑微的功能一个事件。项目亮点包括图案的屏幕,独特的艺术品,照明设计和雕塑的楼梯。
客服
消息
收藏
下载
最近




















