查看完整案例

收藏

下载
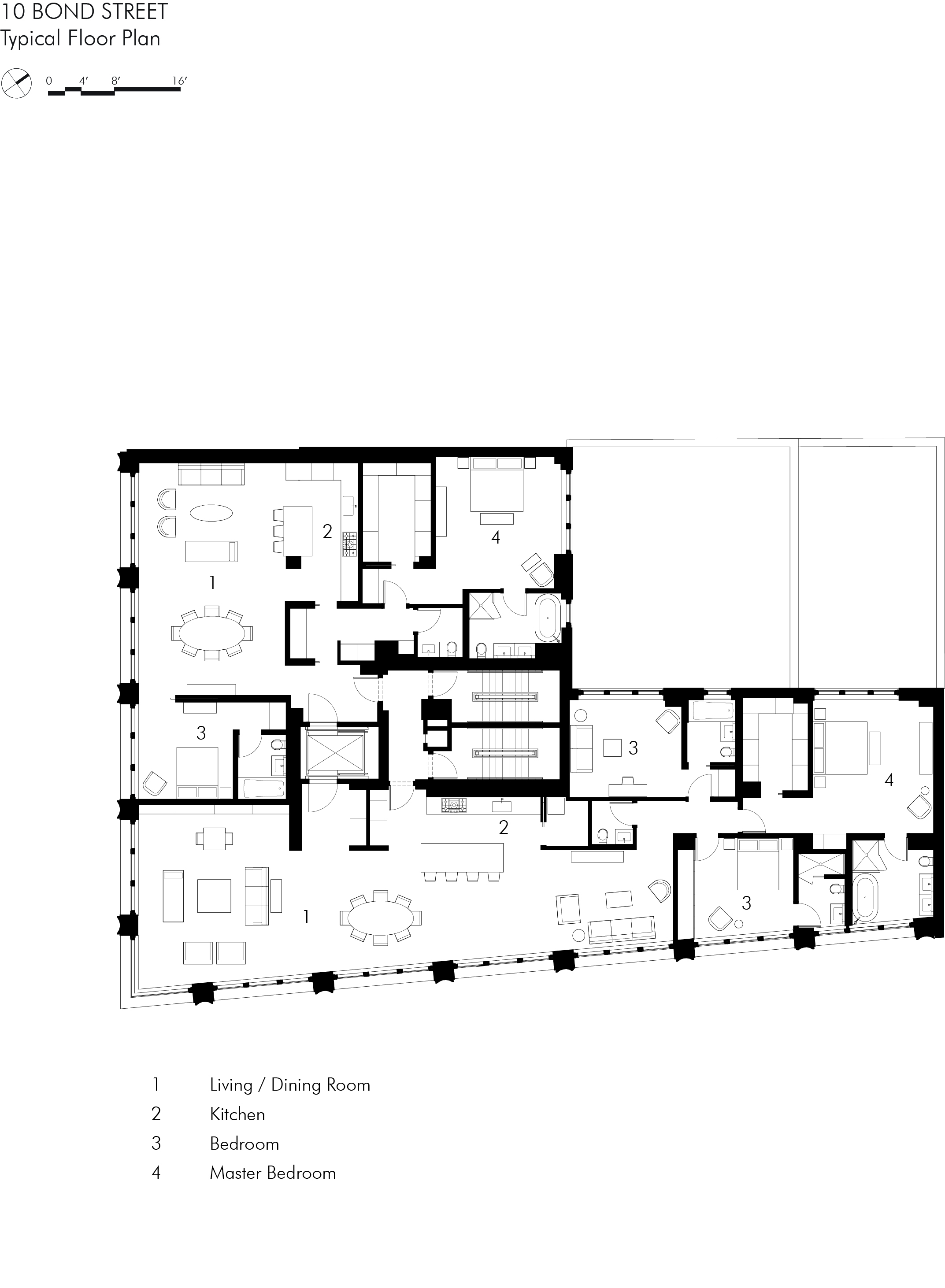
这座新的住宅建筑对纽约的NoHo社区做出了巨大的贡献,这是一个以19世纪末和20世纪初建造的优雅阁楼为特征的地标区。现代设计与周围的历史建筑相呼应,他们的低层规模,有规律的节奏结构海湾,大窗户,和精心设计的正面。兵马俑,一种传统上用来制造建筑装饰的材料,形成了邦德街10号独特的外观。个别的兵马俑面板是定制铸造的弯曲轮廓,釉在一个深的乡村,使人想起该地区的砖邻居,并与风化的钢装饰。在里面,这座7层楼高的建筑里有一间小木屋,九套私人公寓,都是开放式的、阁楼式的布局,还有一套顶层公寓,上面铺着遮阳的露台和屋顶花园。面向繁忙的拉斐特街的地面零售商店,欢迎公众,并通过规划将大楼与邻里连接起来。
Firm Selldorf Architects
Type Residential › Multi Unit Housing
STATUS Built
YEAR 2016
SIZE 25,000 sqft - 100,000 sqft
BUDGET Undisclosed
keywordsarchitecture, architecture news, interiors, interior design, portfolio, spec, brands, marketplace, products 10 Bond Street
关键词建筑,建筑新闻,室内设计,组合,规格,品牌,市场,产品10邦德街
客服
消息
收藏
下载
最近











