查看完整案例

收藏

下载
项目名称:成都华润金悦湾悦府H精装样板房
室内设计:成都开戊空间设计
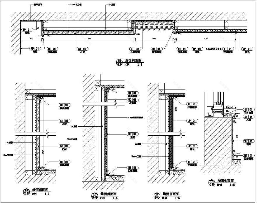
主要材料:古堡灰大理石、白木纹大理石、雅士白大理石、博腾木饰面、富森地板、墙纸、仿石材地砖、黑色拉丝不锈钢
本套样板间客户定位为为品质追求类客群,家庭结构通常为三代居;追求房间功能和产品舒适度的双重满足,对主卫套以及家庭共享空间的朝向和尺度有较高要求。装饰风格为现代轻奢主义,与目标客户匹配;现代风格且精装修产品标准较高,对重点空间装饰材质搭接与阴阳角处理工艺要求较高通过实楼样板优化工艺节点。全屋地面采用稳定高仿石材的瓷砖,灰色调,亮光面,降低天然大理石的不稳定性卧室区地板无油漆采用木蜡油,便于交付与日常需定期进行养护。
新中式 大理石 豪宅 木饰面
客服
消息
收藏
下载
最近


























