查看完整案例

收藏

下载
建筑主管Yaakov Burstein工程师Buky Snir景观设计祖尔·沃尔夫景观建筑多规格少规格
Building Supervisor Yaakov Burstein Engineer Buky Snir Landscape Design Zur Wolf Landscape Architecture More Specs Less Specs
© Amit Geron
阿米特·杰龙(Amit Geron)
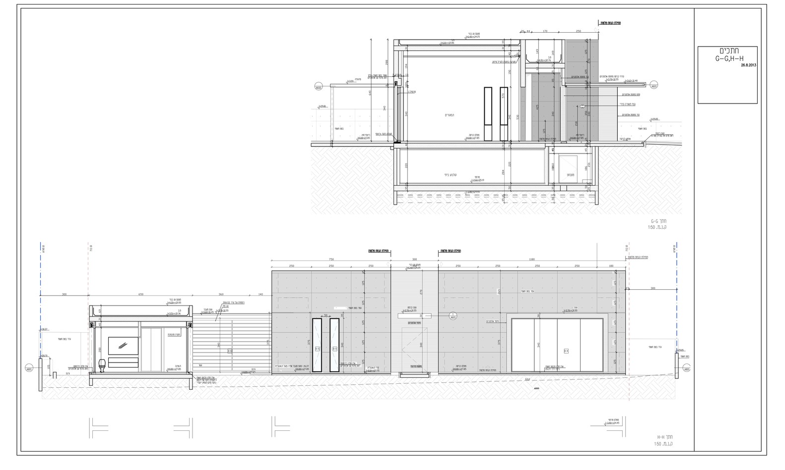
架构师提供的文本描述。建在一片8,000平方米(20英亩)的地块上,两个混凝土长方形互相垂直,字母T在它们之间竖立着一个轻盈的垂直元素。这个家被想象成一系列简单几何形式的展开序列,构成了整个空间体验。
Text description provided by the architects. Laid on an 8,000 sqm (20 Acre) plot, two concrete rectangles perpendicular to one another form the letter T. Between them stands a light vertical element. This home was envisioned as an unfolding sequence of simple geometric forms that compose an entire spatial experience.
© Amit Geron
阿米特·杰龙(Amit Geron)
丰富的景观,包括草地和水池,被视为整个形态的组成部分。他们在混凝土结构中穿行,将室外与建筑环境融为一体。
The abundant landscape, including grassland areas and pool, was seen as an integral part of the whole form. Weaving their way through the concrete structures, they merge the outdoors with the built environment.
设计方案是极简的,材料规模是单色的。它包括天然石头,暴露混凝土和铝,所有的发现在不同数量的外部和内部的住宅。
The design plan is minimalist and the material scale is monochrome. It includes natural stone, exposed concrete, and aluminum, all found in varying quantities on the exterior as well as the interior of the home.
© Amit Geron
阿米特·杰龙(Amit Geron)
材料和色彩的调色板受到很大的限制,这样就不会使空间过大,让空间本身成为居民和他们精湛的艺术和设计收藏的一个充足的通风平台。
The material and color palettes were greatly restrained so not to overbear the space; allowing space itself to be an adequate airy platform for the residents and their exquisite art and design collection.
© Amit Geron
阿米特·杰龙(Amit Geron)
混凝土和白色墙与大块天然石材地板结合在一起。这些是由天然木楼梯连接在一起,巧妙地缝制不同的楼层。
Concrete and white walls combine with large slabs of natural stone flooring. These are strung together by natural wood staircases that delicately stitch the different floors.
© Amit Geron
阿米特·杰龙(Amit Geron)
发现的突出颜色细节是一组黑色。在整个体系结构细节中使用,如所有窗口配置文件
The prominent color detail found is an array of black. Used throughout in architectural details, such as all the window profiles & outdoor porches as well as in design choices such as the entry door and kitchen façade.
© Amit Geron
阿米特·杰龙(Amit Geron)
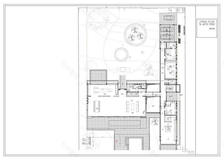
Ground Floor Plan
© Amit Geron
阿米特·杰龙(Amit Geron)
黑色用于木材和金属的纹理,因为这些是补充的暴露混凝土,这是作为调色板的基础材料。
Black is used in both wood and metal textures, as those are complementary to the exposed concrete; which serves as the base material in the palette.
© Amit Geron
阿米特·杰龙(Amit Geron)
这项工作是与经验丰富的客户对话的结果,他们对艺术和设计有着广泛的知识和热爱。这是业主的艺术和设计收藏,与建筑交织在一起,创造了这一家优雅的气氛。
This work is the result of a fruitful dialogue with veteran clients who have vast knowledge and love for art and design. It is the owners’ art and design collection, intertwined with the architecture that creates this home elegant atmosphere.
© Amit Geron
阿米特·杰龙(Amit Geron)
Architects Studio de Lange
Location Rishpon, Israel
Team Chanan de Lange, Tal de Lange, Shirley Marco
Area 900.0 m2
Project Year 2017
Photographs Amit Geron
Category Houses
Manufacturers Loading...
客服
消息
收藏
下载
最近







































