查看完整案例

收藏

下载
© Tuomas Uusheimon
(3)TuomsUusheimon
架构师提供的文本描述。这是JKMM的第二个项目,它重新处理了Alvar Aalto设计的库。第一次是在Sein joki,在那里,现有的图书馆扩建了一个新的镀铜层。在Otaniemi,JKMM被任命负责修复和更新这栋大楼上层上市的现代派内部建筑,并为其底层设计全新的室内装潢,这些内部建筑以前都是用作书店的。这些设施被改造成容纳新的媒体空间,并使人们能够以单独和协作的方式开展工作、研究以及社会互动。
Text description provided by the architects. This is JKMM’s second project reworking an Alvar Aalto designed library. The first was at Seinäjoki where the existing library was extended with a new copper-clad wing. At Otaniemi, JKMM was appointed to restore and update the listed Modernist interiors in the upper floors of the building and to create wholly new interiors to its lower floors that were previously used as bookstores. These have been remodeled to house new media spaces as well as to enable both solitary and collaborative ways of working, research as well as social interaction.
© Tuomas Uusheimon
(3)TuomsUusheimon
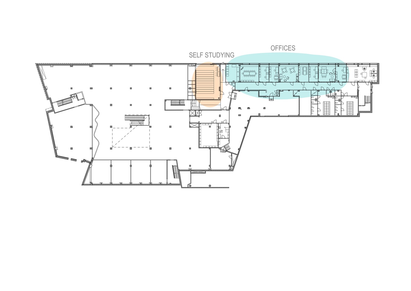
该项目是一个有趣的例子,与二十世纪的内部工作,非常重要,同时引入了一个全新的层面的斯堪的纳维亚设计的建筑物。光是整体设计理念中的一个重要因素。在上层,大部分的阿尔托内部是完整的,有丰富的光线,这是一个理想的空间展示材料从大学档案馆。
The project is an interesting example of working with twentieth-century interiors of great importance while introducing a wholly new layer of Scandinavian design to the building. Light has been an important factor in the overall design concept. On the upper level, where much of the Aalto interior was intact, there was abundant light making this an ideal space for exhibiting materials from the University archive.
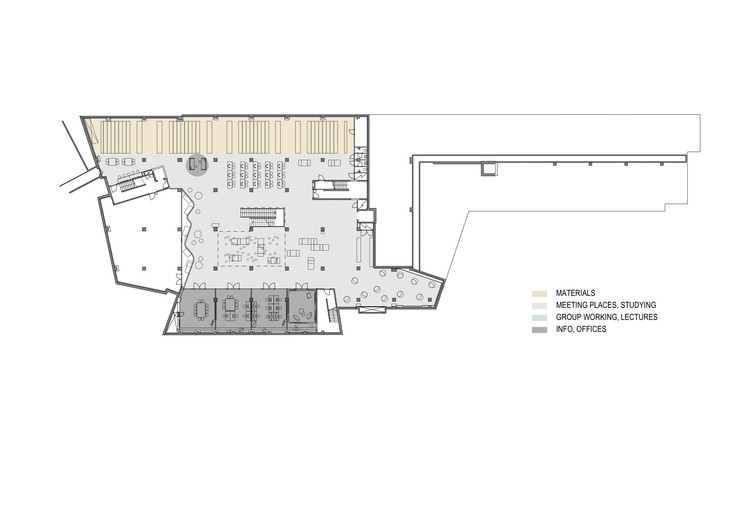
Basement Floor Functions Plan
地下室功能图
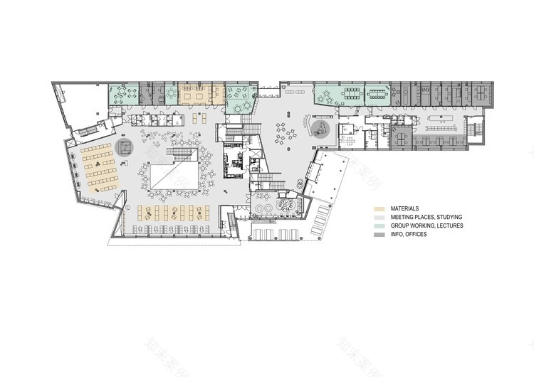
Ground Floor Functions Plan
底层功能计划
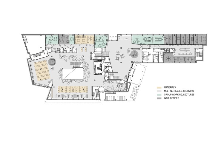
First Floor Functions Plan
一楼功能图
杂志架被更换成玻璃桌面的桌子展示,增强了这部分图书馆的整体感觉,作为一个公民和文化空间。在较低的层次上,挑战是引入自然光。在地面层,一个顶部照明的中庭空间穿过地下室地板,使日光能够过滤在主楼梯内和周围,将这三层连接在一起。
Magazine racks were replaced with glass-topped tables for display, enhancing the overall feel of this part of the library as a civic and cultural space. On the lower level, the challenge was to introduce natural light. At ground level, a top-lit atrium space cuts through to the basement floor enabling daylight to filter in and around the main staircase uniting the three levels.
© Tuomas Uusheimon
(3)TuomsUusheimon
尽管如此,JKMM的人工照明方案在将地下室变成一个欢乐的空间方面起到了至关重要的作用。它丰富的白色吊坠照明不仅引人注目,而且将有效地照亮空间,即使在一年中最黑暗的时期。它的工作与JKMM使用的深彩色纺织品,增加了一种年轻的温暖感的内部。这是为了让学生们觉得这座建筑很有吸引力,他们也喜欢把这个空间用作公共房间和带笔记本电脑的地方。
The artificial lighting scheme by JKMM has, nonetheless, been critical in turning the basement into a convivial space. Its plentiful white pendant lighting is not only striking but will be effective in illuminating the space even in the darkest periods of the year. It works well with JKMM’s use of deeply colored textiles that add a youthful sense of warmth to the interior. This is about making the building feel inviting to students who also like to use this space as a common room and a place to bring their laptops.
© Tuomas Uusheimon
(3)TuomsUusheimon
墙壁上的洞穴状软垫围裙为安静的研究提供了隐秘的空间,甚至像上世纪60年代标志性的埃罗·奥尔尼奥环球椅(Eero Arnio Gble)那样,为安静的研究提供了隐秘的空间。事实上,北欧对JKMM这部分建筑作品的影响,是一个广泛传统的一部分,它温和地为阿尔瓦阿尔托(Alvar Alto)上方的永恒之处开辟了新的篇章。
Cave-like upholstered enclosures in the walls provide seclusion for quiet research and even a catnap much as the iconic Eero Aarnio Globe chair from the sixties did. In fact, the Nordic influences on JKMM’s work in this part of the building are part of a wide tradition that gently introduces a new chapter to the timelessness of Alvar Aalto’s interior above.
© Tuomas Uusheimon
(3)TuomsUusheimon
JKMM室内设计公司的高级建筑师P ivi Meuronen说:“我们希望这座建筑的设计理念能够成为斯堪的纳维亚设计理念的核心,让每个人的日常生活都变得特别。”
Päivi Meuronen, senior architect at JKMM interiors says, “We wanted this building to be about something that is perhaps at the very heart of Scandinavian design ideals, making the everyday special for everyone.”
© Tuomas Uusheimon
(3)TuomsUusheimon
Architects Architect NRT ltd
Interiors Designers JKMM
Location Otaniemi, Espoo, Finland
Area 7505.0 m2
Project Year 2017
Photographs Tuomas Uusheimon
Category Renovation
Manufacturers Loading...
客服
消息
收藏
下载
最近




















