查看完整案例

收藏

下载
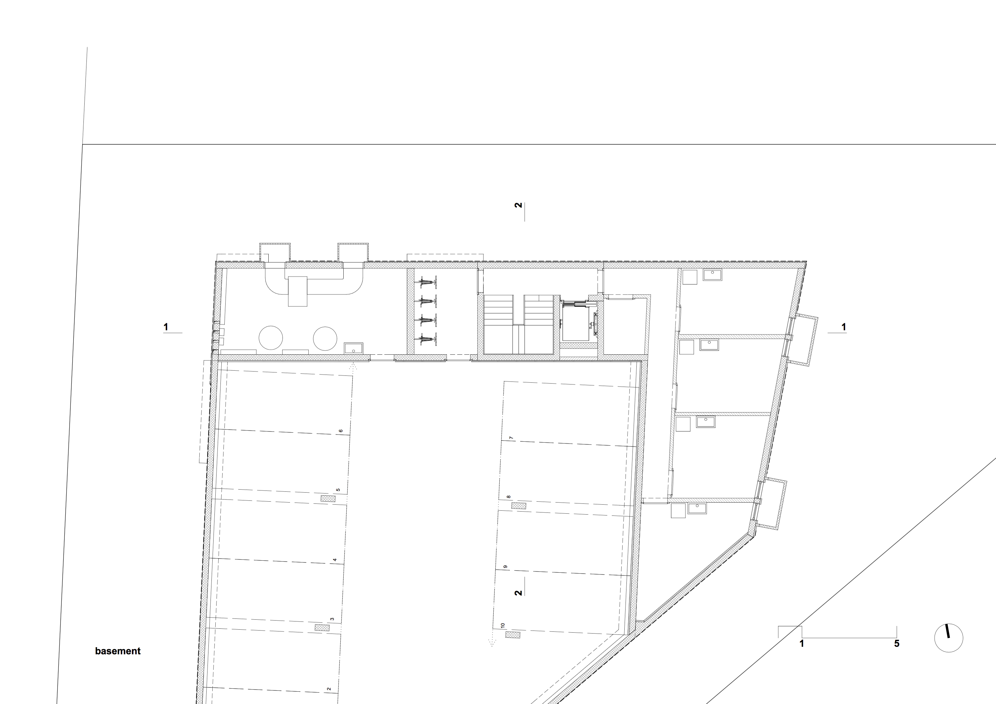
克顿索图恩斜坡山坡上的地块由两条从南邻岔道得到的道路和北侧地形的明显高程所确定。
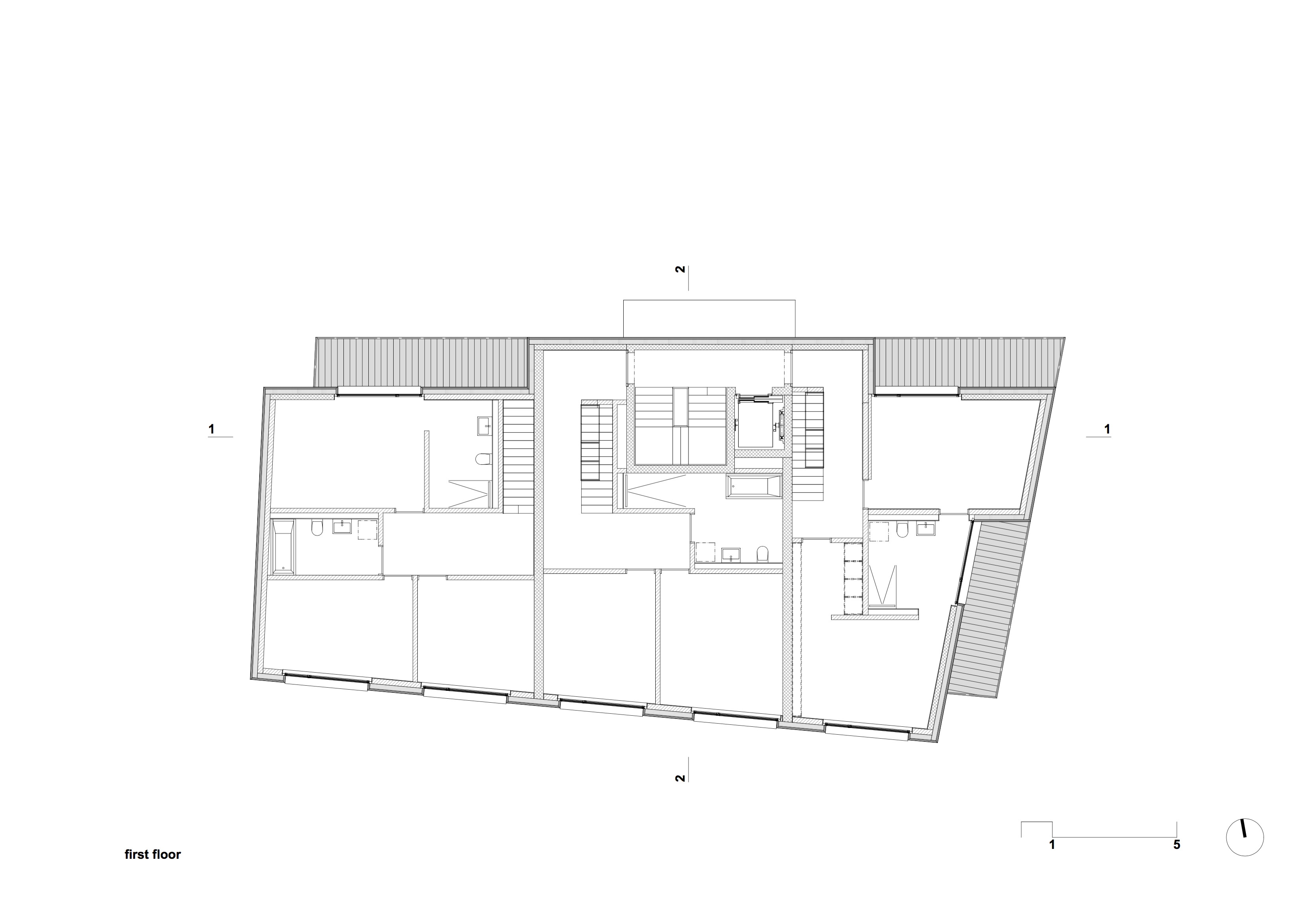
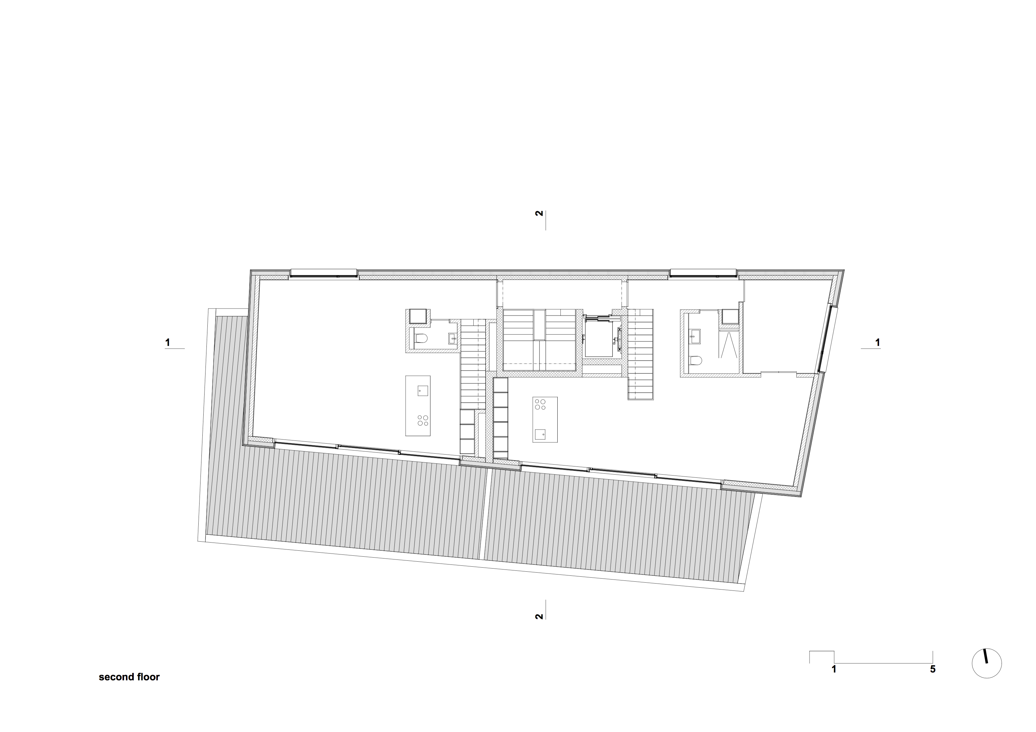
公寓楼由四间公寓组成,从大楼中心的主楼梯进入。裸露的混凝土墙壁和楼梯都是用OSB板模压来执行的。通过战略性地放置LED灯带,混凝土墙的复杂结构更加突出。
随着主体积和路线的确定,每套公寓都呈现出独特的布局方案。在每一间房间里,都把私人房间和集体房间分开,把它们放在不同的楼层。较低的公寓在底层有集体空间,可以进入各自的花园,而上层公寓则提供通往顶层宽敞露台的通道。所有的花园和露台都面向西南,每个公寓都可以看到瑞士阿尔卑斯山的全景。
对于外部选择碳灰色门面面板。深色强调整体的外部轮廓。作为对比材料,轻麻雀米色被用来突出主要体积中的位移。夜间,暗元素和光元素之间的相互作用变得明显。
地下车库的入口和北侧的人行入口都嵌入了红锈Corten钢饰面的环境中。这位景观设计师创造了一系列的梯田元素,将北坡和南方花园连接起来,随后将建筑嵌入到周围的环境中。
Firm Tormen Architekten AG
Type Residential › Multi Unit Housing
STATUS Built
YEAR 2017
Photos Mark Drotsky Architekturfotografie, Tormen Architekten AG
keywordsarchitecture, architecture news, interiors, interior design, portfolio, spec, brands, marketplace, products MFH Riedholz
关键词建筑,建筑新闻,内饰,室内设计,组合,规格,品牌,市场,产品MFH Riedholz
客服
消息
收藏
下载
最近















































