查看完整案例

收藏

下载
项目名称:益阳彭氏雅宅丨自建房
项目地点:湖南省益阳市
设计单位:湖南瀚图司马装饰设计工程有限公司
设 计 师:吴名波、唐春
主要材料:太空灰大理石、北美樱桃木,柚木,藤编
这是在益阳的一座自建宅院。
宅院无论是功能性、品质还是风格品位,都能够在经过时间的沉淀后散发味道,呈现岁月的厚重感。
在这里无论是谁都能感觉舒适亲切,而不压抑。
在风格上,选择沉稳的新中式风格搭配部分美式元素。
三层楼的空间通过垂直楼梯和与楼梯相领的主过道把每个房间串起来,垂直交通和水平交通的交通动线风格明显。
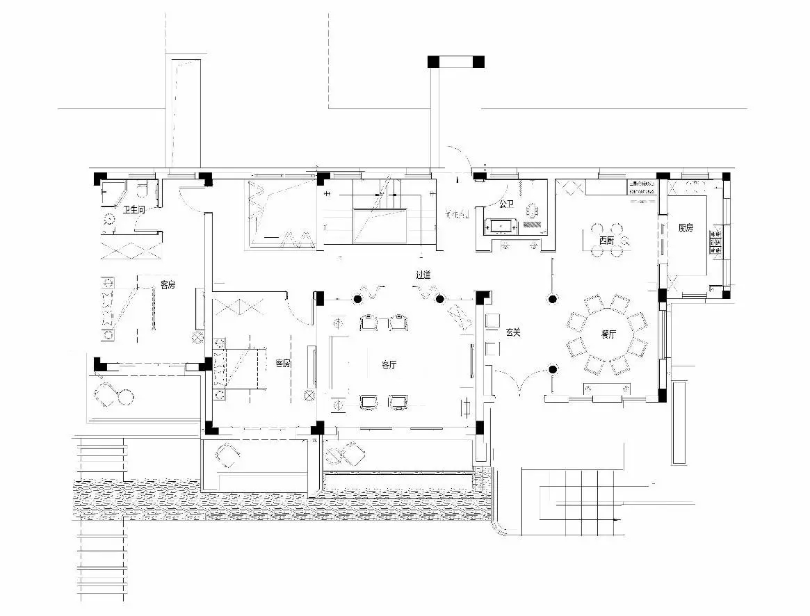
没有过多装饰的客厅,简单又大气。
主位改用皮质的软沙发,更适合爱看电视的人种蘑菇。
天花的水晶灯增加客厅的贵气。
厨房分成中式厨房(封闭)和西式厨房(开放)。
主人可以按照自己的需求、和当天的料理选择要使用哪个厨房。亲朋好友上门做客时,也有更加宽裕的空间,大家可以一起做料理。
餐厅的餐桌选择了中国人偏爱的圆桌。
圆形餐桌像满月一样,象征阖家老小幸福美满;同时也寓意有始有终,使人气和财气都不会流散,十分有利于家居风水。
二层是主人全家的私人空间,四房三卫。
设计师将二层空间充分利用但不紧凑拥挤。
有着浓郁中国风的书房。
大方稳重的书案上面铺放着笔、墨、纸、砚,书案的对面还有供休息、聊天的桌椅、茶台。
主人房的浴室是分离式浴室,将上厕所、洗脸、洗澡的三个区域划分开,除此以外还加了一个小型的桑拿室。
这样的配置可以说是十分舒服十分享受了。
整个房子三面环绕天然的原生态森林,高大的乔木、竹林、给人安静自然的感觉。
所以设计师在每个房间都设置了阳台或者露台,最大可能拉近了人与自然的关系,并且保证了房间的通透性及采光。
通过拉大每个阳台的悬挑距离,增加太阳直射的阴影面积,从而增加室内环境的舒适感,达到节能环保的目的。
设计师大胆的将中式与美式进行搭配、混合。在传承的同时,接纳外来事物。
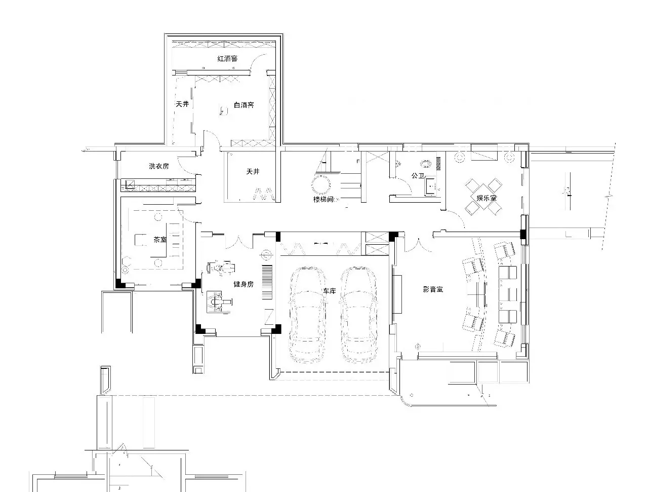
右手边玻璃门被规划成棋牌室,和原本的规划有出入。
客服
消息
收藏
下载
最近





























