查看完整案例

收藏

下载
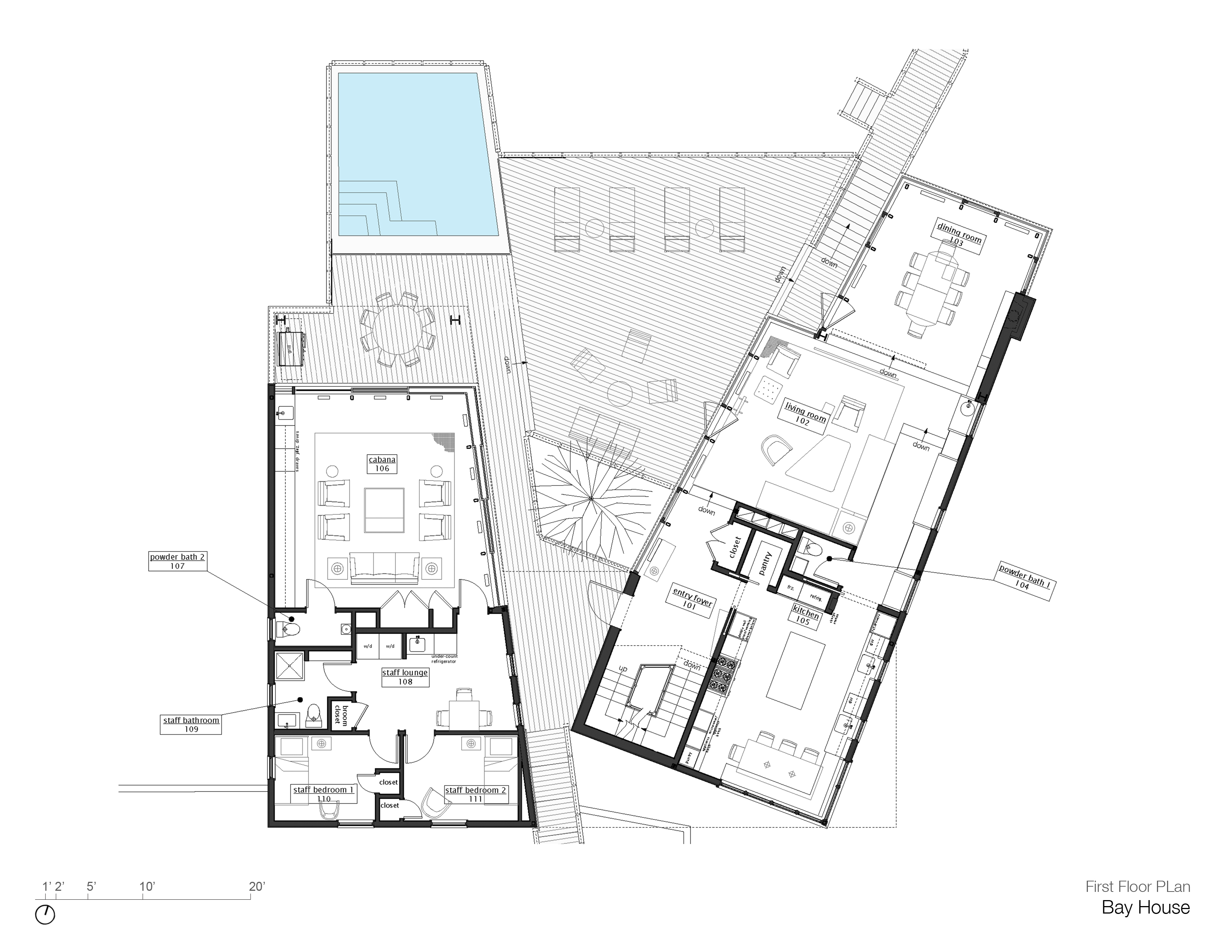
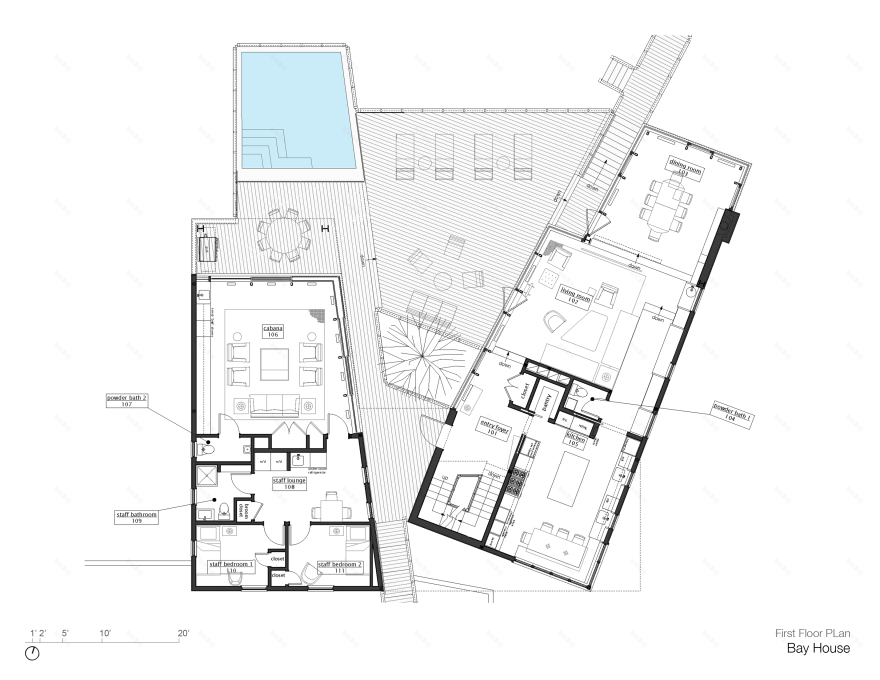
这雪松包房子采取复杂的场地限制作为灵感,创造一个动态的体积与广阔的海湾景观。该遗址位于一个屏障岛上,座落在一片长长的土地上,用草坪和隔壁取代了潮汐湿地。相比之下,湿地和本土物种在一条长长的人行道上延伸,穿过街道,通向街道。
在近邻之间,房子的体积将在这条人行道上创造一个巨大的室外空间。房子的两翼成角,可以看到东西两面的长景。紧邻街道边缘的混凝土块是化粪池系统的所在地,并被雕刻成通往现场的入口。一条人行道从这个地方升起,穿过房子的体积。
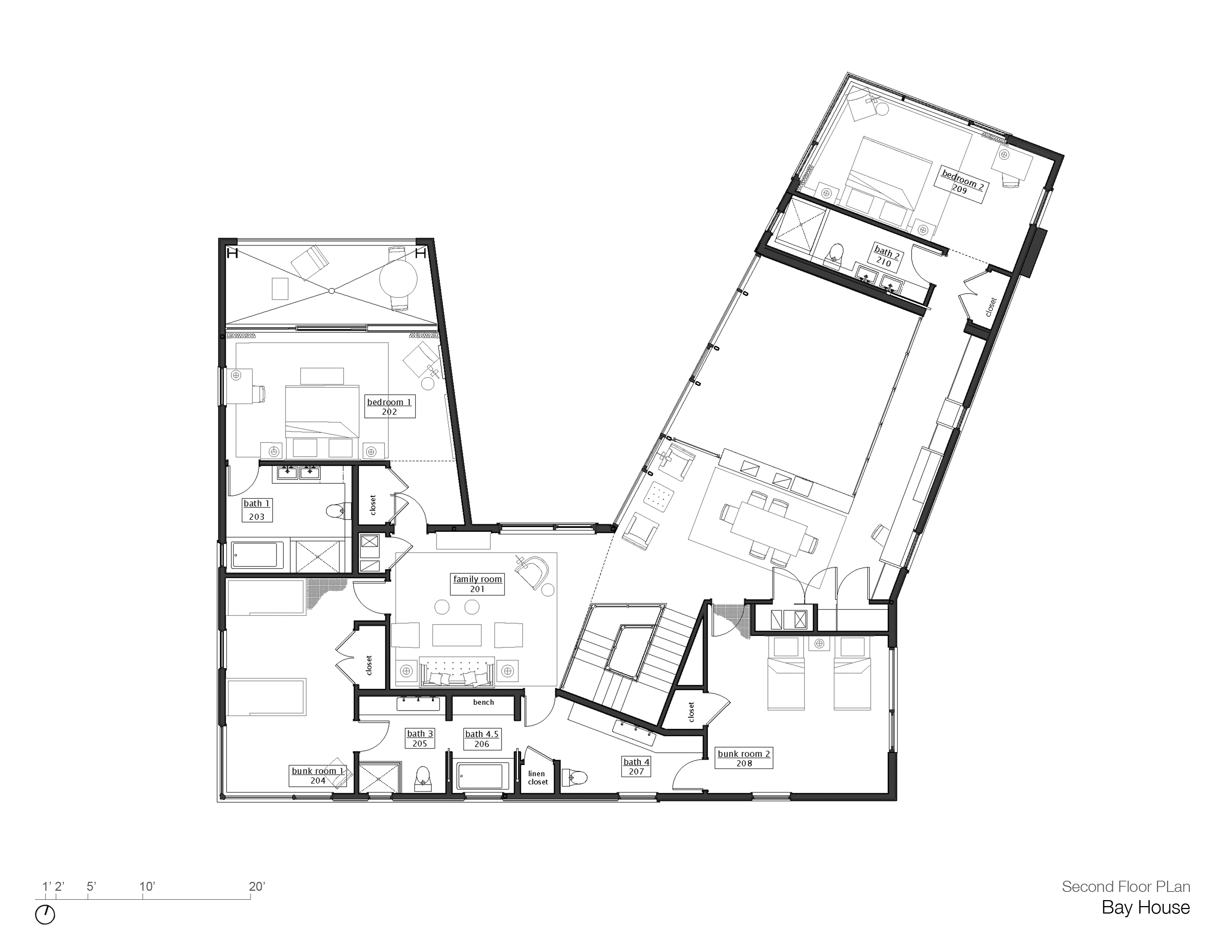
大面积的铝幕墙允许主起居空间打开到高架甲板上。围墙使这一家庭空间远离邻居。存储元件和内置家具,包括桌子和葡萄酒储藏墙,被建在周边的墙壁上,增加了围护的感觉。小窗户被打穿保护面纱,以框架亲密的看法。应客人的要求,餐厅位于离水最近的地方,面向日落。
Firm Leroy Street Studio
Type Residential › Private House
STATUS Built
YEAR 2009
SIZE 5000 sqft - 10,000 sqft
keywordsarchitecture, architecture news, interiors, interior design, portfolio, spec, brands, marketplace, products Bay House
关键词建筑、建筑新闻、室内设计、组合、规格、品牌、市场、产品湾屋
客服
消息
收藏
下载
最近













