查看完整案例

收藏

下载
建筑场地的物理和心理环境所提供的多样性和对比性,引发了一定的概念性目标,贯穿于室内外设计的各个组成部分。目的是维持一个量子质量在这里和那里同时,保持设计的程度相反的含义融合到一个单一的问题。虽然建筑物的布局和体积被有意地砍断,但为了达到人类的规模,它仍然有一个巨大的元素,如一个门廊的动态形状或一个塔楼正面的整体表面,它提供了某种纪念性的感觉。建筑的城市作用是作为一个视觉桥梁或几何调制从相邻的高层办公建筑群到低节奏的历史房屋,站在另一边。这座建筑的形状也是为了整合柏树的建筑,建筑试图通过为他们的巨型种植者来拥抱和尊重植被。这家旅馆的名字来自三个小树林。该建筑具有一个特殊制造的穿孔混凝土纤维面板弯曲面板。
房间的内部-是一个新的现代主义周围,其中大部分家具和物品是安装在墙壁上,就像在游艇。内部没有任何艺术品或任何其他视觉描述或形象。他的想法是把客人作为一个人,把他可能的活动放在他周围世界的中心。没有客人在里面生活/表演,内心空间的构成就永远是满的。
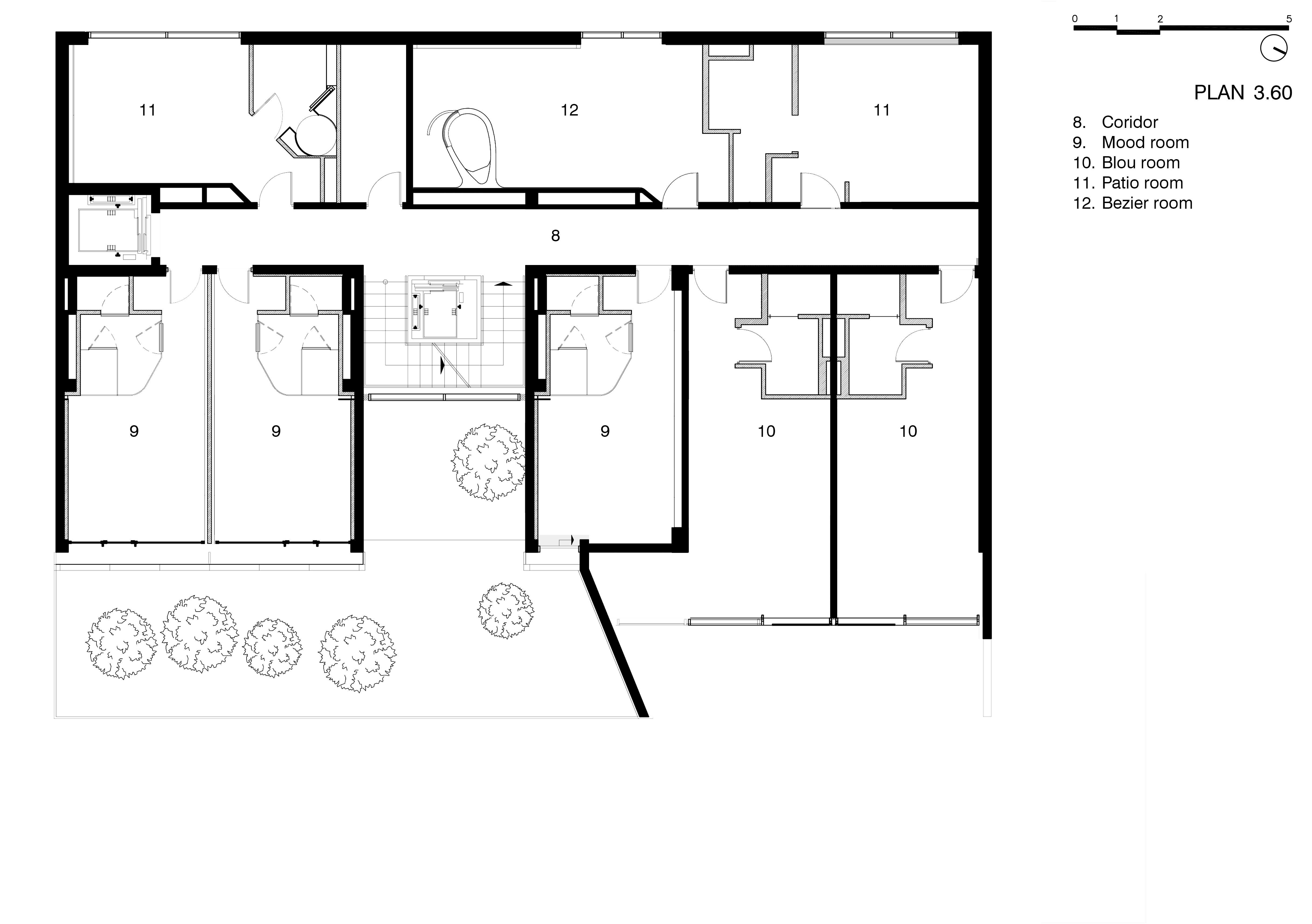
酒店以空间和平面实验为特色的客房提供了独特的审美体验,因为这是在最不寻常和最奇怪的地方之一。例如,一间源自历史悠久的美铝酒店的房间,更像是一张像花束一样的中央床,四周环绕着一条可行走的小径,而不是传统的酒店套房,房间的简约外观被从床前投射出来的大屏幕所干扰。在走廊上产生三种不同的色彩,这是一种尝试,试图将现代性风格转变为超现实主义。
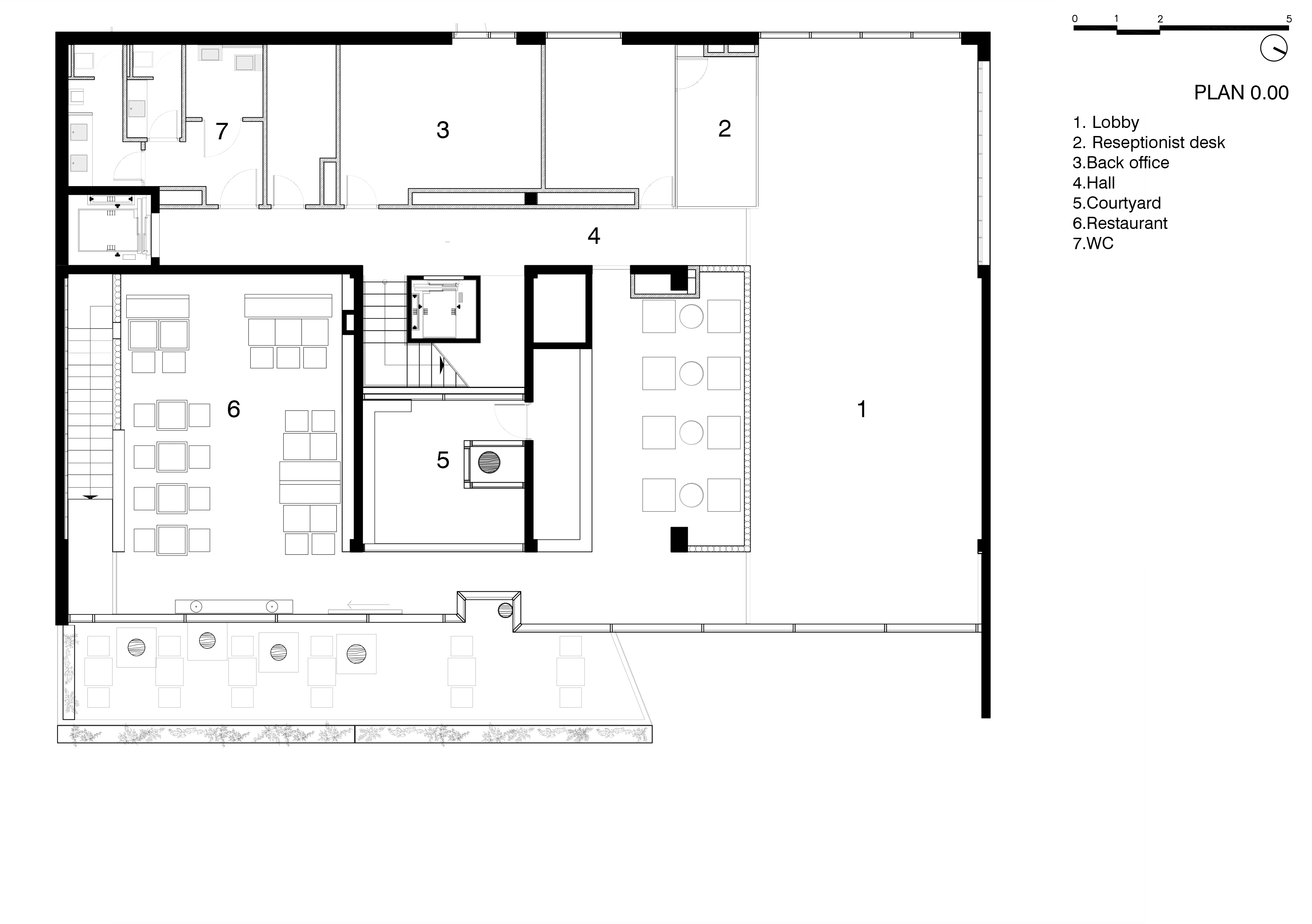
餐厅被呈现为一种鸡尾酒,有着断断续续的美学主题,类似于在一次盛大的聚会后出现的令人印象深刻的回忆。在休息室区域展示了从织物墙后面点燃的瓶子投射出来的五颜六色的阴影。酒吧被涂上了汽车包裹箔,使光滑的铜表面是深而有活力的。
主要建筑师:Kakha Maisuradze、Lasha Barblishvili、Shota Saganelidze、Tinatin Peikrishvili、Guram Mamisashvili、Tamar Tekhova、Elene Papiashvili、Elisabed Khundadze、Irakli Abashidze、Dimitri Shapakidze
图片来源:Nakanniamasakhlisi
Type Hospitality + Sport › Hotel Restaurant
STATUS Built
YEAR 2017
SIZE 1000 sqft - 3000 sqft
BUDGET $1M - 5M
keywordsarchitecture, architecture news, interiors, interior design, portfolio, spec, brands, marketplace, products The Grove design hotel
关键词建筑,建筑新闻,室内设计,组合,规格,品牌,市场,产品格罗夫设计酒店
客服
消息
收藏
下载
最近


























