查看完整案例

收藏

下载
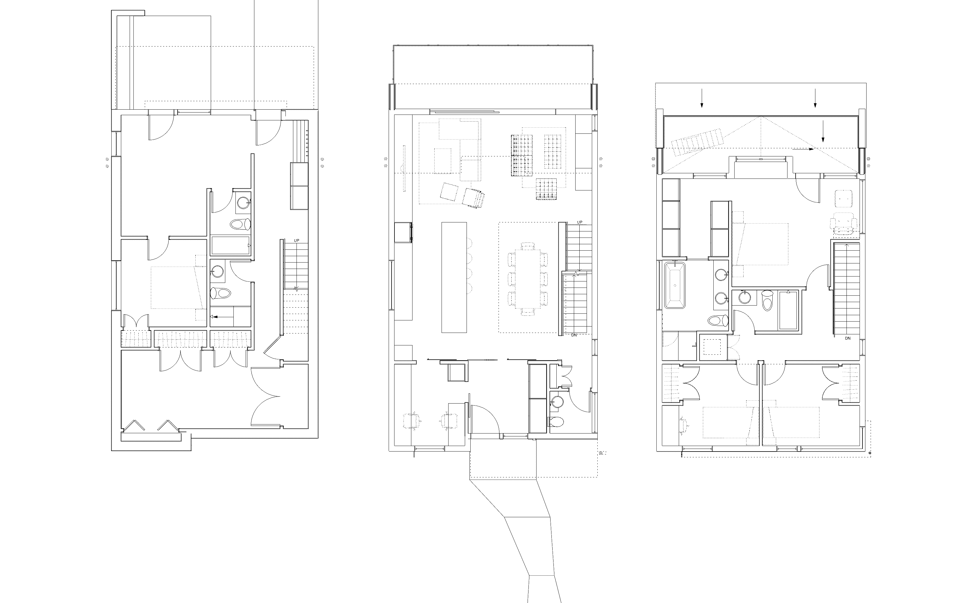
该项目位于温哥华西区,于2016年完工。教学形式的组成是由其开口的大小和位置驱动的,一个薄薄的金属刀片垂直地和水平地收集窗户。进入冠层匹配薄的轮廓叶片,并增加一些浮雕的平面正面。在这种情况下,只需使用少量的内外材料就可以获得平静和平静的外观。
Firm randy bens architect
Type Residential › Private House
STATUS Built
YEAR 2016
SIZE 3000 sqft - 5000 sqft
BUDGET $1M - 5M
Photos Sama Jim Canzian
keywords:architecture, architecture news, interiors, interior design, portfolio, spec, brands, marketplace, products West 15th
关键词:建筑,建筑新闻,室内设计,组合,规格,品牌,市场,产品西部第15
客服
消息
收藏
下载
最近















