查看完整案例

收藏

下载
节目:多功能社区宿舍
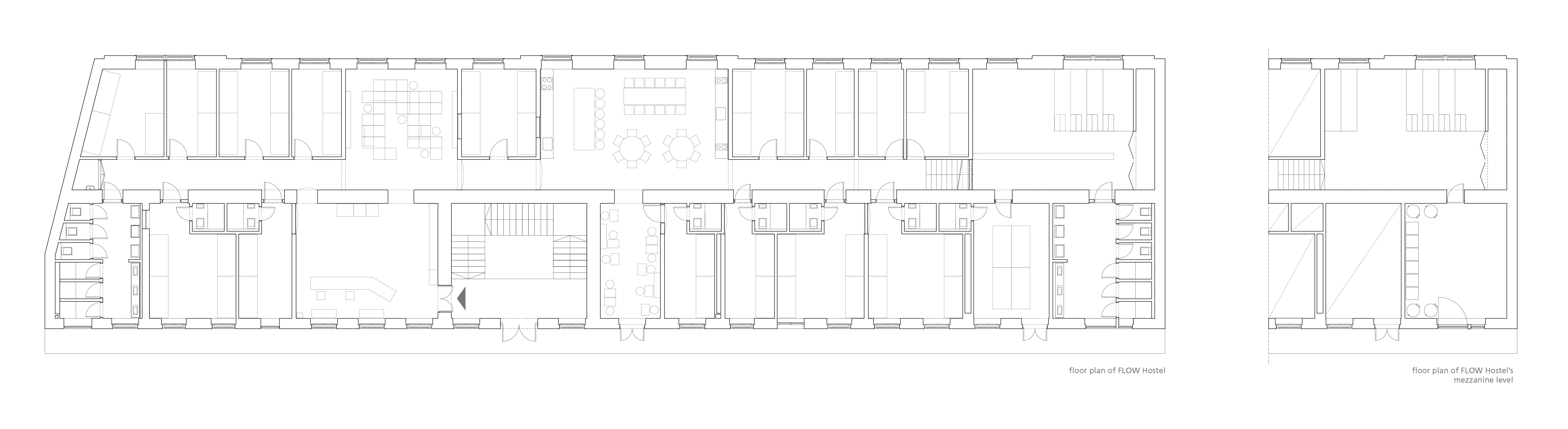
Flow Hostel位于布达佩斯一座百年历史悠久的市中心历史建筑的二楼。我们的团队被要求把整个地区变成一家有98张床位的旅舍,供年轻游客在预算上旅行。除了可容纳4至8人的客房外,还设计了一系列公共区域,包括接待厅、休息室、自助厨房食堂和媒体区。
挑战:空间体验而不是黑暗走廊和未知的准备
进入二十一世纪,房地产的空间布局和功能发生了几次变化:曾经是一间办公室,一间学生宿舍,最近几年,它成了另一家剧院。2015年,我们的团队受命把这个地方改造成一家旅店。
该建筑具有纵向布局,中间有一个承重墙,将平面图分成两个区域,再由垂直于立面的墙壁隔开。这些墙创造了一条相互连接的广阔空间,叫做爱马仕。由于建筑物的不同用途,出现了几条走廊,使房间能够独立运作,但与此同时,它们变成了漫长、黑暗和狭窄的交通空间。
然而,我们不仅希望在设计过程中消除这类区域,而且希望将旅舍内游客的日常活动转变为一种令人兴奋的空间体验,并提供明亮和宽敞的空间。
学习过去的地方,我们还想为未来可能发生的变化做好准备,方法是找出能够以尽可能低的时间和基础设施成本最大程度地进行功能修改的体系结构方法。
公共活动空间链:多功能结构,中立基础设施
我们的想法是利用社区功能来避免空间的单调:我们将这些功能指定为一系列的空间,将整个楼层连接在一起,作为对电子邮件的解释,而不是单独的房间。
采用均匀的油毡地板、均匀的白墙和天花板以下的索盘,为各种机械系统和其他永久元件提供了一个中立的“基础设施”,可以很容易地适应未来未知的使用变化。
在这一中立的基础上,通过设计家具和我们设计的内部定制的其他容易变化的元素,每个公共区域都具有独特的性质。
Firm PRTZN Architecture
Type Hospitality + Sport › Hotel
STATUS Built
YEAR 2016
SIZE 5000 sqft - 10,000 sqft
BUDGET Undisclosed
keywordsarchitecture, architecture news, interiors, interior design, portfolio, spec, brands, marketplace, products FLOW Hostel
关键词建筑,建筑新闻,室内设计,组合,规格,品牌,市场,产品流动招待所
客服
消息
收藏
下载
最近





























