查看完整案例

收藏

下载
架构师提供的文本描述。这个商店顶层住宅项目是位于一个小后巷,在一个遗产保护区,在悉尼的内西郊繁华的郊区格莱贝。这座新建筑最大限度地利用了只有92平方米的可供利用的小场地,将其延伸至所有边界,并将私人开放空间推向顶部。
Text description provided by the architects. This shop-top-housing project is located on a small back lane in a Heritage Conservation Area in Sydney’s inner-west bustling suburb of Glebe. The new building makes maximum use of the available small site of only 92sqm by extending to all boundaries and pushing the private open space up to the top.
© Thilo Pulch - Pulch Photography
(C)Thilo牙髓-牙髓摄影
这座房子从前几个世纪的欧洲建筑中汲取灵感,被翻译成现代的细节。内部分裂水平,允许外部外观被打破,并采取步骤,以创造一个小规模的外观,适合其位置。锌屋顶被包裹成立式缝墙覆盖到上层,而底层的深色砖块在其设置中将建筑物夷为平地。
The house draws inspiration from previous centuries european architecture translated into modern details. Internal split levels allow the exterior facade to be broken up and stepped to create a small scale appearance suitable for its location. The zinc roofing is wrapped around as standing-seam wall cladding to the upper floors, while the bottom level dark painted brick grounds the building in its setting.
© Thilo Pulch - Pulch Photography
(C)Thilo牙髓-牙髓摄影
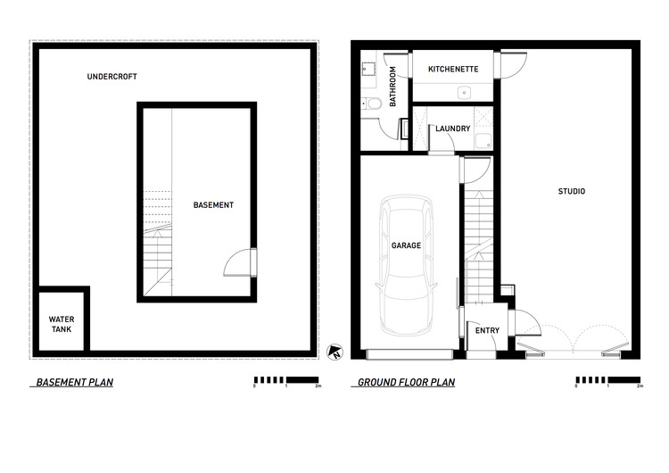
在街道层面,拥有自己厨房和浴室的独立工作室提供了被单独出租或居住在自己工作场所之上的机会。一个4米高的天花板和极简的材料调色板,由砖块和异形混凝土组成,创造了一个不引人注目的空间,等待一个有创造力的人占据。
At street level the self-contained studio with its own kitchen and bathroom provides the opportunity to be rented out separately or live above your own workplace. A 4 meter high ceiling and minimalist material palette of brick and off-form concrete creates an unobtrusive space waiting to be occupied by a creative person
Basement and Ground floor plans
地下室及底层图则
一条全混凝土楼梯通向大楼的住宅部分。核心混凝土墙从工作室开始,贯穿卧室水平,并在顶层客厅完成。材料调色板被选择为内部由混凝土,木材,钢和玻璃组成,分配每一种材料其确定的地方,以提供一个现代和整洁的美学。
An all concrete staircase leads up to the residential part of the building. The core concrete wall starting at the studio, continues through the bedroom level and finishes in the top floor living room. The material palette that was chosen for the interior consists of concrete, timber, steel and glass, assigning each material its well determined place to provide a modern and uncluttered aesthetic.
© Thilo Pulch - Pulch Photography
(C)Thilo牙髓-牙髓摄影
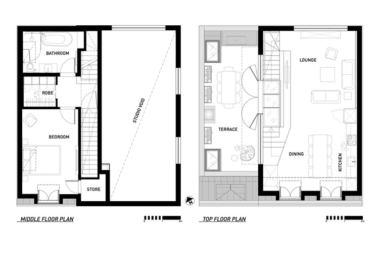
中间层是卧室、睡袍和浴室。建筑到所有的边界意味着限制窗口的放置。因此,卧室和浴室中的可操作天窗在躺在床上或淋浴时可以窥见天空,并提供通风。此外,使用钢丝玻璃钢框架内门允许自然光渗透到内部的大部分地区。
The middle level houses the bedroom, robe and bathroom. Building to all boundaries meant restriction with window placements. Therefore operable skylights in the bedroom and bathroom give glimpse of the sky while laying in bed or having a shower and provide ventilation. Also the use of wire glazed steel frame internal doors allows natural light to penetrate to the inner most areas.
Section 02
Section 02
黑磨光的灰泥墙被用来在浴室里制造重音墙。
Black polished plaster walls have been used to create accent walls in the bathroom.
浅色木地板继续向上第二套楼梯和整个顶层的主要生活,餐饮和厨房,这一直保持开放的计划。高天花板和裸露的黑色钢梁创造了一个戏剧性的外观,同时称赞地板到天花板黑色钢框架窗户。
Light coloured wooden floors continue up the second set of stairs and throughout the top floor main living, dining and kitchen which has been kept open plan. The high ceiling and exposed black steel beams create a dramatic look while at the same time complimenting the floor to ceiling black steel framed windows.
© Thilo Pulch - Pulch Photography
(C)Thilo牙髓-牙髓摄影
漂浮的电视架子合并成一个楼梯,通过一个玻璃地板登陆,这进一步传递自然光到较低的楼层,到屋顶露台。在这里,高高的栏杆给予居住者和邻居完全的隐私,同时可以看到周围的树梢和城市的天际线。
The floating tv shelf merges into a stair that leads over a glass floor landing, which furthermore transfers natural light to the lower floors, out to the roof terrace. Here the high balustrades give total privacy to the occupants and neighbours, whilst allowing views of the surrounding treetops and glimpse of city skyline.
First and top floor plans
一楼及顶层图则
虽然从外面看起来很紧凑,但房子内部有空间和自然光,令人惊讶。这座建筑通过使用材料来表达自己的性格,并试图用最少的材料讲述一个连贯的故事。
Although appearing compact from the outside the house surprises with space and natural light on the inside. The building expresses its character through the use of materials and is an attempt to tell a coherent tale with a minimum of materials.
© Thilo Pulch - Pulch Photography
(C)Thilo牙髓-牙髓摄影
客服
消息
收藏
下载
最近



































