查看完整案例

收藏

下载
作者:GARCIAGERMAN ArquITATOS
沙漠城市
西班牙马德里圣塞巴斯蒂安·洛斯雷耶斯。
影片: :
建筑师:GARCIAGERMAN ArquArchtos/Jacobo García-Germán
小组:Jacobo García-Germán、Miguel López、Raquel Díaz de la Campa、Marta García Laura Carrero、Martha Sosa Dias、Lidia de Lucas、Marta Roldán、Andrea Gutierrez、Victoria lvarez、Margo Roset、Paula Lizcano、Alba Gil、Celia Sánchez
承包商:Isolux Corsán
家具:109 FabLab
摄影电影:Imagen Subminal(Miguel de Guzmán Rocío Romero)
来文:Pati Nu ez机构
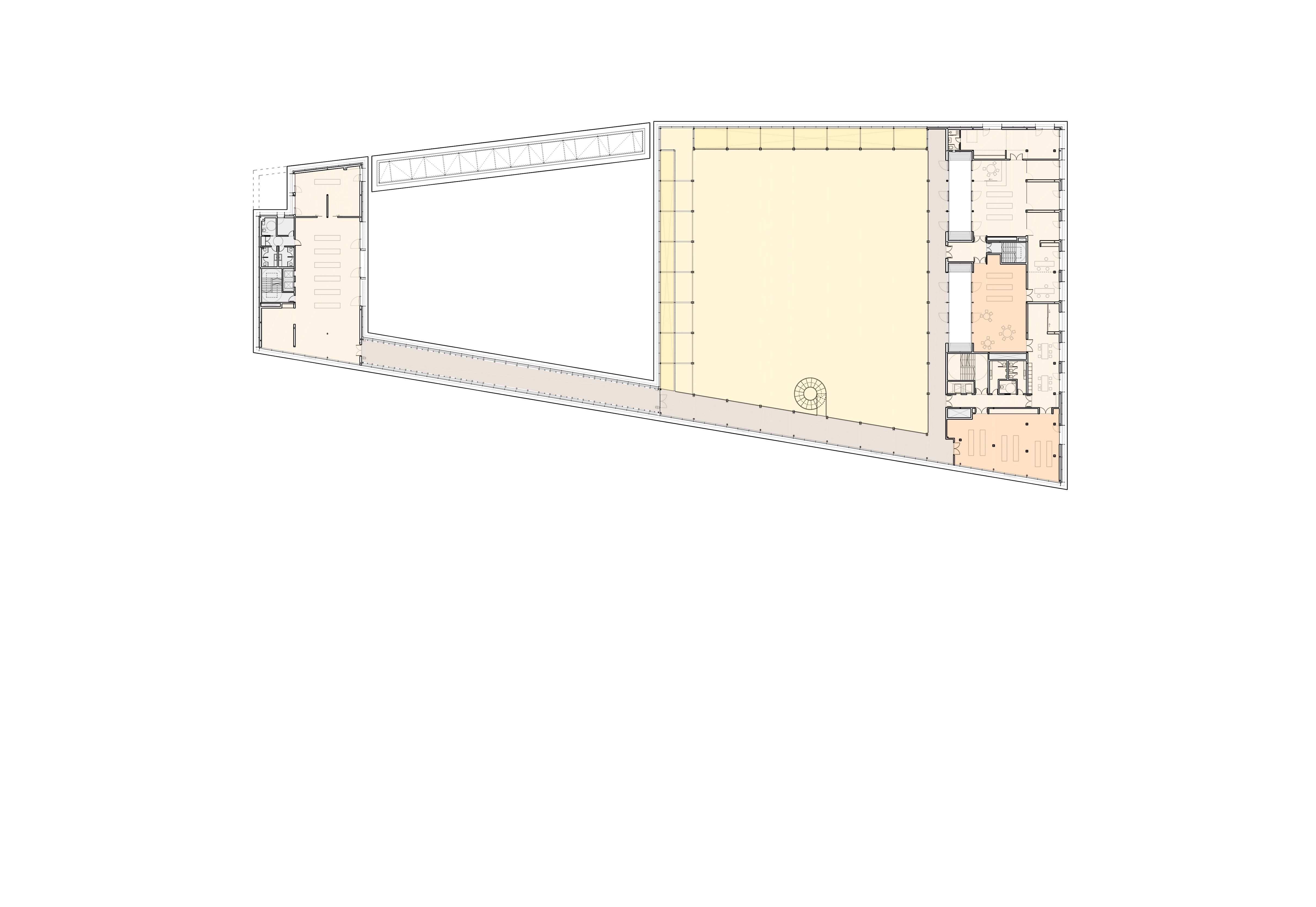
沙漠城市是对旱生植物的庆祝,是围绕着这些植物产生的一种完整的兴趣和活动文化。该项目提出了一种教育、可持续和生态综合体,其活动范围从世界各地在一个大花园和温室中展出、种植和培育仙人掌,到举办各种休闲活动,如演讲、小型会议、讲习班或展览。除了温室和展览/销售空间外,大型建筑还包括餐厅、商店、仓库和办公区域。这些活动是由一个大型轻型集装箱的庇护,就规模和重要性而言,它对A-1公路的附近存在作出了反应。一种“广告牌建筑”,与道路平行,内部由一系列对称组织起来,围绕着一个像仙人掌一样的修道院花园,它接待新来的人,温室空间由一个按张拉结构设计的缆索屋顶覆盖。
尽管它的混合计划,建筑群的建设是系统化的,通过重复,调制和预制的元素,导致一个巨大的抽象伸展骨架沟通其强烈的内部运作和通过一个彩色的水玻璃正面从过往的汽车上隐隐的绿色植物的存在。建筑采用了可持续的解决方案,如透明光伏玻璃、地热能、水回收系统、太阳能控制和原荒地的大量种植。
显然排除的情况的重叠(休闲活动的商业利用与模范的“绿色”业务;作为唯一基础设施的建设与大气和“软”装修相比;规模与脆弱性;公路旁的绿洲,…),产生一种主动的、巧妙的、适合机遇时代的主动行动。
Firm GGA GARCIAGERMAN ARQUITECTOS
Type Commercial › Office Industrial › Research Facility
STATUS Built
YEAR 2017
keywordsarchitecture, architecture news, interiors, interior design, portfolio, spec, brands, marketplace, products Desert City
关键词建筑、建筑新闻、室内设计、组合、规格、品牌、市场、产品沙漠城
客服
消息
收藏
下载
最近



























