查看完整案例

收藏

下载
© Timothy Soar
C.蒂莫西·索亚
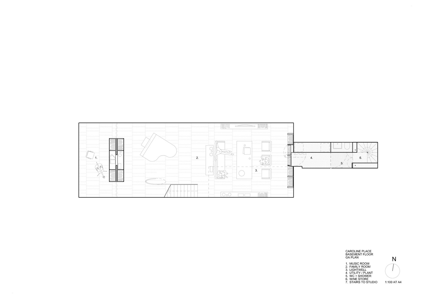
架构师提供的文本描述。卡罗琳广场三面环绕,四周有八层和九层的大厦,遮挡着贝斯沃特路的繁忙交通和金钟道上的旅游业,是20世纪50年代末海德公园和肯辛顿花园以北露台的一个安静的飞地。建造在现代北欧的敏感的锋利的砖线和脆的砂浆接缝与更柔软的木材细节分层,他们的内部布局仍然牢牢扎根于早期的英国爱德华式传统。保留女佣房间、洗衣间、有工作后场的煤房的服务区和佣人区。与业主一起占领地面的仆人,穿过更大的充满灯光的房间。然而,在战后不久的时期,贝斯沃特已经开始失去对这一阶层的吸引力,以至于在建造之后的十年内,新的年轻居民发现这些社会习俗与他们的愿望不一致。在可能的情况下,用当时感觉合适的东西来取代那些打破传统的建筑,清理出内部的细分墙,并在可能的情况下清除外部的隔墙。四十年过去了,五口之家的新占领者们仍然渴望开放的计划,生活在对触觉材料完成的渴望中,并不可避免地满足不同的口味。
Text description provided by the architects. Surrounded on three sides by eight and nine storey mansion blocks shielding it from the heavy traffic on Bayswater Road and tourism on Queensway, Caroline Place is a quiet enclave of late 1950’s terraces north of Hyde Park and Kensington Gardens. Built with a Modern Northern European sensibility of sharp brick lines and crisp mortar joints layered with softer timber detailing, their interior layouts remained firmly rooted in an earlier English Edwardian tradition. Retaining a desirous separation of served and servant areas of maids’ rooms, sculleries, coal houses with a working rear yard. Servnats occupying the ground level with owners set out above, across larger light filled rooms. In the immediate post war period Bayswater had however already begun to lose its luster to that class, so much so that within a decade of being built its new younger inhabitants found these social conventions to be out of step with their aspirations. Undertaking iconoclastic remodeling and clearing out of the interior sub-dividing walls and where possible the exterior, replacing these with what was felt appropriate at the time. Four decades on, the new occupiers, a family of five, retain the aspiration for open plan living with a desire for tactile material finishes and inevitably to different tastes.
© Timothy Soar
C.蒂莫西·索亚
Ground Floor Plan
© Timothy Soar
C.蒂莫西·索亚
由于街道外墙只经过了轻微的改造,1970年的门窗仅为权宜之计,因此做出了修复和修复外部装修的决定,那里的细节很容易就能从附近完整的房产中得到处理。一些内部新黄铜细节是提出以门家具的形式,以提供一些迹象表明较新的干预。早期的内部开放工程揭示了原始的石灰华地板的遗骸,70年代松木木板后面密密麻麻的墙壁和一间内衬着黑樱桃木镶板的房间。由于钙华有广泛的纹理和视觉的可能性,它的重新引入,允许一个硬磨损的表面横跨每一层,包括开放的庭院,并进入车库/书房。从采石场工具到抛光,这些饰面强调和区别从内部到外部,从地下室到地面和上面的旅程。
As the street façade had only been slightly remodeled with 1970’s windows and doors to no further purpose than expediency a decision was made to repair and restore the exterior finishes where their details were easily at hand from intact neighbouring properties. Some of the internal new brass detailing was brought forward in the form of door furniture to present some indication of the newer intervention. Early internal open up works revealed remains of original travertine flooring, densely plastered walls behind the 1970’s pine boarding and one room lined with dark cherry timber paneling. As travertine has a wide spectrum of textural and visual possibilities its reintroduction allowed for a hard wearing surface across each floor including the open courtyard and into garage/study. Varying from quarry tooled to polished these finishes emphasized and differentiated the journey from interior to exterior, from basement to ground and above.
© Timothy Soar
C.蒂莫西·索亚
Section 01
Section 01
© Timothy Soar
C.蒂莫西·索亚
在这方面,原始材料被恢复,1960年代至1970年代开放计划安排背后的社会意图也是如此。后者在每一层都有一张更清晰的表格,拆除了当时结构上必要的下立梁和砖头,但可能无意中保留了房间和社会隔离的记忆,这进一步加剧了后者的影响。在这一阶段,每一层都可视为已完成的石灰华和灰泥外壳,允许其居民界定其职业类型。适宜居住的区域在空间上被定义为在重新引入樱桃木镶板橱柜之间或附近的区域。他们的功能最终决定了松散的家具和他们的性格,逐步引入家庭日常用品。例如,一楼完全可以作为一个单独的接待室,有一个角落的学习区域。两个相邻的全高度书柜可以折叠和滑动门,先把房间围起来,然后再把它与书房分开。其中一个书柜在旋转时可以折叠一张客人床,把书房改成卧室。橱柜元素是为了这些目的,所有的完全高度与阴影缺口和回扣照明细节,以强调他们作为独立和独立的仆人。他们的目的和规模进一步扩大,以提供公共设施的形式,如浴室,步行衣柜和洗衣房。由于他们能够进入和了解房子的所有区域,他们的酌处权被保存在秘密门和书柜后面的房间和通道内。
In this respect the original materials are restored as are the social intentions behind the 1960’s-1970’s open plan arrangements. The latter is further accentuated by a clearer tabula rasa across each floor with the removal of downstand beams and brick nibs that had been structurally necessary at the time but perhaps unintentionally retained the memory of room and social separation. At that stage each floor can be considered as completed shell of travertine and plaster, allowing the type of occupation to be defined by its inhabitants. Habitable areas become spatially defined to the areas between or adjacent to reintroduction cherry timber paneled cabinetry. Their functionality finally determined with loose furniture and their character built with the gradual introduction of the family’s day to day belongings. For instance, the first floor can be occupied wholly as a single reception room with a corner study area. Two adjacent full height bookcases can fold out and slide doors to firstly enclose the room then sub-divided it from the study. One of the bookcases when pivoted can fold out a guest bed to change the study to a bedroom. Cabinetry elements are for these purposes all full height with shadow gaps and rebated lighting details to emphasize them as standalone and detached servants. Their purpose and scale are further expanded to provide utility in the form of bathrooms, walk-in wardrobes, and laundry rooms. As they are present with access and knowledge to all areas of the house their discretion is kept within rooms and passages behind secret doors and bookcases.
© Timothy Soar
C.蒂莫西·索亚
石灰华,樱桃镶板和抹灰墙的修复,形成内部背景与新的触觉细节,其属暗示了中C20作品的斯卡帕,密斯和可汗。新的但相关的,也许在将来的某个时候被误认为是最初的干预。不过,在技术上,利用尼龙棒和硅胶等新技术,将十字形黄铜柱和横梁与玻璃进行粘结和热隔离。尖工具和公平面混凝土,抛光和补丁黄铜,十字形柱和玻璃细节轻微参考的时期。在混凝土中,地下室的浸水被暴露在外面,并被编织成一个灌木锤击的表面,以暗示地下的材料和形式。一个承重的悬臂式钙华楼梯从地下室地板上升起,其底部左侧为“采石场”,以保持地球上石头的连接和精神,同时螺旋上升到上面的天窗。这些策略共同帮助构建和定义了新居住者喜欢的生活方式,给他们留下了足够的灵活性,使他们能够在其细节中成长、改变和高兴,这也许是恢复的长期遗产。
The restoration of travertine, cherry paneling and plastered walls to form the internal backdrop is counterpointed with new tactile details whose genus alludes to the mid C20th work of Scarpa, Mies and Khan. New but related, perhaps at some time in the future mistaken as original interventions. Though, technically taking advantage of new technologies such as nylon bars and silicon glues to to bond and thermally isolate cruciform brass columns and beams with glass. Point tooled and fair faced concrete, polished and patinated brass, cruciform columns and glazing details lightly reference the period. Cast in concrete, the soffit of the basement is left exposed and textured for a bush hammered finish to suggest subterranean material and form. A load bearing cantilevered travertine staircase rises from the basement floor with its underside left as ‘quarry found’ to maintain the connection and spirit of the earth bound stone while spiraling and rising to the skylight above. Together these strategies helped structure and define the new occupant’s preferred way of living, leaving enough flexibility for them to grow, change and delight in its details which is perhaps the longer legacy of the restoration.
© Timothy Soar
C.蒂莫西·索亚
Architects Amin Taha Architects, GROUPWORK
Location London, United Kingdom
Area 280.0 m2
Project Year 2016
Photographs Timothy Soar
Category Apartment Interiors
Manufacturers Loading...
客服
消息
收藏
下载
最近
























