查看完整案例

收藏

下载
© Mark Drotsky Architekturfotografie
c Mark Drotsky Architturfotografie
架构师提供的文本描述。该遗址位于坎顿索洛图恩的一个山坡上,毗邻该村弯曲的主干道。由于唯一的接入点是在地块的西北面上,它被证明是房子的主要路线的一个锚点。建筑和给定的景观相互响应-最终形成一个统一。这所房子被设想成两个街区相对旋转,然后推入山坡。该组织在进入现场时提供了明确的路线,并规定了这两个街区的主要方向。
Text description provided by the architects. Located on a hillside in Kanton Solothurn the site is adjacent along the curved main road of the village. With the only access point being on the upper northwest side of the plot, it proved to be an anchor point for the main alignment of the house. The architecture and the given landscape respond to each other – ultimately forming a unity. The house was conceived as two blocks rotated relative to each other and pushed into the hillside. This organisation provided a clear routing upon entering the site and dictated the main orientation of the two blocks.
© Mark Drotsky Architekturfotografie
c Mark Drotsky Architturfotografie
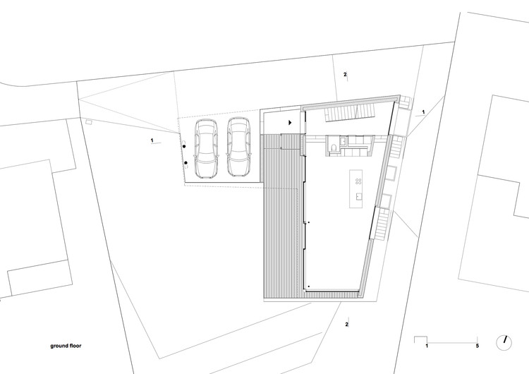
对于一个四口之家,L形计划探索个人与集体,开放与亲密,封闭与开放。进入房子后,主空间被一个中央单元和不同的楼层划分。在这个单元中,功能元素被合并,空间不受干扰地流动。只留下半透明的楼梯和厨房岛作为补充元素。沿着家族的集体空间移动三步。厨房、餐厅和起居室,总高度为3.2米,有两个全玻璃的门面,有大的滑动窗户。创造一个自然的过渡,从内部的步伐,进入花园,并最大限度地受益于整个一天的自然阳光。
For a family of four the L shaped plan explores the individual vs the collective, openness vs the intimate, closed vs open. Upon entering the house, the main space is divided by a central unit and a difference in floor levels. In this unit the functional elements are incorporated and the space flows without interruptions. Leaving only the translucent staircase and kitchen island as complementing elements. Moving three steps down the family’s collective space is located. A kitchen, dining and living room with an overall height of 3.2 metres and two completely glazed facades with large sliding windows. Creating a natural transition from the inside pace into the garden and a maximum benefit from natural sunlight throughout the entire day.
Ground Floor Plan
First Floor Plan
一层平面图
在一楼,私人房间和主浴室都朝南。提供瑞士阿尔卑斯山全景。主套房让您进入一个开放的平台,提高了空间质量。轻金属栏杆,有目的地将其与屋顶边缘分开,勾勒出两层楼的轮廓,在视觉上将它们连接起来。没有手栏杆确保没有视觉入侵的主要卷的水平线。
On the first floor the private rooms and the master bathroom are all south facing. Providing a panoramic view of the Swiss Alps. The master suite gives access onto an open terrace enhancing the spatial quality. The light metal railing, purposefully separated from the roof edges outlines both floors, connecting them visually. The absence of a hand railing ensures that there are no visual intrusions on the horizontal lines of the main volumes.
© Mark Drotsky Architekturfotografie
c Mark Drotsky Architturfotografie
© Mark Drotsky Architekturfotografie
c Mark Drotsky Architturfotografie
两层之间的连接元素不应被视为楼梯,而应更多地被视为材料上的选择。裸露混凝土提供了白色和黑色饰面的对比,同时显示了主要的结构元素。混凝土模板的细节强调,材料被用作整个房子的一个组织元素。
The connecting element between the two floors should not be perceived as the stairs but more so the choice in materials. The bare concrete provides a contrast between the white and black finishes, while showing the main structural elements. The detail of the concrete shuttering emphasizes that the material is used as an organizational element throughout the entire house.
© Mark Drotsky Architekturfotografie
c Mark Drotsky Architturfotografie
Architects Tormen Architekten AG
Location Riedholz, Switzerland
Area 750.0 m2
Project Year 2017
Photographs Mark Drotsky Architekturfotografie
Category Houses
客服
消息
收藏
下载
最近





































